• Sledovat cenu
  •  

Zasílání upozornění emailem:

Prodej bytu 1+kk, 38 m2 - Spolková, Brno, okr. Brno-město

Cena: 5 500 000 Kč
Stav:Volný
1+kk, 38 m2, cihlová, OV, 1. podlaží
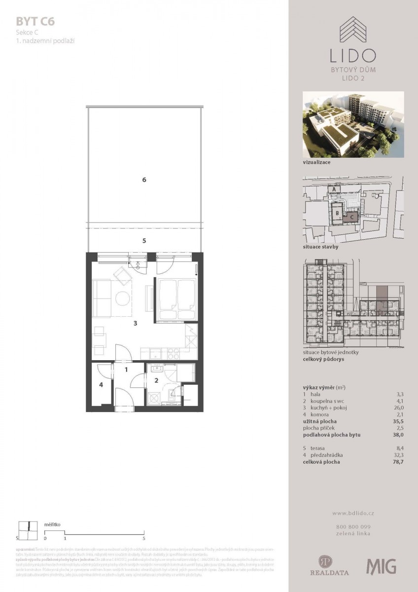
Popis: Ve výhradním zastoupení investora nabízíme k prodeji poslední volný byt (C6) 1+kk s nikou, komorou a zahradou v již dokončeném projektu BD LIDO – oceněném titulem Projekt Jihomor...avského kraje 2024.
Dispozičně výborně řešený a prostorný byt splní vysoké nároky na klidné a komfortní bydlení a představuje skvělou příležitost pro startovací bydlení nebo výhodnou investici. Projekt BD LIDO navazuje na velice úspěšnou první etapu a je již kompletně dokončen a zkolaudován.

Byt se nachází v progresivní lokalitě s bohatou kulturní historií a výbornou dostupností do centra města. Jednou z mnoha předností rezidenčního komplexu je uzavřený vnitroblok plný zeleně, ideální k odpočinku nebo trávení času s dětmi. K bytu je možné přikoupit parkovací stání.

Díky nadstandardnímu zateplení, kvalitním oknům, použitým stavebním materiálům a moderním technologiím vytápění se podařilo projekt BD LIDO realizovat v energetické třídě A, což znamená mimořádnou úspornost.

Dispozice bytu:
hala (3, 3 m²)
obývací pokoj s kuchyňským koutem (26, 0 m²)
koupelna s sociální zařízení WC (4, 1 m²)
komora (2, 0 m²)
terasa (8, 4 m²)
předzahrádka (32, 3 m²)
  • Vložení inzerátu:
    13.11.2024
  • Kód:
    D/RSB/149/22-9
  • K dispozici od:
    0.0.0
  • Typ nemovitosti:
    Byt
  • Typ budovy:
    Cihlová
  • Dispozice:
    1+kk
  • Vlastnictví:
    OV
  • Podlaží:
    1
  • Podlahová plocha:
    38 m2
  • Terasa:
    8 m2
  • Stav objektu:
    Ve výstavbě
  • Energetická náročnost:
    A - Mimoˇrádne úsporná
  • Podle vyhlášky:
    c. 78/2013 Sb.
  • Ukazatel náročnosti:
    51 kWh/m2
  • Nabídky v okolí:
  • Informace o obci:
    Obec Brno má 371371 obyvatel, z toho 256490 v produktivním věku.
    V obci se nachází pošta.
    V obci se nachází škola, popř. školka.
    V obci se nachází zdravotní zařízení.
    V obci je rozvod kanalizace.
    V obci je rozvod městské vody.
    V obci je rozvod plynu.
Lokalita: Spolková , Brno, okres Brno-město, Česká republika Spolková, Brno, okr. Brno-město

Kontakt

Bc. Michal Chemišinec


Podobné nabídky v okolí


Volná pracovní místa ExpertPrace.cz
  • Objednání prohlídky a více informací
  •  
  • Poslat na e-mail
  •  

Zasílání odkazu na realitu emailem: