• Sledovat cenu
  •  

Zasílání upozornění emailem:

Prodej bytu 1+1, 34 m2 - Michelská, Praha 4, Praha

Cena: 4 600 000 Kč
Stav:Volný
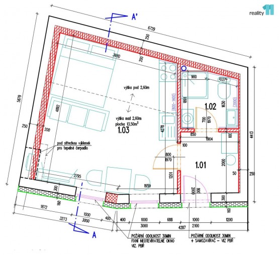
1+1, 34 m2, cihlová, OV, 1. podlaží
Popis: Cena je uvedená včetně provize RK a právního servisu. Exkluzivně nabízíme k prodeji atypický byt/dům/kolaudace na ubytovací jednotku.

Nachází se v blízkosti administrativního centra Brumlovka.

Celková užitná plocha: 34 ...m².

K výhradnímu užívání je prostorná terasa, orientovaná na jih, možno instalovat pergolu, krb či vířivku (je vyvedena voda i elektrický kabel).

Novostavba z roku 2024 je umístěna ve vnitrobloku, zajišťuje soukromí a klid.

Světlá místnost s vysokým stropem (je možno vestavět i patro na spaní) má velká francouzská okna s výhledem na terasu.

Na podlahách je instalovaná dlažba, pod kterou je příjemné podlahové topení.

Tepelnou pohodu zajišťuje klimatizace a nízké provozní náklady pak zateplení polystyren 20cm a instalovaná centrální rekuperace.

Ohřev vody je bojlerem.

Prostory jsou vymalovány na bílou barvu.

Zařízeno kuchyňskou linkou a el. sporákem a jsou osazeny interiérové dveře.

Koupelna s sociální zařízení WC a sprchovým koutem.

Jedná se o zajímavou investiční příležitost.
Nachází se u autobusové zastávky Hadovitá a na metro C - Kačerov 1 zastávka.

Parkování je možné na placeném parkovišti nebo lze vyřídit rezidentní parkovací kartu, které se nachází cca 100m od domu. Ev. číslo: 27760. Energetický štítek: C
Lokalita: Michelská , Praha 4, Praha, Česká republika Michelská, Praha 4, Praha

Kontakt

Darina Smetanová - Pracovní doba: PONDĚLÍ - PÁTEK OD 9:00-17.00 HOD
Objednání prohlídky a více informací


Podobné nabídky v okolí


  • Objednání prohlídky a více informací
  •  
  • Poslat na e-mail
  •  

Zasílání odkazu na realitu emailem: