Prodej bytu 1+1, 34 m2 - Michelská, Praha 4, Praha (již není v nabídce)
Cena:
4 999 000 Kč
Stav:archiv
1+1, 34 m2, cihlová, OV, 1. podlaží
Popis:
Cena je uvedená včetně provize RK a právního servisu. Exkluzivně nabízíme k prodeji atypický byt/dům/kolaudace na ubytovací jednotku.
Nachází se v blízkosti administrativního centra Brumlovka.
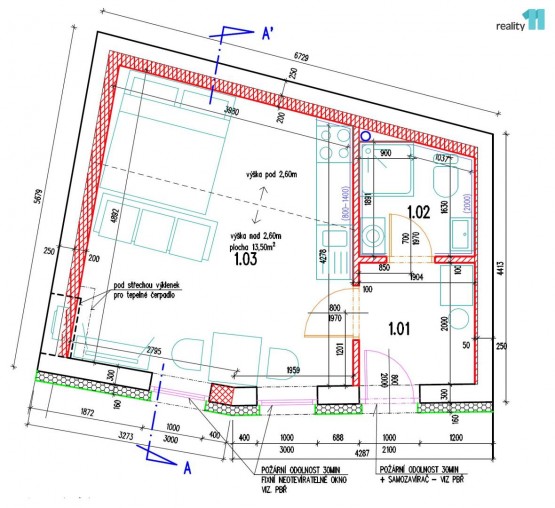
Celková užitná plocha: 34 ...m².
K výhradnímu užívání je prostorná terasa, orientovaná na jih, možno instalovat pergolu, krb či vířivku (je vyvedena voda i elektrický kabel).
Novostavba z roku 2024 je umístěna ve vnitrobloku, zajišťuje soukromí a klid.
Světlá místnost s vysokým stropem (je možno vestavět i patro na spaní) má velká francouzská okna s výhledem na terasu.
Na podlahách je instalovaná dlažba, pod kterou je příjemné podlahové topení.
Tepelnou pohodu zajišťuje klimatizace a nízké provozní náklady pak zateplení polystyren 20cm a instalovaná centrální rekuperace.
Ohřev vody je bojlerem.
Prostory jsou vymalovány na bílou barvu.
Zařízeno kuchyňskou linkou a el. sporákem a jsou osazeny interiérové dveře.
Koupelna s sociální zařízení WC a sprchovým koutem.
Jedná se o zajímavou investiční příležitost.
Nachází se u autobusové zastávky Hadovitá a na metro C - Kačerov 1 zastávka.
Parkování je možné na placeném parkovišti nebo lze vyřídit rezidentní parkovací kartu, které se nachází cca 100m od domu. Ev. číslo: 27760. Energetický štítek: C
- Vložení inzerátu:
5.10.2025
- Kód:
3991670
- Typ nemovitosti:
Byt
- Typ budovy:
Cihlová
- Dispozice:
1+1
- Vlastnictví:
OV
- Podlaží:
1
- Podlahová plocha:
34 m2
- Terasa:
Ano
- Stav objektu:
Po rekonstrukci
- Energetická náročnost:
C - Úsporná
- Nabídky v okolí:
Lokalita:
Michelská , Praha 4, Praha, Česká republika
Michelská, Praha 4, Praha