• Sledovat cenu
  •  

Zasílání upozornění emailem:

Pozemek k bydlení 587 m2 - Dělnická, Pečky, okr. Kolín

Cena: 4 950 000 Kč
Stav:Volný
parcela: 587m2
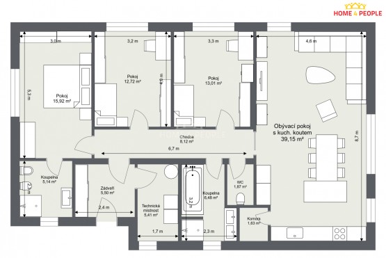
Popis: včetně právního servisu a provize RK, stavebního povolení a projektu. Zprostředkujeme Vám ve výhradním zastoupení majitele stavební pozemek s vydaným stavebním povolením na bungalov 4...+kk, tedy můžete ihned začíst stavět. Stavební pozemek v obci Pečky o celkové velikosti 587 m². Na pozemku se nachází, elektřina, městská voda, kanalizace. Pozemek se nachází v klidné části Peček, na pozemek navazuje z jedné části pole a kolem něj vede asfaltová komunikace a trasy do okolních vesnic.
Možné financovat hypotečním úvěrem, se kterým Vám rádi pomůžeme. Pro více informací neváhejte kontaktovat makléře. Vřele doporučuji prohlídku. Pro více informací mne neváhejte kontaktovat. Naše stavební firma je připravena postavit dům.
Pečky leží 15 km západně od Kolína u dálnice D11 a na hlavní železniční trase Praha Kolín. V Pečkách jsou mateřské školky a základní školy, restaurace, lékárny, sportoviště a obchody. Dopravní dostupnost je výborná. Po dálnici se dostanete do Prahy za 27 minut, vlaky jezdí každou půlhodinu. Kolín je vzdálený 17 minut autem a 13 minut vlakem. Ev. číslo: 32099. Energetický štítek: A (1 kWh/m2/rok).
  • Vložení inzerátu:
    3.3.2026
  • Kód:
    4140500
  • Typ nemovitosti:
    Pozemek k bydlení
  • Energetická náročnost:
    A - Mimoˇrádne úsporná
  • Ukazatel náročnosti:
    1 kWh/m2
  • Nabídky v okolí:
  • Informace o obci:
    Obec Pečky má 4512 obyvatel, z toho 3082 v produktivním věku.
    V obci se nachází pošta.
    V obci se nachází škola, popř. školka.
    V obci se nachází zdravotní zařízení.
    V obci je rozvod kanalizace.
    V obci je rozvod městské vody.
    V obci je rozvod plynu.
Lokalita: Dělnická , Pečky, okres Kolín, Česká republika Dělnická, Pečky, okr. Kolín

Kontakt

Martina Novotná (Voslářová)
Objednání prohlídky a více informací


Podobné nabídky v okolí


  • Objednání prohlídky a více informací
  •  
  • Poslat na e-mail
  •  

Zasílání odkazu na realitu emailem: