• Sledovat cenu
  •  

Zasílání upozornění emailem:

Sklad 880 m2 - Hradecká 1, Brno, okr. Brno-město (již není v nabídce)

Cena: 37 845 590 Kč
Stav:archiv
880 m2, skeletová
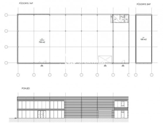
Popis: Ve výhradním zastoupení nabízíme ke koupi poslední komerční jednotku v nově vznikajícím komerčním areálu. Objekt je vhodný pro společnost hledající prostory pro showroom, obchod, sklad a kancelářské zázemí. Výborné dopr...avní spojení autem, zastávka MHD i vlaku. Plánovaný termín kolaudace 12/2021.

Celková výměra boxu 880, 13 m2
Showroom, hala 756 m2 (výška 7, 5 metru)
Kanceláře, zázemí 124, 13 m2

V ceně cca 7 parkovacích míst před objektem.
Vybavení a standardy na vyžádání.
Pro bližší informace neváhejte kontaktovat zástupce realitní společnosti.
  • Vložení inzerátu:
    30.7.2021
  • Kód:
    N/RSB/19109/21
  • K dispozici od:
    0.0.0
  • Typ nemovitosti:
    Sklad
  • Typ budovy:
    Skeletová
  • Podlahová plocha:
    880 m2
  • Stav objektu:
    Velmi dobrý
  • Energetická náročnost:
    G - Mimořádne nehospodárná
  • Nabídky v okolí:
  • Informace o obci:
    Obec Brno má 371371 obyvatel, z toho 256490 v produktivním věku.
    V obci se nachází pošta.
    V obci se nachází škola, popř. školka.
    V obci se nachází zdravotní zařízení.
    V obci je rozvod kanalizace.
    V obci je rozvod městské vody.
    V obci je rozvod plynu.

Podobné nabídky v okolí

Lokalita: Hradecká 1, Brno, okres Brno-město, Česká republika Hradecká 1, Brno, okr. Brno-město