• Sledovat cenu
  •  

Zasílání upozornění emailem:

Sklad 1601 m2 - Humpolecká, Havlíčkův Brod

Cena: 19 990 000 Kč
Stav:Volný
1601 m2, cihlová, parcela 7592 m2
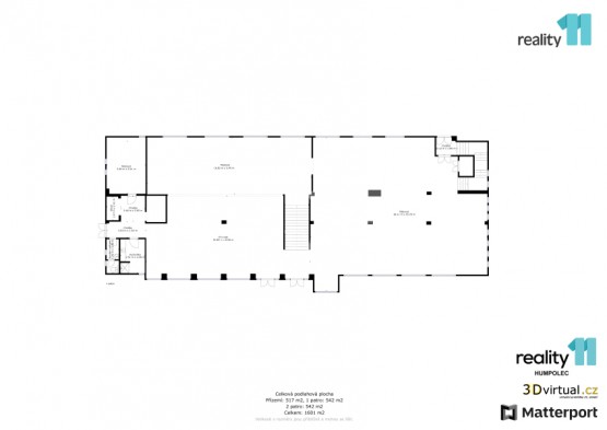
Popis: Reality 11 Vám zprostředkují koupi komerční budovy včetně pozemku ke komerční výstavbě o celkové ploše 7. 592m². Jedná se o třípodlažní budovu s celkovou užitnou plochou 1601m², s tím, že 1. PP má užitnou plochu 517m², 1.... NP (první nadzemní patro) má užitnou plochu 542m², 2. NP (druhé nadzemní patro) má užitnou plochu 542m². Stavba byla v minulosti využívána pro vojenské účely v areálu havlíčkobrodských kasáren, aktuálně je využívána ke skladování zboží. Je více možností dalšího komerčního využití a dále možnost výstavby skladovací, výrobní haly na pozemku, který je v územním plánu určen jako plocha VD - plocha výroby a skladování - drobná a řemeslná výroba. Hlavní využití území: malovýroba, řemeslná či přidružená výroba, výrobní i nevýrobní služby, plochy pro malé a střední formy podnikání. Přípustné využití: skladování pro potřeby výroby, podniková administrativa, obchodní zařízení do 2000 m² hrubé podlažní plochy, služební byty správců objektů či nezbytného technického personálu, zařízení a infrastruktura pro průmyslový výzkum, vývoj a inovace ve vazbě na výrobu (více zašleme). Koeficient zastavení pozemku 60. Komerční zóna se nachází na okraji Města Havlíčkův Brod s příjezdem z ulice Humpolecká, dostupnost dálnice D1 velice dobrá (exit D90 Humpolec je vzdálen 20km). K dispozici pro vás máme půdorysy objektu a dále také 3Dvirtuální prohlídku od společnosti 3Dvirtualcz, kde si objekt můžete projít z pohodlí své kanceláře, svého domova. V případě zájmu o více informací kontaktujte makléře společnosti. Ev. číslo: 24237. Energetický štítek: G (300 kWh/m2/rok).
  • Vložení inzerátu:
    7.5.2025
  • Kód:
    3982853
  • Typ nemovitosti:
    Sklad
  • Typ budovy:
    Cihlová
  • Zastavěná plocha:
    655 m2
  • Podlahová plocha:
    1601 m2
  • Plocha parcely:
    7592 m2
  • Stav objektu:
    Dobrý
  • Umístění objektu:
    Okraj
  • Energetická náročnost:
    G - Mimořádne nehospodárná
  • Ukazatel náročnosti:
    300 kWh/m2
  • Nabídky v okolí:
  • Informace o obci:
    Obec Havlíčkův Brod má 24166 obyvatel, z toho 16812 v produktivním věku.
    V obci se nachází pošta.
    V obci se nachází škola, popř. školka.
    V obci se nachází zdravotní zařízení.
    V obci je rozvod kanalizace.
    V obci je rozvod městské vody.
    V obci je rozvod plynu.
Lokalita: Humpolecká , Havlíčkův Brod, okres Havlíčkův Brod, Česká republika Humpolecká, Havlíčkův Brod

Kontakt

Václav Duben


Podobné nabídky v okolí


Volná pracovní místa ExpertPrace.cz
  • Objednání prohlídky a více informací
  •  
  • Poslat na e-mail
  •  

Zasílání odkazu na realitu emailem: