• Sledovat cenu
  •  

Zasílání upozornění emailem:

Sklad 1126 m2 - Brno, okr. Brno-město (již není v nabídce)

Cena: 26 000 000 Kč
Stav:archiv
1126 m2, skeletová
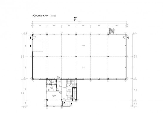
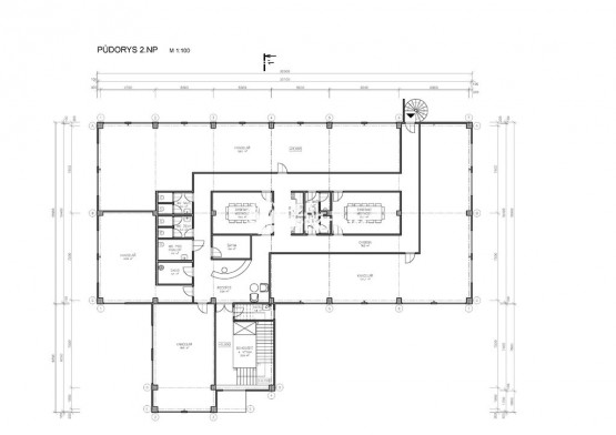
Popis: Ve výhradním zastoupení majitele nabízíme ke koupi dvoupodlažní objekt skladu/výroby a kanceláří o celkové podlahové ploše 1126 m2. Jedná se o projekt výstavby na míru zájemce, zahájení stavby léto 2018. Objekt ...bude napojen na všechny inženýrské sítě, možnost obsluhy kamionem. Jedná se o jedinečnou příležitost koupě objektu na severu Brna.

Celková užitná plocha 1126 m2
Pozemek: 787 m2

Dispozice objektu:
Celková výška objektu 8, 7 metru, přízemí 5 metru.
I. nadzemní podlaží 574 m2 (prostory pro sklad a výrobu + sociální zázemí)
II. nadzemní podlaží 552 m2 (kancelářské prostory)

K dispozici všechny inženýrské sítě, manipulační a parkovací plocha u objektu.

Bližší informace u zástupce realitní společnosti. Neplatíte provizi realitní společnosti.
  • Vložení inzerátu:
    10.4.2018
  • Kód:
    N/RSB/17100/18
  • K dispozici od:
    0.0.0
  • Typ nemovitosti:
    Sklad
  • Typ budovy:
    Skeletová
  • Podlahová plocha:
    1126 m2
  • Stav objektu:
    Velmi dobrý
  • Umístění objektu:
    Centrum
  • Energetická náročnost:
    G - Mimořádne nehospodárná
  • Nabídky v okolí:
  • Informace o obci:
    Obec Brno má 371371 obyvatel, z toho 256490 v produktivním věku.
    V obci se nachází pošta.
    V obci se nachází škola, popř. školka.
    V obci se nachází zdravotní zařízení.
    V obci je rozvod kanalizace.
    V obci je rozvod městské vody.
    V obci je rozvod plynu.

Podobné nabídky v okolí

Lokalita: Brno, okres Brno-město, Česká republika Brno, okr. Brno-město, Jihomoravský kraj