• Sledovat cenu
  •  

Zasílání upozornění emailem:

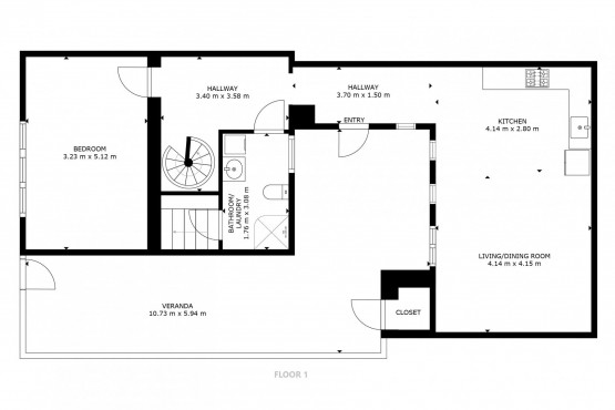
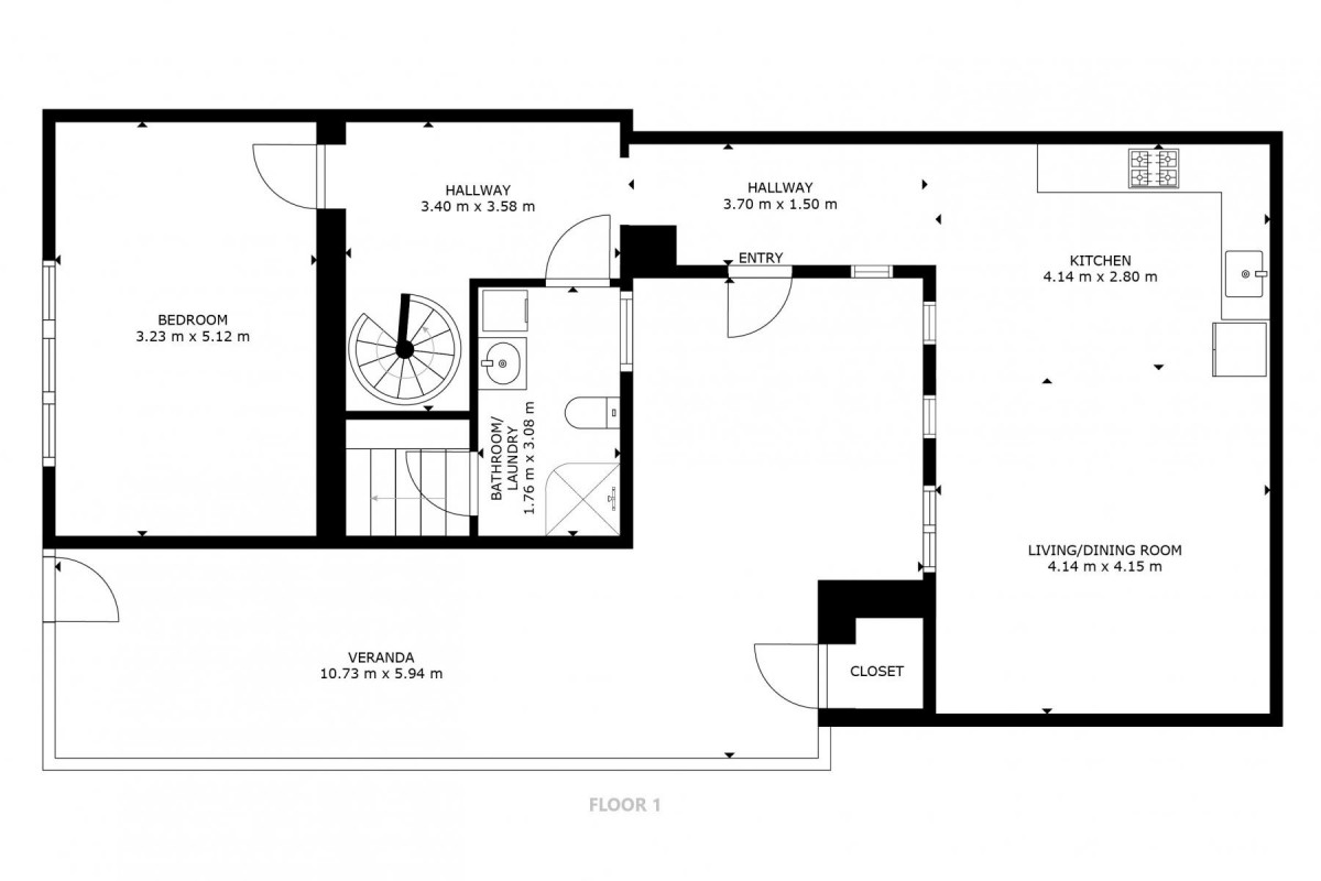
Rodinný dům, 98 m2 - Příčná, Jeneč, okr. Praha-západ

Cena: 8 990 000 Kč
Stav:Volný
98 m2, cihlová, parcela 124 m2
Popis: Prodáme rodinný dům, který prošel čerstvou a rozsáhlou kompletní rekonstrukcí v oblíbené obci Jeneč, pouhých pár minut od Prahy.

Dům má dvě podlaží, včetně plně obytného podkroví, užitnou plochu necelých 100 m a nabízí ...příjemné a pohodlné rodinné bydlení bez nutnosti dalších investic.
Součástí domu je také menší sklep o výměře cca 9, 4 m, který slouží jako praktický úložný prostor.
Vše je připraveno k okamžitému nastěhování.

Rekonstrukce zahrnovala kompletně nové rozvody elektřiny i plynového topení, nové podlahy a omítky, moderní koupelnu, nové zateplení fasády (mimo uliční stranu) a novou střešní krytinu. Dům je napojen na všechny inženýrské sítě vodu, kanalizaci i plyn. Díky provedeným úpravám má nemovitost výrazně nižší energetickou. PENB se nyní vyřizuje.

Jeneč patří mezi vyhledávané lokality díky své poloze a rychlému spojení na Prahu. Na Zličín, letiště i dálnici D6 je to jen několik minut. V obci i v blízkém okolí najdete kompletní občanskou vybavenost školy, školky, obchody, služby, restaurace i sportovní vyžití. Dům se nachází v klidné části obce, což z něj dělá ideální místo pro rodinné bydlení.

Pro více informací o nemovitosti se na mě neváhejte obrátit.
Rád s vámi domluvím i osobní prohlídku.
  • Vložení inzerátu:
    3.12.2025
  • Kód:
    362
  • Typ nemovitosti:
    Rodinný dům
  • Typ budovy:
    Cihlová
  • Zastavěná plocha:
    92 m2
  • Podlahová plocha:
    98 m2
  • Plocha parcely:
    124 m2
  • Sklep:
    9 m2
  • Stav objektu:
    Po rekonstrukci
  • Telekomunikace:
    Internet
  • Voda:
    dálkový vodovod
  • Elektřina:
    230 V
  • Doprava:
    silnice, dálnice, MHD, autobus, vlak
  • Topeni:
    ústřední plynové
  • Plyn:
    plynovod
  • Odpad:
    kanalizace
  • Komunikace:
    asfaltová
  • Bezbariérový přístup:
    Ano
  • Nabídky v okolí:
  • Informace o obci:
    Obec Jeneč má 1219 obyvatel, z toho 852 v produktivním věku.
    V obci se nachází pošta.
    V obci se nachází zdravotní zařízení.
    V obci je rozvod kanalizace.
    V obci je rozvod městské vody.
    V obci je rozvod plynu.
Lokalita: Příčná , Jeneč, okres Praha-západ, Česká republika Příčná, Jeneč, okr. Praha-západ



Volná pracovní místa ExpertPrace.cz
  • Objednání prohlídky a více informací
  •  
  • Poslat na e-mail
  •  

Zasílání odkazu na realitu emailem: