• Sledovat cenu
  •  

Zasílání upozornění emailem:

Rodinný dům, 97 m2 - Žebrák, okr. Beroun (již není v nabídce)

Cena: 2 992 600 Kč
Stav:archiv
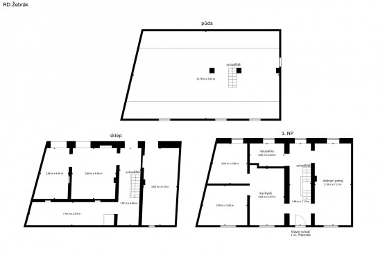
97 m2, cihlová, parcela 166 m2
Popis: Žebrák je u dálnice D5, přesně na půli cesty mezi Prahou a Plzní, má občanskou vybavenost na počet obyvatel opravdu dostatečnou a pestrou. Najdeme tu vše, co moderní rodina dnes potřebuje. Dům který Vám nabízím je rovné ...2, 5 minuty od centra všeho dění a nespornou výhodou je, že je ve stavu před kompletní rekonstrukcí. Nový majitel nebo investor si může podle svého uvážení a potřeb vymyslet dispozice, vybavení místností včetně půdy, což znamené že dům může mít až 286m2 obytné plochy. Velké sklepy s klenbami a přímým vstupem na zahradu, určitě najdou využití například na sklípek.
Podívejte se tedy prosím na virtuální prohlídku a nezapomeňte na video.
Pro více informací a domluvení osobní prohlídky nás neváhejte kontaktovat
  • Vložení inzerátu:
    7.9.2023
  • Kód:
    PL100/22
  • K dispozici od:
    0.0.0
  • Typ nemovitosti:
    Rodinný dům
  • Typ budovy:
    Cihlová
  • Podlahová plocha:
    97 m2
  • Plocha parcely:
    166 m2
  • Sklep:
    97 m2
  • Stav objektu:
    Před rekonstrukcí
  • Elektřina:
    230 V
  • Doprava:
    silnice, dálnice, MHD, autobus
  • Komunikace:
    asfaltová
  • Nabídky v okolí:
  • Informace o obci:
    Obec Žebrák má 2117 obyvatel, z toho 1469 v produktivním věku.
    V obci se nachází pošta.
    V obci se nachází škola, popř. školka.
    V obci se nachází zdravotní zařízení.
    V obci je rozvod kanalizace.
    V obci je rozvod městské vody.
    V obci je rozvod plynu.

Podobné nabídky v okolí

Lokalita: Žebrák, okres Beroun, Česká republika Žebrák, okr. Beroun, Středočeský kraj