Rodinný dům, 94 m2 - K Dubovému mlýnu, Praha 6, Praha (již není v nabídce)
Cena:
15 900 000 Kč
Stav:archiv
94 m2, cihlová, parcela 312 m2
Popis:
Cena je uvedena včetně provize RK a právního servisu. . Reality 11 Vám zprostředkují exkluzivní prodej rodinného domu v klidné a příjemné lokalitě plné zeleně v městské části Praze 6 - Dejvice.
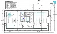
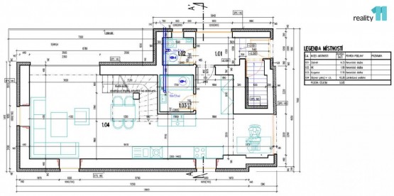
Jedná se o dvoupodlažní d...ům po kompletní rekonstrukci o velikosti 3+kk a celkové obytné ploše 94 m² s prostorným sklepem v 1PP o velikosti 44 m².
V přízemí domu se nachází vstupní chodba, samostatné sociální zařízení WC a koupelna s vanou. Dále je zde prostorný a dobře prosvětlený obývací pokoj s kuchyňským koutem (45m²) s okny na všechny světové strany a se vstupem na dřevěnou visutou terasu s možností posezení v absolutním klidu.
Po schodech nahoru z obývacího pokoje se nachází dva samostatné pokoje (15m² a 16m²) a druhá koupelna se sprchovým koutem a sociální zařízení WC.
V obytných prostorách domu je položena laminátová podlaha a dlažba s příjemným podlahovým vytápěním.
Osazena jsou plastová okna s trojskly a dům je zateplen 16cm polystyrenu, díky tomu se jedná o velice úsporný dům PENB „B“.
Pozemek je oplocený s vjezdovými vraty a parkováním pro 2 auta.
Máte. li zájem o prohlídku domu, kontaktujte mě buď emailem nebo na uvedené tel. číslo. Ev. číslo: 21976. Energetický štítek: B (131 kWh/m2/rok).
- Vložení inzerátu:
12.4.2025
- Kód:
3973632
- Typ nemovitosti:
Rodinný dům
- Typ budovy:
Cihlová
- Zastavěná plocha:
54 m2
- Podlahová plocha:
94 m2
- Plocha parcely:
312 m2
- Terasa:
Ano
- Sklep:
Ano
- Stav objektu:
Novostavba
- Umístění objektu:
Klidná část
- Energetická náročnost:
B - Velmi úsporná
- Ukazatel náročnosti:
131 kWh/m2
- Nabídky v okolí:
Lokalita:
K Dubovému mlýnu , Praha 6, Praha, Česká republika
K Dubovému mlýnu, Praha 6, Praha