• Sledovat cenu
  •  

Zasílání upozornění emailem:

Rodinný dům, 92 m2 - Rudoltice , okr. Ústí nad Orlicí (již není v nabídce)

Cena: 6 995 000 Kč
Stav:archiv
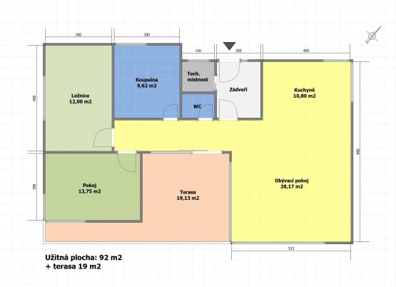
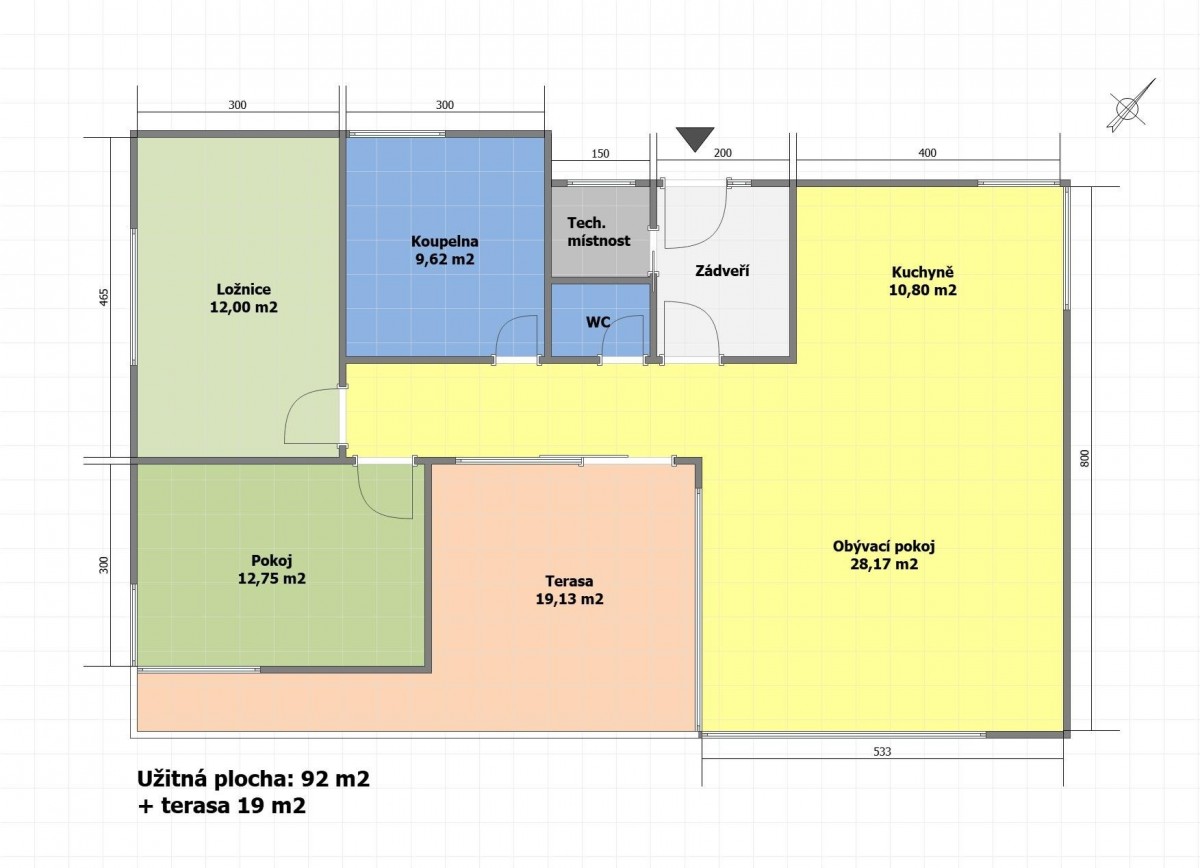
92 m2, dřevostavba, parcela 801 m2
Popis: Pokud hledáte bydlení v Lanškrouně nebo přilehlém okolí, mohl by vás tento nízkoenergetický bungalov z roku 2015 zaujmout!

Dům se nachází na kopci za městem Lanškroun v lokalitě Zámeček s krásnou okolní přírodou.
Dům o dis...pozici 3+kk s jihovýchodní orientací se nachází na rovinatém pozemku o velikosti 801 m2. Zastavěná plocha činí 117 m2.

Dům má čistou podlahovou plochu 92 m2 a najdete v něm 2 samostatné pokoje (ložnice), prostorný obývací pokoj s kuchyňským koutem, dále koupelnu s vanou a sprchovým koutem, samostatné sociální zařízení WC, praktickou technickou místnost a dostatečně velké zádveří s šatní skříní. Dominantu domu tvoří úžasná terasa, která je přístupná z obývacího pokoje nebo chodby. Tato terasa je zanořena do budovy, čímž je ze tří stran chráněna proti větru a zastřešena je skleněnými tabulemi, což zajišťuje dostatek denního světla.

Teď trochu technických informací. Jedná se o nízkoenergetickou dřevostavbu (realizační firma CHB Dřevostavby z České Třebové). Dům je osazen okny s izolačními trojskly. Vytápění zajištují elektrické přímotopy, v obývacím pokoji jsou instalována krbová kamna a jednotka tepelného čerpadla (vzduch/vzduch), která v zimě topí a v létě funguje jako klimatizace. Voda je ohřívána elektrickým bojlerem umístěným v technické místnosti. Prostorná kuchyňská linka je vybavena všemi standardními vestavnými spotřebiči (lednice s mrazákem, myčka, trouba, sklokeramická deska a mikrovlnná trouba) plus je v lince zabudována chladnička na víno.

Parkování dvou vozidel je možné na zpevněné ploše v severovýchodní části pozemku, tato plocha se nachází hned za vstupní posuvnou bránou s elektrickým pohonem. V zadní části pozemku se nachází dřevěné kolny k uskladnění dřeva, nářadí a vlastně všeho možného. Pozemek kolem domu působí velice čistým a svěžím dojmem.

Pokud si chcete dům prohlédnout a nebo získat více informací o domě, neváhejte nás kontaktovat.
  • Vložení inzerátu:
    12.10.2023
  • Kód:
    2023019
  • K dispozici od:
    0.0.0
  • Typ nemovitosti:
    Rodinný dům
  • Typ budovy:
    Dřevostavba
  • Podlahová plocha:
    92 m2
  • Plocha parcely:
    801 m2
  • Terasa:
    19 m2
  • Stav objektu:
    Novostavba
  • Rok výstavby:
    2015
  • Rok kolaudace:
    2015
  • Umístění objektu:
    Klidná část
  • Voda:
    dálkový vodovod
  • Elektřina:
    230 V, 380 V
  • Doprava:
    vlak, silnice, autobus
  • Odpad:
    kanalizace
  • Komunikace:
    dlážděná
  • Bezbariérový přístup:
    Ano
  • Energetická náročnost:
    B - Velmi úsporná
  • Podle vyhlášky:
    c. 78/2013 Sb.
  • Ukazatel náročnosti:
    129 kWh/m2
  • Nabídky v okolí:
  • Informace o obci:
    Obec Rudoltice má 1730 obyvatel, z toho 1256 v produktivním věku.
    V obci se nachází pošta.
    V obci se nachází zdravotní zařízení.
    V obci je rozvod kanalizace.
    V obci je rozvod městské vody.
    V obci je rozvod plynu.

Podobné nabídky v okolí

Lokalita: Rudoltice , okres Ústí nad Orlicí, Česká republika Rudoltice , okr. Ústí nad Orlicí, Pardubický kraj