• Sledovat cenu
  •  

Zasílání upozornění emailem:

Rodinný dům, 90 m2 - Nekmíř, okr. Plzeň-sever (již není v nabídce)

Cena: 1 990 000 Kč
Stav:archiv
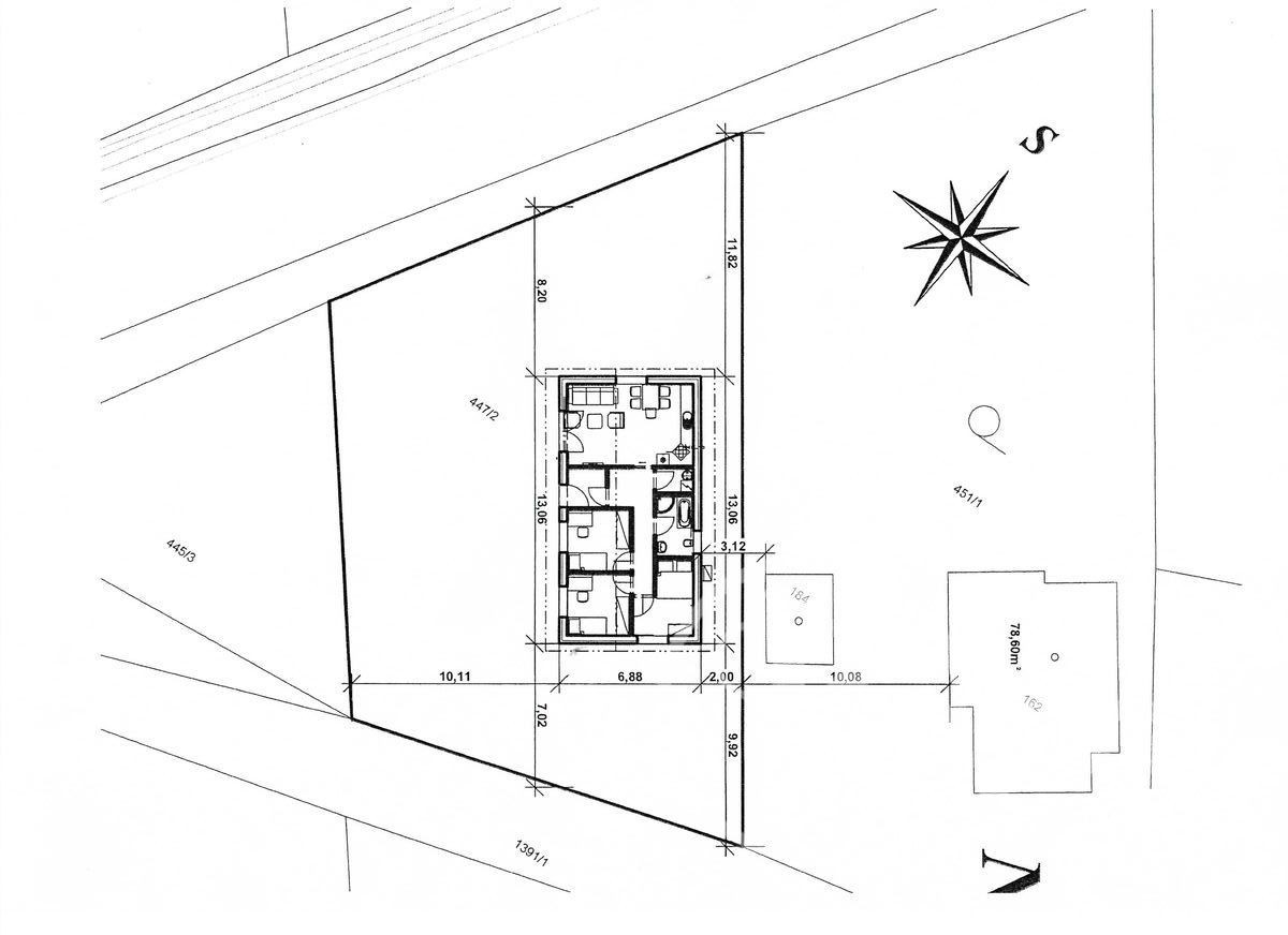
90 m2, cihlová, parcela 524 m2
Popis: Kopta reality zajišťuje prodej schváleného projektu na bezbariérový, jednopodlažní dům a zároveň pozemek p. č. 447/2 o ploše 524 m2 v obci Nekmíř , 14 km severně od okraje Plzně (Hypermarket Globus - Chotíkov)... na trase Plzeň - Karlovy Vary. Majitel má již nyní souhlas obce k výstavbě domu k rekreaci o ploše 100m2, s energetickou třídou skupiny B - velice úsporná (103 kWh) a dále souhlas s připojením domu na ČOV (osobní vlastnictví), přípojky jednotné kanalizace a přípojky vody, oplocení.
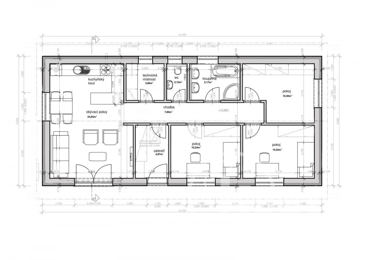
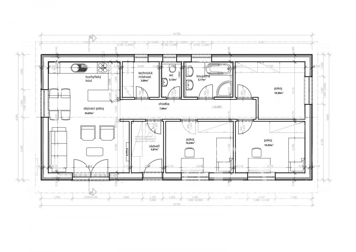
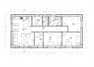
Projekt zhotovila projekční kancelář ZC rodinné domky s. r. o. Jedná se o jednopodlažní, přízemní rekreační dům obdélníkového půdorysu 14, 70 x 6, 80 m, se sedlovou střechou, výškou 4, 76 m a zastavěnou plochou 99, 96 m2, včetně zateplení. Dům je o dispozici 4+kk, tzn obývací pokoj s kuchyňským koutem, 3 pokoje, koupelna, sociální zařízení WC, technická místnost, zádveří. V tuto chvíli jde do finále již samotná realizace přípojky elektřiny od ČEZ. Vytápění objektu naplánováno pomocí tepelného čerpadla vzduch/voda, umístěno při SZ stěně domu. Na pozemku jsou plánovány 2 parkovací místa, odkanalizování do domovní ČOV (osobní vlastnictví) včetně napojení na stávající jednotnou kanalizaci obce. V ceně není zahrnuta cena za realizaci, výstavbu domu.

Obec Nekmíř leží v okrese Plzeň - sever, žije v ní přes 500 obyvatel a zahrnuje ještě přilehlou obec Lhotku. Významnou stavbu obce je původní tvrz přestavěna na zámek s přiléhajícím panským dvorem, bývalým pivovarem a anglickým parkem s rybníčkem. Je zde činný spolek SDH Nekmíř a TJ Nekmíř. Škola a školka je v 5km vzdálených Všerubech. Do obce jezdí pravidelný autobusový spoj, výhodou je jistě velice rychlá dostupnost po udržované komunikaci do Plzně. Vzhledem k tomu, že budoucí vlastník má již veškeré "papírování" ohledně výstavby, schvalování a další úkonů již zařízené a zajištěné, uspoří poměrně hodně času, peněz a nervů. Můžete tedy rovnou zahájit samotnou výstavbu domu. Jako reálná se jeví možnost přikoupení vedlejší parcely jiného vlastníka o ploše cca 206 m2 v cípu pozemku, tedy celková výměra by tak činila 730 m2.
  • Vložení inzerátu:
    4.5.2022
  • Kód:
    0294
  • Typ nemovitosti:
    Rodinný dům
  • Typ budovy:
    Cihlová
  • Podlaží:
    1
  • Zastavěná plocha:
    100 m2
  • Podlahová plocha:
    90 m2
  • Plocha parcely:
    524 m2
  • Stav objektu:
    Velmi dobrý
  • Umístění objektu:
    Okraj
  • Voda:
    dálkový vodovod
  • Elektřina:
    230 V
  • Doprava:
    silnice, autobus
  • Odpad:
    ČOV
  • Komunikace:
    asfaltová
  • Bezbariérový přístup:
    Ano
  • Energetická náročnost:
    B - Velmi úsporná
  • Podle vyhlášky:
    c. 148/2007 Sb
  • Ukazatel náročnosti:
    103 kWh/m2
  • Nabídky v okolí:
  • Informace o obci:
    Obec Nekmíř má 445 obyvatel, z toho 309 v produktivním věku.
    V obci je rozvod plynu.

Podobné nabídky v okolí

Lokalita: Nekmíř, okres Plzeň-sever, Česká republika Nekmíř, okr. Plzeň-sever, Plzeňský kraj