• Sledovat cenu
  •  

Zasílání upozornění emailem:

Rodinný dům, 90 m2 - Kolová , okr. Karlovy Vary

Cena: 8 990 000 Kč
Stav:Volný
90 m2, dřevostavba, parcela 909 m2
Popis: Nabízíme k prodeji zcela nový rodinný dům 4+kk v oblíbené obci Kolová, jen pár minut od Karlových Varů.
Dům je nově dokončený, nikdy neobývaný a připravený k okamžitému nastěh...ování. Stačí jen dokončit kuchyňskou linku, terénní úpravy a oplocení.

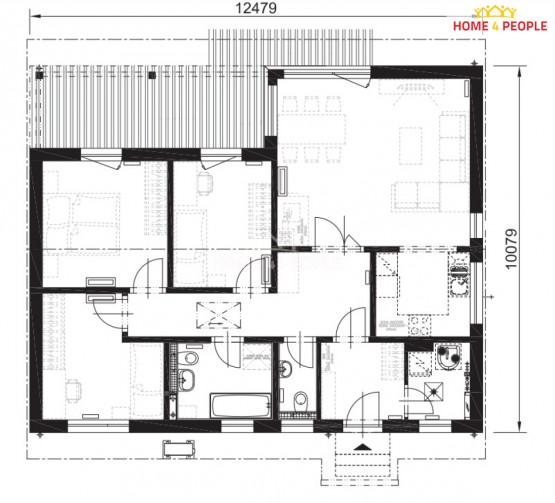
Dům o dispozici 4+kk s užitnou plochou 90 m² stojí na rovinatém pozemku o rozloze přibližně 1 000 m². Součástí je také terasa o velikosti 14, 5 m², kterou je potřeba dokončit a parkování je možné přímo na vlastním pozemku. Stavba byla dokončena v roce 2025.

Dispozičně je dům řešen velice prakticky. Nachází se zde zádveří o výměře 5 m², chodba o velikosti 11 m², samostatné sociální zařízení WC o rozloze 2, 30 m² a koupelna s dalším sociální zařízení WC o velikosti 6 m². Ložnice má 12 m², první pokoj 10 m² a druhý pokoj 9 m². Z obou pokojů je přímý vstup na terasu. Dominantou domu je prostorný obývací pokoj o výměře 24, 5 m², na který navazuje kuchyně o velikosti 6, 5 m², která je připravená k dokončení podle představ nového majitele. V zadní části domu se nachází technická místnost o rozloze 3, 5 m², kde je umístěn bojler a příprava pro další technologie.

Mezi hlavní výhody domu patří to, že se jedná o zcela novou stavbu od českého výrobce, která nabízí kvalitní a úsporné bydlení. Interiér je proveden v nadstandardu – najdete zde vinylové podlahy, antracitové detaily (vypínače, zásuvky, okna). Obývací pokoj doplňuje velké francouzské okno HS - portál s bezbariérovým vstupem na zahradu a současně je v obývacím pokoji možnost instalace krbových kamen. Dům je vybaven trojskly, v každé místnosti klimatizací a podlahovým topením. Kromě toho je zde příprava pro fotovoltaiku, dobíjecí zásuvku pro elektromobil, venkovní žaluzie.

Obec Kolová nabízí klidné bydlení obklopené přírodou, přesto se skvělou dostupností do Karlových Varů. V obci je MHD, škola, obchod, pošta, nedaleko se nachází golfové hřiště a celkově jde o ideální místo pro rodiny i ty, kteří hledají klidné, pohodové bydlení v blízkosti města. V případě dotazů, mě neváhejte kontaktovat. Ev. číslo: 32020. Energetický štítek: B
  • Vložení inzerátu:
    25.11.2025
  • Kód:
    3994059
  • Typ nemovitosti:
    Rodinný dům
  • Typ budovy:
    Dřevostavba
  • Zastavěná plocha:
    125 m2
  • Podlahová plocha:
    90 m2
  • Plocha parcely:
    909 m2
  • Terasa:
    Ano
  • Stav objektu:
    Novostavba
  • Energetická náročnost:
    B - Velmi úsporná
  • Nabídky v okolí:
  • Informace o obci:
    Obec Kolová má 698 obyvatel, z toho 520 v produktivním věku.
    V obci se nachází pošta.
    V obci se nachází zdravotní zařízení.
    V obci je rozvod kanalizace.
    V obci je rozvod městské vody.
Lokalita: Kolová , okres Karlovy Vary, Česká republika Kolová , okr. Karlovy Vary, Karlovarský kraj

Kontakt

Martin Halámek


Podobné nabídky v okolí


Volná pracovní místa ExpertPrace.cz
  • Objednání prohlídky a více informací
  •  
  • Poslat na e-mail
  •  

Zasílání odkazu na realitu emailem: