• Sledovat cenu
  •  

Zasílání upozornění emailem:

Rodinný dům, 89 m2 - Komenského, Jáchymov, okr. Karlovy Vary (již není v nabídce)

Cena: 2 050 000 Kč
Stav:archiv
89 m2, cihlová, parcela 344 m2
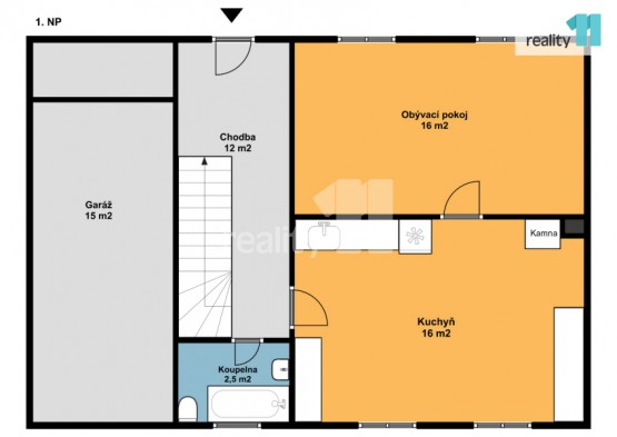
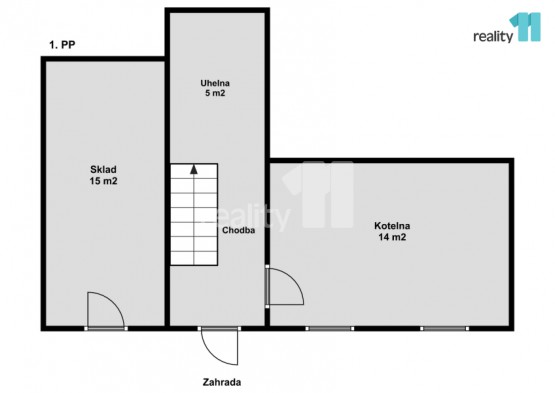
Popis: Prodej řadového domu o dispozici 4+1 s garáží a zahradami v okrajové části města Jáchymov. Celková obytná plocha domu je 128m², užitná plocha domu je 194m², před zahrada 47m² a zahr...ady přes ulici ve svahu o 208m². Obě zahrady jsou orientovány na jižní stranu. Jedná se o dům cihlový s vápencobřidlicovou fasádou, sedlovou střechou s dřevěným vazníkovým krovem. V 1PP je kotelna s prádelnou, uhelnou a se samostatným vchodem ze zahrady do skladu. V 1. NP (první nadzemní patro) je vstupní chodba o 12m², koupelna s sociální zařízení WC o 2, 5m², dále kuchyně s kamny na tuhá palivy, stávající kuchyňská linka s plastovými okny na jih a průchod do obývacího pokoje s dřevěnými okny do ulice na sever, jednotlivě o 16m². Podlahy v obou místnostech jsou dřevěné. Do půdního prostoru vedou dřevěné schody z chodby do patra s chodbou a vikýřovým oknem, dveře do dvou pokojů, každý o 16m². Podlahy tvoří OSB desky, okna jsou dřevěná. Půdní prostor prošel před 10ti lety částečnou rekonstrukcí, která zahrnovala rekonstrukci střechy položením beternitu a její zateplení včetně výměny dřevěných oken. Dále na stávající sklepní skladovou místností o 15m², vystavění garáže o 15m² a dostavění půdního obytného prostoru o 11m² a koupelny o 6m². Celkově půdní, tedy 2 NP nabízí tři pokoje a prostor připravený k vybudování koupelny o celkové obytné ploše 63m². Nad 2NP (druhé nadzemní patro) je menší půda s podchodnou výškou se střešním oknem o ploše 23m². Sklepní kamenné prostory tvoří sklad, chodba s uhelnou a kotelna kde je umístěn elektrokotel, kotel na tuhá paliva a el. bojler o celkové ploše 46m². Dům je vytápěný ústředním topením na tuhá palivy a elektrokotlem s plechovými radiátory, s rozvodem teplé i studené vody, napojený na vodovodní, elektro i kanalizační přípojky. Město Jáchymov nabízí veškerou občanskou vybavenost. Lázně pak aquapark, okolní hory letní turistiku a v zimních měsících běžkování a sjezdové lyžování ve ski areálu Klínovec. Ev. číslo: 26022. Energetický štítek: G
  • Vložení inzerátu:
    14.9.2024
  • Kód:
    3855194
  • Typ nemovitosti:
    Rodinný dům
  • Typ budovy:
    Cihlová
  • Zastavěná plocha:
    89 m2
  • Podlahová plocha:
    89 m2
  • Plocha parcely:
    344 m2
  • Sklep:
    Ano
  • Stav objektu:
    Velmi dobrý
  • Energetická náročnost:
    G - Mimořádne nehospodárná
  • Nabídky v okolí:
  • Informace o obci:
    Obec Jáchymov má 3115 obyvatel, z toho 2246 v produktivním věku.
    V obci se nachází pošta.
    V obci se nachází škola, popř. školka.
    V obci se nachází zdravotní zařízení.
    V obci je rozvod kanalizace.
    V obci je rozvod městské vody.
    V obci je rozvod plynu.

Podobné nabídky v okolí

Lokalita: Komenského , Jáchymov, okres Karlovy Vary, Česká republika Komenského, Jáchymov, okr. Karlovy Vary