• Sledovat cenu
  •  

Zasílání upozornění emailem:

Rodinný dům, 85 m2 - Fryštátská 1, Karviná (již není v nabídce)

Cena: 1 450 000 Kč
Stav:archiv
85 m2, cihlová, parcela 1800 m2
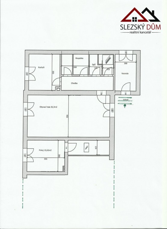
Popis: Nabízíme Vám v zastoupení majitele ke koupi 1/2 rodinného domu se samostatným vchodem, zastavěná plocha cca 95 m2.
Celý dům je postavený jako dvojdomek se společným vjezdem na nádvoří.
V přízemí je veranda (2 k...rát 3, 5 m), chodba se vstupem do kuchyně 3, 5 krát 3 m a sociálního zařízení (samostatná koupelna, sociální zařízení WC), technická místnost. Vstup do 2 pokojů (4 krát 8 m a 3 krát 3, 5 m.
Po dřevěném schodišti je vstup do podkroví s malým pokojíkem. V podsklepené části se nachází kotelna a úložný prostor.
Tato část domu má samostatnou přípojku elektro, vodovodní, plynovou, jímku.
Vytápění plynem nebo na tuhá paliva, ohřev vody bojler. Součástí je garáž.
Pozemek pro osobní využívání - předzahrádka cca 50 m2 a zahrada za domem má 1 600 m2.
Dům j v původním stavu, je obyvatelný, vhodný k rekonstrukci.
Nachází se v klidné části okraje centra města Karviná - Fryštát. V dosahu veškerá občanská vybavenost.
Majitel si vyhrazuje právo prodeje vybranému zájemci.
  • Vložení inzerátu:
    10.9.2019
  • Kód:
    11982
  • K dispozici od:
    0.0.0
  • Typ nemovitosti:
    Rodinný dům
  • Typ budovy:
    Cihlová
  • Podlahová plocha:
    85 m2
  • Plocha parcely:
    1800 m2
  • Sklep:
    Ano
  • Stav objektu:
    Před rekonstrukcí
  • Umístění objektu:
    Klidná část
  • Voda:
    dálkový vodovod
  • Elektřina:
    230 V
  • Doprava:
    silnice, MHD, autobus
  • Topeni:
    ústřední plynové
  • Plyn:
    plynovod
  • Energetická náročnost:
    G - Mimořádne nehospodárná
  • Nabídky v okolí:
  • Informace o obci:
    Obec Karviná má 60679 obyvatel, z toho 42232 v produktivním věku.
    V obci se nachází pošta.
    V obci se nachází škola, popř. školka.
    V obci se nachází zdravotní zařízení.
    V obci je rozvod kanalizace.
    V obci je rozvod městské vody.
    V obci je rozvod plynu.

Podobné nabídky v okolí

Lokalita: Fryštátská 1, Karviná, okres Karviná, Česká republika Fryštátská 1, Karviná