• Sledovat cenu
  •  

Zasílání upozornění emailem:

Rodinný dům, 85 m2 - Hlušice , okr. Hradec Králové (již není v nabídce)

Cena: 6 200 000 Kč
Stav:archiv
85 m2, dřevostavba, parcela 919 m2
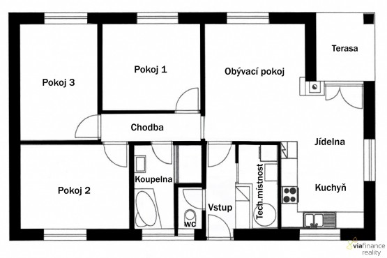
Popis: Exkluzivně Vám nabízíme prodej novostavby v obci Hlušice, kolaudované v březnu 2024. Jde o sendvičovou dřevostavbu z desek RigiStabil o dispozici 4+kk a velikostí užitné plochy... 85 m2.

Dům je hezky a prakticky dispozičně řešený. Ve vstupní chodbě je samostatná toaleta a technická místnost, kde je prostor pro umístění pračky a sušičky a další úložný prostor. Je zde také vstup na půdu, která je částečně pochozí a nabízí tak další úložný prostor. Obývací pokoj je propojený s kuchyňským a jídelním koutem, pokoje a koupelna jsou pak přístupné z další chodby a jsou tedy od hlavní části odděleny.

Dům je vytápěn tepelným čerpadlem vzduch - voda, v celém domě je podlahové topení, v koupelně navíc žebříkový radiátor. Příjemnou atmosféru mohou dodat krbová kamna, která je možno připojit v obývacím pokoji.

Dům je napojený na obecní kanalizaci a vodu, pozemek má celkovou velikost 919 m2. Doporučuji prohlídku této nemovitosti, kterou si můžete doladit dle vlastního vkusu a stát se tak jejími prvními obyvateli.
  • Vložení inzerátu:
    18.11.2024
  • Kód:
    01077-1
  • K dispozici od:
    0.0.0
  • Typ nemovitosti:
    Rodinný dům
  • Typ budovy:
    Dřevostavba
  • Zastavěná plocha:
    107 m2
  • Podlahová plocha:
    85 m2
  • Plocha parcely:
    919 m2
  • Stav objektu:
    Novostavba
  • Rok výstavby:
    2024
  • Rok kolaudace:
    2024
  • Umístění objektu:
    Klidná část
  • Voda:
    místní zdroj
  • Topeni:
    ústřední elektrické
  • Odpad:
    kanalizace
  • Komunikace:
    asfaltová
  • Energetická náročnost:
    B - Velmi úsporná
  • Podle vyhlášky:
    c. 78/2013 Sb.
  • Ukazatel náročnosti:
    111.7 kWh/m2
  • Nabídky v okolí:
  • Informace o obci:
    Obec Hlušice má 766 obyvatel, z toho 525 v produktivním věku.
    V obci se nachází pošta.
    V obci se nachází škola, popř. školka.
    V obci je rozvod kanalizace.
    V obci je rozvod městské vody.
    V obci je rozvod plynu.

Podobné nabídky v okolí

Lokalita: Hlušice , okres Hradec Králové, Česká republika Hlušice , okr. Hradec Králové, Královéhradecký kraj