• Sledovat cenu
  •  

Zasílání upozornění emailem:

Rodinný dům, 84 m2 - Zlín , okr. Zlín

Cena: 3 948 000 Kč
Stav:Volný
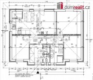
84 m2, cihlová, parcela 800 m2
Popis: Cena domu na klíč v provedení zděná stavba včetně DPH, bez pozemku. . Dumrealit. cz Vám nabízí výstavbu typového bungalovu Bára v provedení zděná stavba na klíč s dispozicí 4+kk...> o užitné ploše 67 m² a zastavené ploše 84 m². Výstavbu provedeme na Vašem pozemku - není součástí ceny. Zdarma prověříme, zda lze tento dům na vašem pozemku postavit, prověříme i dostupnost sítí a územní plán. V projektu jsou možné variabilní úpravy dispozice (posuny příček či oken). Jedná se o přízemní dům, ideální až pro 4 člennou rodinu s nízkými provozními náklady. Uvedená cena je za kompletní výstavbu domu na klíč, včetně DPH, projektové dokumentace, vyřízení stavebního povolení, základové desky až po kolaudaci. V uvedené ceně můžete počítat s finálními povrchovými úpravami exteriéru i interiéru, a to včetně elektroinstalací, sanitárního vybavení s bateriemi, interiérovými dveřmi včetně obložek, vytápění je řešeno teplovodním podlahovým topením v kombinaci tepelného čerpadla se 180L zásobníkem na teplou vodu. Na přání vystavíme komín pro krbové kamna nebo pro využití krbové vložky. Za příplatek vystavíme garáž spojenu s domem. Pro náročnější klienty máme nabídku Premium, nadstandardního vybavení chytré domácnosti, klimatizaci, externí žaluzie a rolety fotovoltaiky a další. Doba výstavby cca 12 měsíců od vydání stavebního povolení a stavbu zahájíme do 10 dnů od jeho vydání. Smlouvy o dílo zašleme na vyžádání včetně vzorového položkového rozpočtu. Tento typový dům Vám rádi ukážeme v rozpracovaném nebo hotovém stavu, kde se seznámíte se skladbou materiálů a můžete si tak projít dispozice domu. Podrobnější informace, včetně změny stavebního materiálu například na dřevostavbu, naleznete na webových stránkách naší firmy Zděné domky na klíč. Máte - li svůj projekt nebo jen nějakou představu, pošlete nám ji a my vám jej naceníme. Pomůžeme i s hledáním vhodného pozemku dle zaslaného zadání. Doporučuji prohlídku tohoto typového domu! Fotografie domu jsou z námi postaveného domu. Ev. číslo: 653435. Energetický štítek: A (30 kWh/m2/rok).
  • Vložení inzerátu:
    2.2.2026
  • Kód:
    4094655
  • Typ nemovitosti:
    Rodinný dům
  • Typ budovy:
    Cihlová
  • Zastavěná plocha:
    84 m2
  • Podlahová plocha:
    84 m2
  • Plocha parcely:
    800 m2
  • Stav objektu:
    Ve výstavbě
  • Energetická náročnost:
    A - Mimoˇrádne úsporná
  • Ukazatel náročnosti:
    30 kWh/m2
  • Nabídky v okolí:
  • Informace o obci:
    Obec Zlín má 75469 obyvatel, z toho 51734 v produktivním věku.
    V obci se nachází pošta.
    V obci se nachází škola, popř. školka.
    V obci se nachází zdravotní zařízení.
    V obci je rozvod kanalizace.
    V obci je rozvod městské vody.
    V obci je rozvod plynu.
Lokalita: Zlín , okres Zlín, Česká republika Zlín , okr. Zlín, Zlínský kraj

Kontakt

Petr Sedlařík


Podobné nabídky v okolí


Volná pracovní místa ExpertPrace.cz
  • Objednání prohlídky a více informací
  •  
  • Poslat na e-mail
  •  

Zasílání odkazu na realitu emailem: