• Sledovat cenu
  •  

Zasílání upozornění emailem:

Rodinný dům, 84 m2 - Svobodova, Karlovy Vary (již není v nabídce)

Cena: 6 120 000 Kč
Stav:archiv
84 m2, montovaná, parcela 492 m2
Popis: Nabízíme k prodeji patrový rodinný dům se zahradou v Karlových Varech - Staré Roli.
Dům má dispozici 4+1, 103 m² užitné plochy + technické podlaží (sklep), je postavený v roce 197...2. U domu je zahrada o rozloze 492 m². Dům i zahrada jsou dobře udržovány a prošly částečnou modernizací. Do domu jsou přivedeny přípojky el. instalace 230/380 V, telefonní (datová) linka, městská kanalizace a voda. Na střeše je osazen stožár STA. Přípojka plynu je zakončena v pomníku na hraně parcely. Technické podlaží (sklep) je zasazeno 70 cm pod povrch parcely a se nachází pod celou plochu domu, je postaveno z cihel. 1 NP nadzemní je vybudováno z dřevotřísko - betonových desek. Tato část domu je zateplená 12 centimetrovým polystyrenem. 2NP (druhé nadzemní patro) (podkroví) je z dřevotřískových desek. Sedlová střecha je provedena z lepených trámů a střešní krytina z eternitových desek.
Dům je nově omítnout. Okna, mimo technického podlaží, jsou plastová. Ohřev vody zajišťuje nový elektrický bojler. Dům je vytápěn tepelným čerpadlem Viessman Vitocal 200 D, které bylo instalováno v roce 2021, a úspora činí 30 % elektrické energie. Radiátory jsou plechové a litinové. Nově je proveden rozvod vody a instalace sociální zařízení WC. V domě jsou dva původní zděné komíny.
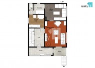
Technické podlaží je, mimo garáže, nově vymalované. Podlaha je natřena zátěžovou barvou. Nachází se zde garáž s elektrickými vraty a zatepleným stropem, chodba, spíž (přípojka vody a kanalizace), prádelna, sušárna a kotelna. Technické podlaží je spojeno s 1NP (první nadzemní patro) vnitřním schodištěm. Do prvního patra domu vede venkovní schodiště, na které navazuje terasa a prostorná veranda, ta je obložena dřevěnými palubkami. Z verandy se vstupuje do haly domu. Z ní vedou schody do sklepa a dřevěné schodiště do podkroví. Z haly se také vstupuje do obývacího pokoje a kuchyně. Obývací pokoj o výměře 17 m² s okny na jih a na západ nabízí moc hezký výhled do zahrady. Kuchyň, 7 m², je vybavena kuchyňskou linkou, myčkou a elektrickým sporákem. Z kuchyně se vstupuje do koupelny s vanou a umyvadlem, z ní pak na sociální zařízení WC. Dále je zde ložnice, 12 m², s oknem na jih. V podkroví se nachází dva pokoje. Jeden má 16 m² a okno orientované na východ, druhý pak 17 m² a francouzským oknem se vstupuje na terasu. Z pokojů je vstup do podkrovních půdiček, z chodby před pokoji pak na pochozí půdu v šířce 3, 2 m v délce domu. K dispozici je částečná projektová dokumentace domu, nová revizní zpráva elektro a hromosvodu, dále pak kontakty na dodavatele zateplení, plastových oken, instalatéra a dodavatele tepelného čerpadla včetně servisu.
Zahrada o výměře 429 m² byla nově upravena. Je se zde skleník, ovocné stromy, okrasné keře a květiny. Dřevěný plot má zděnou podezdívku i sloupky.
Ve Staré Roli se nachází veškerá občanská vybavenost - základní a mateřská škola, nákupní centrum, zdravotní středisko, nedaleko od domu je pak knihovna a zastávka městské Ev. číslo: 26355. Energetický štítek: D
  • Vložení inzerátu:
    5.4.2024
  • Kód:
    3776803
  • Typ nemovitosti:
    Rodinný dům
  • Typ budovy:
    Montovaná
  • Zastavěná plocha:
    84 m2
  • Podlahová plocha:
    84 m2
  • Plocha parcely:
    492 m2
  • Terasa:
    Ano
  • Sklep:
    Ano
  • Stav objektu:
    Velmi dobrý
  • Energetická náročnost:
    D - Méne úsporná
  • Nabídky v okolí:
  • Informace o obci:
    Obec Karlovy Vary má 51115 obyvatel, z toho 35848 v produktivním věku.
    V obci se nachází pošta.
    V obci se nachází škola, popř. školka.
    V obci se nachází zdravotní zařízení.
    V obci je rozvod kanalizace.
    V obci je rozvod městské vody.
    V obci je rozvod plynu.

Podobné nabídky v okolí

Lokalita: Svobodova , Karlovy Vary, okres Karlovy Vary, Česká republika Svobodova, Karlovy Vary