• Sledovat cenu
  •  

Zasílání upozornění emailem:

Rodinný dům, 66 m2 - Dobřenice , okr. Hradec Králové

Cena: 2 750 000 Kč
Stav:Volný
66 m2, parcela 947 m2
Popis: Rezervováno. Dobrý den, máte rádi výzvy a hledáte chalupu, kde se , , zastavil čas and #34; nebo jen cenově dostupnou nemovitost v klidném místě, ale s dobrým dopravním napojením? Možná hledáte jen pozemek k výstavbě menš...ího domu, například modulárního, mobilního domu, Tiny house apod. a potřebujete vhodné místo, ale prázdné nezastavěné pozemky bez vzrostlé zeleně Vás neoslovují?

Možná právě Vás by mohla oslovit naše nová nabídka. Jedná se o prodej, dle evidence, rodinného domu, ale spoustu let slouží jako chalupa. Umístěný je v klidném místě na okraji obce Dobřenice v sousedství lesa. Celková výměra pozemku činí 947 m2 a je částečně svažitý. Jeho svažitost je právě jeho přednost, protože při umístění mobilního domu na tomto pozemku ve svahu dochází k výhledu přes střechy do dáli, a to na dobřenický zámek.

Dobřenice jsou výborně dopravně dostupné, protože je zde sjezd z dálnice D11 a do Hradce Králové máte dojezd 20 minut, do Pardubic o pár minut více. Z Prahy hodinu a z Kolína půl hodiny. Takže za tyto skvělé časy se můžete přesunout do Dobřenic, na místo, které je obklopené zelení, místním klidem, ale i historií nejen nedalekého zámku.

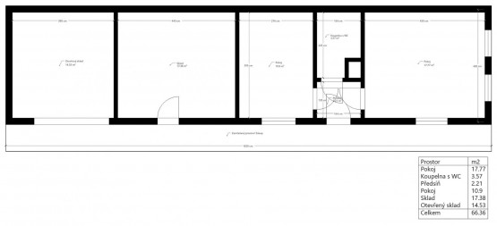
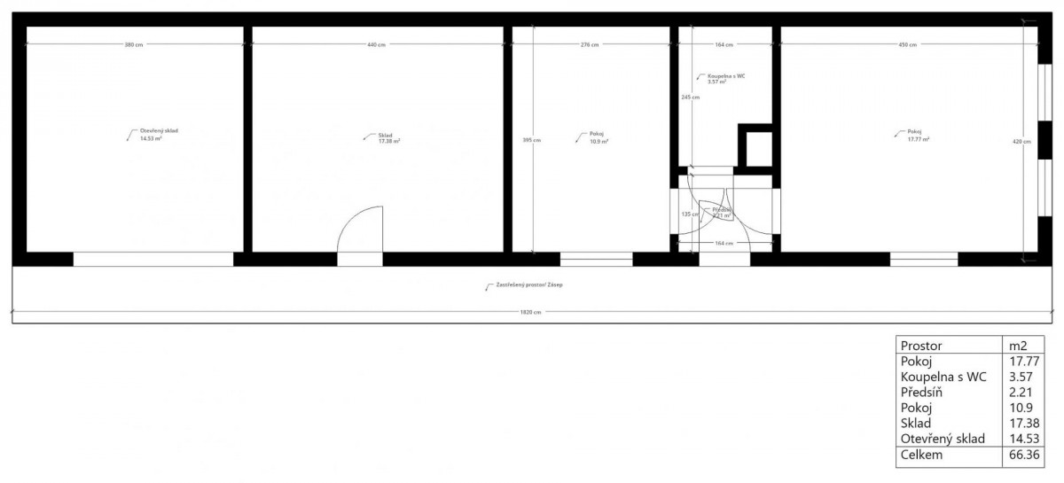
Interiér předmětného rodinného domu je ve stavu, který je vhodný pro nadšence a zájemce, kteří mají rádi výzvy. Dům obsahuje dvě obytné místnosti, koupelnu s sociální zařízení WC a dva skládky. Pro ostatní zájemce se dá stav hodnotit jako k celkové rekonstrukci/ demolici s přiblížením se k dnešním představám. Ze dvou třetin má novou střešní krytinu.

Objekt je připojen k inženýrským sítím - elektřina, vodovod, kanalizace.

5 důvodů proč uvažovat o koupi:
1. Klidné místo v sousedství lesa.
2. Výborná dopravní dostupnost do velkých měst.
3. Potenciál k výstavbě malého domku s využitím zavedených sítí.
4. V místě dobrá občanská vybavenost.
5. Dobrý poměr cena/ výkon.


Děkuji za pozornost a budu se těšit na komunikaci s Vámi. Václav Růžička, realitní specialista.

Prodávající si vyhrazuje právo na výběr kupujícího dle vlastní úvahy (způsob úhrady kupní ceny, serióznost jednání apod. ).
  • Vložení inzerátu:
    30.9.2025
  • Kód:
    XA-463
  • Typ nemovitosti:
    Rodinný dům
  • Zastavěná plocha:
    86 m2
  • Podlahová plocha:
    66 m2
  • Plocha parcely:
    947 m2
  • Stav objektu:
    Před rekonstrukcí
  • Voda:
    dálkový vodovod
  • Elektřina:
    380 V
  • Odpad:
    kanalizace
  • Bezbariérový přístup:
    Ano
  • Energetická náročnost:
    G - Mimořádne nehospodárná
  • Nabídky v okolí:
  • Informace o obci:
    Obec Dobřenice má 606 obyvatel, z toho 431 v produktivním věku.
    V obci se nachází pošta.
    V obci se nachází zdravotní zařízení.
    V obci je rozvod kanalizace.
    V obci je rozvod městské vody.
    V obci je rozvod plynu.
Lokalita: Dobřenice , okres Hradec Králové, Česká republika Dobřenice , okr. Hradec Králové, Královéhradecký kraj

Kontakt




Volná pracovní místa ExpertPrace.cz
  • Objednání prohlídky a více informací
  •  
  • Poslat na e-mail
  •  

Zasílání odkazu na realitu emailem: