• Sledovat cenu
  •  

Zasílání upozornění emailem:

Rodinný dům, 650 m2 - Lidická, Kunovice, okr. Uherské Hradiště

Cena: 7 000 000 Kč
Stav:Volný
650 m2, cihlová, parcela 564 m2
Popis: Kunovice Lidická | Velkorysý dům k přestavbě na luxusní rodinné sídlo (pozemek 564 m and sup2;)

Jsou domy, které si nekupujete kvůli tomu, jak vypadají dnes, ale kvůli tomu, čím se mohou stát. Objekt č. p. 556 na ul. ... Lidická v Kunovicích nabízí mimořádně velkorysý základ pro vznik reprezentativního rodinného domu s prostorem pro velké obytné zóny, soukromé wellness, pracovnu, hostinské pokoje i zázemí, které u běžných domů jednoduše nenajdete.

Dům stojí v zastavěném území v liniové zástavbě rodinných domů, na rovinatém pozemku parc. č. 891 o výměře 564 m and sup2;. Zastavěná plocha domu je 333 m and sup2;, což dává skvělý půdorysný luxus pro velkorysé dispoziční řešení. Lokalita je praktická a výborně dostupná ideální pro ty, kdo chtějí mít vše po ruce a zároveň si vytvořit vlastní soukromý svět za zdmi domu.

Proč je to výjimečná nabídka pro náročné:
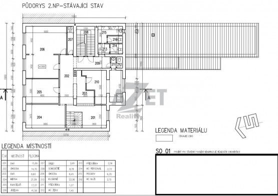
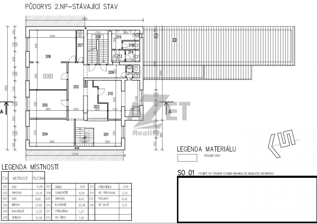
Velký dům s potenciálem luxusní přestavby aktuální užitná plocha domu je cca 650 m and sup2;, dvoupodlažní, částečně podsklepený, se sedlovou střechou
Pozemek 564 m and sup2; (parc. č. 891) v zavedené rezidenční lokalitě
Rovinatý terén a tvar pozemku vhodný pro citlivé řešení dvora/zahrady
Mimo záplavové území, bez poddolovaného území
Přímé dopravní napojení stávající sjezd šířky 3, 8 m
Inženýrské sítě již přivedeny: vodovod, kanalizace, plyn a NN (vzdušná přípojka)
Charakter stavby v souladu s okolní zástavbou plánované úpravy a přístavba/nástavba respektují charakter území

Technický stav (stručně a férově):
Dům je určen k modernizaci odpovídající jeho stáří. Konstrukčně je postaven z plných pálených cihel na vápennocementovou maltu, má dřevěné trámové stropy, železobetonové schodiště, dřevěný krov a krytinu z keramických tašek. Okna jsou dřevěná s dvojsklem. Vytápění je nyní řešeno plynovým kotlem a radiátory.

Výhoda pro budoucího majitele: Můžete dům přetvořit do moderního standardu bez kompromisů přesně podle vlastního stylu a nároků.

Územní plán a využití:
Nemovitost je dle územního plánu v ploše BI bydlení individuální. Bytové domy v této lokalitě územní plán nepovoluje. Právě proto je nabídka ideální pro klienta, který chce vytvořit velkorysé rodinné bydlení.

Bonus pro investory (volitelná alternativa):
Pokud byste se rozhodli využít nemovitost investičně, je k dispozici připravený investiční projekt výstavby penzionu s platným stavebním povolením a hotovou projektovou dokumentací (stavební úpravy, přístavba a nástavba stávajícího objektu).

Závěr:
Hledáte - li místo, kde nevznikne jen další dům, ale osobní sídlo s charakterem a prostorem, č. p. 556 na Lidické v Kunovicích je výjimečný základ, rozsáhlá zastavěná plocha, zavedené okolí, sítě na pozemku a jasně dané rezidenční využití.

Pro více informací, podklady a domluvení prohlídky mne kontaktujte.

  • Vložení inzerátu:
    3.4.2026
  • Kód:
    1734
  • Typ nemovitosti:
    Rodinný dům
  • Typ budovy:
    Cihlová
  • Zastavěná plocha:
    333 m2
  • Podlahová plocha:
    650 m2
  • Plocha parcely:
    564 m2
  • Sklep:
    Ano
  • Stav objektu:
    Před rekonstrukcí
  • Telekomunikace:
    Internet
  • Voda:
    dálkový vodovod
  • Elektřina:
    230 V, 380 V
  • Doprava:
    silnice, dálnice, MHD, autobus, vlak
  • Odpad:
    kanalizace
  • Komunikace:
    asfaltová
  • Bezbariérový přístup:
    Ano
  • Energetická náročnost:
    G - Mimořádne nehospodárná
  • Nabídky v okolí:
  • Informace o obci:
    Obec Kunovice má 86 obyvatel, z toho 49 v produktivním věku.
Lokalita: Lidická , Kunovice, okres Uherské Hradiště, Česká republika Lidická, Kunovice, okr. Uherské Hradiště

Kontakt

Kamil Dolinek



Volná pracovní místa ExpertPrace.cz
  • Objednání prohlídky a více informací
  •  
  • Poslat na e-mail
  •  

Zasílání odkazu na realitu emailem: