• Sledovat cenu
  •  

Zasílání upozornění emailem:

Rodinný dům, 65 m2 - Terezín , okr. Hodonín

Cena: 3 500 000 Kč
Stav:Volný
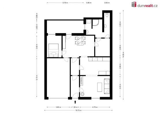
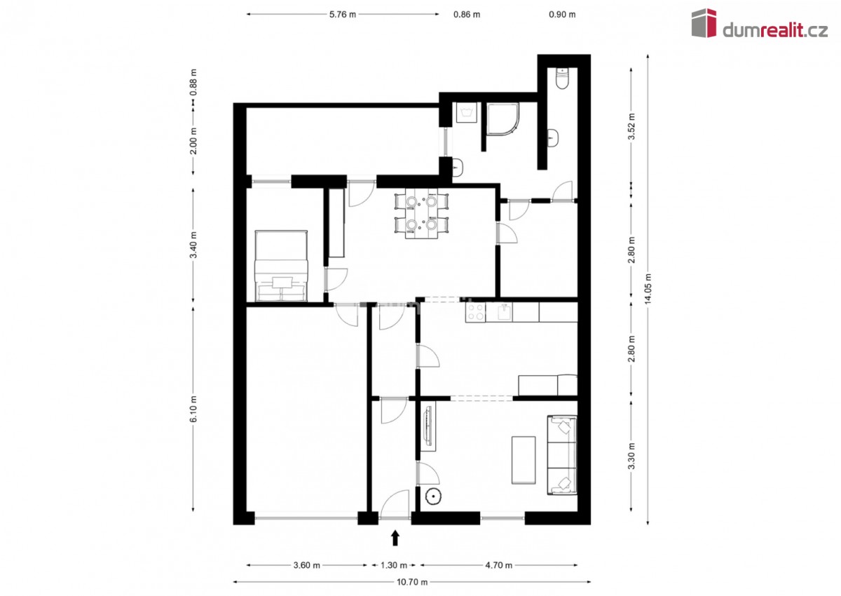
65 m2, cihlová, parcela 1000 m2
Popis: (včetně provize RK). Dumrealit. cz Vám nabízí koupi přízemního řadového domu se vstupní chodbou, obývacím pokojem, kuchyní, ložnicí, verandou, koupelnou se sprchovým koutem a sociální zařízení WC. Součástí domu je i pr...ostorná garáž přístupná z hlavní cesty nebo přímo z verandy domu. Za domem se nachází další stavba, ze které je možné vybudovat obytný prostor a mít tak příležitost nemovitost užívat jako dvougenerační s maximálním zachováním soukromí uživatelů obou staveb. Na dvoře se nachází přístavky, které lze využít jako letní kuchyň, dílnu, nebo skladovací prostor. Na domě fázově probíhala rekonstrukce, která se týkala úpravy prvního domku - kuchyň, koupelna, ložnice, elektřina, podlahy, plastová okna. Všechny IS: elektřina 220/400V, obecní voda, kanalizace, plyn. Zahrada 600 m² přístupná ze dvou stran. Dům se nachází v klidné obci, ve vinařském kraji, a je tak vhodným místem nejen pro rodinné bydlení, ale jako chalupa pro cykloturistiku nebo opakovanou nejen víkendovou rekreaci. Ev. číslo: 652834. Energetický štítek: G
  • Vložení inzerátu:
    19.10.2025
  • Kód:
    3992388
  • Typ nemovitosti:
    Rodinný dům
  • Typ budovy:
    Cihlová
  • Zastavěná plocha:
    100 m2
  • Podlahová plocha:
    65 m2
  • Plocha parcely:
    1000 m2
  • Terasa:
    Ano
  • Stav objektu:
    Dobrý
  • Energetická náročnost:
    G - Mimořádne nehospodárná
  • Nabídky v okolí:
  • Informace o obci:
    Obec Terezín má 3064 obyvatel, z toho 2109 v produktivním věku.
    V obci se nachází pošta.
    V obci se nachází škola, popř. školka.
    V obci se nachází zdravotní zařízení.
    V obci je rozvod kanalizace.
    V obci je rozvod městské vody.
    V obci je rozvod plynu.
Lokalita: Terezín , okres Hodonín, Česká republika Terezín , okr. Hodonín, Jihomoravský kraj

Kontakt

Lenka Julínková


Podobné nabídky v okolí


Volná pracovní místa ExpertPrace.cz
  • Objednání prohlídky a více informací
  •  
  • Poslat na e-mail
  •  

Zasílání odkazu na realitu emailem: