• Sledovat cenu
  •  

Zasílání upozornění emailem:

Rodinný dům, 60 m2 - Radonice , Divišov, okr. Benešov

Cena: 2 290 000 Kč
Stav:Volný
60 m2, cihlová, parcela 496 m2
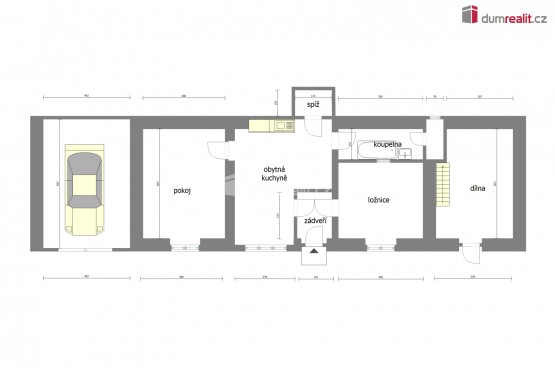
Popis: prodej rodinného domu o dispozici 3+kk, v obci Radonice na Benešovsku. Nemovitost má zastavěnou plochu 331m², bytová jednotka užitnou plochu 60m². Dům je určen k rekonstrukci... a je možné ho využít na bydlení i k rekreaci. Střecha je ve výborném stavu. Půdní prostor s možností vestavby po celé ploše. Voda z nového vrtu, el. přípojka, pro odpad je třeba vybudovat ČOV (osobní vlastnictví). Jedná se o poslední dům ve slepé ulici, přímo u lesa, orientovaný na jižní stranu. Po dohodě z obcí lze užívat přiléhající zalesněný pozemek. Krásné místo se soukromím, 5km od sjezdu exit 41 dálnice D1. Koupi nemovitosti je možné financovat hypotékou. Ev. číslo: 653288. Energetický štítek: G
  • Vložení inzerátu:
    14.12.2025
  • Kód:
    4016044
  • Typ nemovitosti:
    Rodinný dům
  • Typ budovy:
    Cihlová
  • Zastavěná plocha:
    331 m2
  • Podlahová plocha:
    60 m2
  • Plocha parcely:
    496 m2
  • Stav objektu:
    Před rekonstrukcí
  • Energetická náročnost:
    G - Mimořádne nehospodárná
  • Nabídky v okolí:
Lokalita: Radonice , Divišov, okres Benešov, Česká republika Radonice , Divišov, okr. Benešov, Středočeský kraj

Kontakt

Antonín Čvančara


Podobné nabídky v okolí


Volná pracovní místa ExpertPrace.cz
  • Objednání prohlídky a více informací
  •  
  • Poslat na e-mail
  •  

Zasílání odkazu na realitu emailem: