• Sledovat cenu
  •  

Zasílání upozornění emailem:

Rodinný dům, 500 m2 - Kozojídky , okr. Hodonín

Cena: 6 390 000 Kč
Stav:Volný
500 m2, cihlová
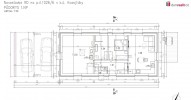
Popis: Cena včetně stavby na klíč, pozemku, odměny zprostředkovatele a DPH. . Dumrealit. cz Vám nabízí prodej výstavby s hotovým projektem na pozemku v obci Kozojídky okr. Hodonín. Na uvedený projekt domu je vydáno stavební po...volení, takže stavbu můžeme zahájit do 14 dnů. Jedná se o zděnou stavbu o zastavěné ploše 100m² o dispozici 3+kk s možností úpravy na 4+kk, kdy užitná plocha je 78, 3 m². Stavba domu je navržena ve tvaru obdélníku o rozměrech 14, 90 x 6, 72 m + dle požadavků zrealizujeme také kryté parkovací stání o rozměru 6, 85 x 6, 72 m a ploše 13, 50 m². K pozemku je zpevněná přístupová komunikace, veřejné osvětlení a inženýrské sítě. Na pozemku je připraven elektrický rozvaděč, který je již zaplacen a je součástí ceny. Pozemek je mírně svažitý na klidném místě obce a jeho délka je 40m a šíře 12, 3m. Dle územního plánu je pozemek veden a schválen pro rodinné bydlení. Přízemní dům je ideální pro 4 člennou rodinu s nízkými provozními náklady. Uvedená cena je za pozemek, kompletní stavbu domu v provedení na klíč, projektové dokumentace, vyřízení stavebního povolení, základové desky až po kolaudaci. V uvedené ceně můžete počítat také s finálními povrchovými úpravami exteriéru i interiéru, a to včetně elektroinstalací, sanitárního vybavení s bateriemi, interiérovými dveřmi včetně obložek a vytápění je řešeno teplovodním podlahovým topením v kombinaci tepelného čerpadla se 180L zásobníkem na teplou vodu. Dle dohody změníme systém vytápění nebo vystavíme komín pro krbové kamna nebo pro využití krbové vložky. Kryté garážové stání spojené s domem nebo venkovní krytou či nekrytou terasu za příplatek. Pro náročnější klienty máme nabídku nadstandardního vybavení chytré domácnosti, klimatizaci, externí žaluzie, rolety, rekuperaci nebo fotovoltaiku. Doba výstavby cca 12 - 13 měsíců, kdy zahájit stavbu můžeme do 14 dnů. Smlouvy o dílo zašleme na vyžádání včetně položkového rozpočtu. V blízkosti je veškerá občanská vybavenost. Financování zajišťujeme a můžete také využití našich služeb, při prodeji Vaší nemovitosti. Doporučuji jednak prohlídku pozemku, tak některý z hotových domů, které máme k dispozici v okolí. Obec Kozojídky je vzdálena od Veselí nad Moravou 7km. V obci je mateřská školka, obchod a potřebné služby pro pohodové bydlení. Doporučuji. Ev. číslo: 653515. Energetický štítek: A (36 kWh/m2/rok).
  • Vložení inzerátu:
    2.2.2026
  • Kód:
    4094651
  • Typ nemovitosti:
    Rodinný dům
  • Typ budovy:
    Cihlová
  • Zastavěná plocha:
    100 m2
  • Podlahová plocha:
    500 m2
  • Plocha parcely:
    500 m2
  • Stav objektu:
    Velmi dobrý
  • Umístění objektu:
    Okraj
  • Energetická náročnost:
    A - Mimoˇrádne úsporná
  • Ukazatel náročnosti:
    36 kWh/m2
  • Nabídky v okolí:
  • Informace o obci:
    Obec Kozojídky má 497 obyvatel, z toho 336 v produktivním věku.
    V obci je rozvod městské vody.
    V obci je rozvod plynu.
Lokalita: Kozojídky , okres Hodonín, Česká republika Kozojídky , okr. Hodonín, Jihomoravský kraj

Kontakt

Petr Sedlařík


Podobné nabídky v okolí


Volná pracovní místa ExpertPrace.cz
  • Objednání prohlídky a více informací
  •  
  • Poslat na e-mail
  •  

Zasílání odkazu na realitu emailem: