• Sledovat cenu
  •  

Zasílání upozornění emailem:

Rodinný dům 5+kk, 195 m2 - Zlín

Cena: 16 250 000 Kč
Stav:Volný
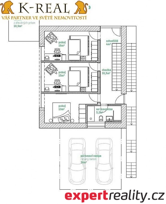
5+kk, 195 m2, cihlová, OV, parcela 402 m2
Popis: Prodej rodinného domu 179 m², pozemek 402 m²
Šípková, Zlín - Příluky

Se svolením majitele vám nabízíme prodej moderního rodinného domu 5+kk s nádherným výhledem a nadstan...dardním vybavením. Nachází se ve Zlíně na ulici Šípková. Dům o užitné ploše 179 m², postavený na pozemku o rozloze 402 m², je vybudován z kvalitního systému Heluz 50 Family, což zajišťuje vynikající tepelnou izolaci a energetickou úspornost v kategorii B. Nadčasový interiér podtrhují pohledové betonové stropy a masivní dřevěná podlaha. Otevřené prostory jsou prosvětleny díky bezrámovým hliníkovým oknům, které maximalizují přirozené světlo a poskytují nádherný výhled na okolní krajinu. Vnitřní prostory doplňují bezfalcové dveře, které zdůrazňují minimalistický design domu.

První podlaží je navrženo jako samostatná bytová jednotka 1+kk, kterou lze přizpůsobit vašim požadavkům. Součástí vybavení je podlahové topení s plynovým zdrojem, které zajišťuje komfortní teplo po celý rok. Elektroinstalace je připravena pro dobíjení elektromobilů a instalaci fotovoltaické elektrárny. Exteriér domu nabízí letní terasu ideální pro odpočinek, příruční sklad a dvě parkovací místa

V ceně domu je dřevěná dubová podlaha, dveře se skrytými zárubněmi, vybavení koupelen, obklady a dlažby, zábradlí, stropní i venkovní světla, zásuvky i vypínače, dřevěná terasa, výmalba, terénní úpravy, kamerový systém a oplocení.

Pokud hledáte ideální bydlení v atraktivní a klidné lokalitě, je tento dům ideální právě pro vás.

Cena: 16 250 000, - Kč bez provize RK

Infrastruktura:

Vodovod: Vodovod, Retenční nádrž na dešťovou vodu

Plyn: Plynovod

Elektřina: 230V, 380V, 3 fáze

Jistič: 25A

Zdroj vytápění: Plynový kondenzační kotel

Vytápěcí těleso: Podlahové vytápění

Kanalizace: Veřejná kanalizace

Telekomunikace: Telefon, Internet

Poskytovatel internetové připojeníu: i2net

Rychlost internetové připojeníu: 1 000 Mbit/s

Typ internetové připojeníového připojení: Vzduchem

Doprava: Vlak, Dálnice, Silnice, MHD, Autobus

Komunikace: Asfaltová

Plocha:

Plocha pozemku 402 m²

Užitná plocha 179 m²

Zastavěná plocha 121 m²

Celková plocha 195 m²

Zahrada o ploše 285 m²

Lokalita:

Klidná část obce, Bydlení

Ostatní:

K nastěhování 15. 3. 2026

Kontakt K - REAL tel. 602 778 256
  • Vložení inzerátu:
    12.1.2026
  • Kód:
    4061889
  • Typ nemovitosti:
    Rodinný dům
  • Typ budovy:
    Cihlová
  • Dispozice:
    5+kk
  • Vlastnictví:
    OV
  • Podlaží:
    2
  • Zastavěná plocha:
    121 m2
  • Podlahová plocha:
    195 m2
  • Plocha parcely:
    402 m2
  • Nabídky v okolí:
  • Informace o obci:
    Obec Zlín má 75469 obyvatel, z toho 51734 v produktivním věku.
    V obci se nachází pošta.
    V obci se nachází škola, popř. školka.
    V obci se nachází zdravotní zařízení.
    V obci je rozvod kanalizace.
    V obci je rozvod městské vody.
    V obci je rozvod plynu.
Lokalita: Zlín, okres Zlín, Česká republika Zlín, Zlínský kraj



Volná pracovní místa ExpertPrace.cz
  • Objednání prohlídky a více informací
  •  
  • Poslat na e-mail
  •  

Zasílání odkazu na realitu emailem: