• Sledovat cenu
  •  

Zasílání upozornění emailem:

Rodinný dům, 470 m2 - Stradonice , okr. Kladno (již není v nabídce)

Cena: 14 490 000 Kč
Stav:archiv
470 m2, parcela 1814 m2
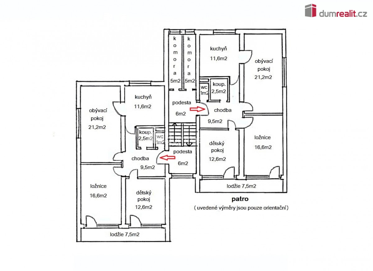
Popis: vč provize a právního servisu. Ve výhradním zastoupení nabízím bytový dům o čtyřech bytových jednotkách s celkovou plochou 470 m² na pozemku 1. 814 m² v obci Stradonice u Slaného, jen 30min po D7 na metro B Zličín – ideální... místo pro velkou rodinu, zázemí firmy a podnikání, nebo developera.

Bytový dům (betonový skelet vyplněný cihlami) byl dokončen v r. 1980 a po úpravách kolaudován v r. 1993. Obsahuje tech. zázemí cca 90 m² v - 1. PP a 4 stejné byty 3+1 o výměře 75 m² + 7, 5 m² lodžie. V domě je dostatek úložných prostor, v - 1. PP jsou sklepy, k praktickému využití prádelna a sušárna a u každého bytu je na chodbě úložná komora. Vytápění zajišťuje automatický kotel na uhlí (EURO 5) + el. kotel napojený na radiátory, pro ohřev teplé vody má každý byt el. bojler. Voda je do domu přivedena přes vodárnu ze studny a odpad do jímky, ale v letošním roce je v obci plánováno připojení na obecní vodovod a kanalizaci, realizace nyní probíhá, základní příprava pro napojení u domu je hotová. Dům je plně funkční, před 8 lety byly udělány nové rozvody topení v mědi, jinak je v původním stavu, který si zaslouží rekonstrukci.

Před domem je velká zpevněná plocha na parkování a 3 garáže, za nimi na druhé příjezdové cestě k domu lze pohodlně parkovat kamión s návěsem. Na hezké zahradě (1. 417 m²) jsou za domem 4 zděné úložné kůlny a dostatek prostoru k zahradničení, zábavě a odpočinku.

Bytový dům se včetně zahrady prodává jako celek, jednotlivé byty nejsou na katastrálním úřadu vymezené (zapsané), proto si je může nový majitel vymezit prohlášením vlastníka dle svého uvážení.

V klidné obci je útulná hospůdka u které se v létě konají akce pro děti a venkovní taneční zábavy, dvě nová dětská hřiště, zastávka autobusu do Slaného, veškerá další občanská vybavenost jako mateřské a základní školy, lékaři, velké obchody a vlaková stanice (do Kralup nad Vltavou a Loun) se nachází v blízké sousední obci Zlonice a Klobouky.

Jednoduchá cesta autem do Prahy po D6, D7 i D8 kolem 30 min na metro, do 10 min dojezd do Slaného.
Dobrá investiční příležitost k podnikání i k vícegeneračnímu bydlení pro velkou rodinu.
S vaší hypotékou pomůžeme – zařídíme. Doporučuji. Ev. číslo: 649762. Energetický štítek: G
  • Vložení inzerátu:
    20.4.2025
  • Kód:
    3975980
  • Typ nemovitosti:
    Rodinný dům
  • Zastavěná plocha:
    254 m2
  • Podlahová plocha:
    470 m2
  • Plocha parcely:
    1814 m2
  • Lodžie:
    Ano
  • Sklep:
    Ano
  • Stav objektu:
    Dobrý
  • Umístění objektu:
    Klidná část
  • Energetická náročnost:
    G - Mimořádne nehospodárná
  • Nabídky v okolí:
  • Informace o obci:
    Obec Stradonice má 114 obyvatel, z toho 75 v produktivním věku.

Podobné nabídky v okolí

Lokalita: Stradonice , okres Kladno, Česká republika Stradonice , okr. Kladno, Středočeský kraj