• Sledovat cenu
  •  

Zasílání upozornění emailem:

Rodinný dům, 465 m2 - Mlýnská, Volary, okr. Prachatice

Cena: 4 390 000 Kč
Stav:Volný
465 m2, parcela 1713 m2
Popis: Cena je včetně provize RK a právního servisu. Více info Vám poskytne makléř Tomáš Pelda. . Dumrealit. cz Vám nabízí prodej stavebního pozemku o celkové výměře 1. 713 m² určeného dle územního plánu ke smíšené zástavbě, se ...stavbou určenou k totální rekonstrukci nebo demolici na moc hezkém místě na okraji města Volary, ul. Mlýnská č. p. 181.

Prodávaný pozemek s objektem se nachází na LV č. 2103 v kú Volary. Na pozemku parc. č. 233/1 o výměře 385 m² se nachází stavba bývalé cihelny.

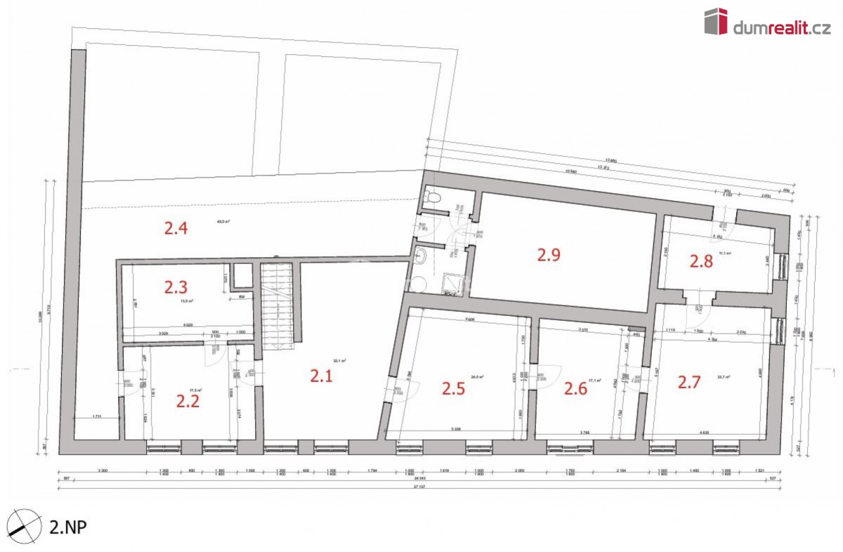
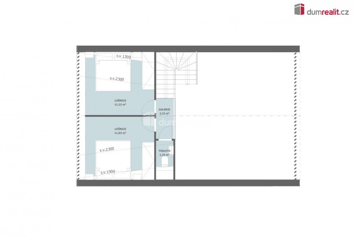
Částečně podsklepený dvoupodlažní objekt ze smíšeného zdiva se skládá se ze dvou stavebních celků rozdílného stavu a stáří. Severní část je zchátralá. Jižní navazující polovina stavby je částečně podsklepená a místy udržovaná s lehkou údržbou. Východní obvodovou zeď lemují přízemní přístavby. Součástí objektu je historická studna. Stávající svislé nosné konstrukce jsou tvořeny zdivem z cihel plných pálených (z místní cihelny), v přízemí objektu je možno předpokládat zdivo smíšené s kameny. Stávající stropy v objektu jsou v přízemí tvořeny zčásti klenbou a zčásti dřevěnými trámy. V nadzemních podlažích jsou stropy dřevěné trámové. V objektu se nachází původní schodiště s kamennými nášlapy. Střechy jsou standardní krovové soustavy sedlové s valbovou dostavbou ze severní části v dobrém stavu - bez zatékání. . Střešní plášť je tvořený keramickou taškovou krytinou a oplechování střechy je provedeno z pozinkovaného plechu. Příčky jsou z cihel plných pálených.

Objekt je připojen na veřejný vodovod a elektřinu. Kanalizace je řešena jímkou.

K dispozici máme rozhodnutí k odstranění stavby včetně pasportu stavby.

Máme vytvořenou studii na nové zastavění plochy, předáme zájemci při prohlídce domu a jeho okolí.

Zajistíme Vám financování a veškerý právní servis.

Více info Vám poskytne realitní makléř Tomáš Pelda z realitní kanceláře A TEMPO fungující pod ochranou známkou dumrealit. cz. Ev. číslo: 655222. Energetický štítek: G
  • Vložení inzerátu:
    31.3.2026
  • Kód:
    4185040
  • Typ nemovitosti:
    Rodinný dům
  • Zastavěná plocha:
    385 m2
  • Podlahová plocha:
    465 m2
  • Plocha parcely:
    1713 m2
  • Sklep:
    Ano
  • Energetická náročnost:
    G - Mimořádne nehospodárná
  • Nabídky v okolí:
  • Informace o obci:
    Obec Volary má 3939 obyvatel, z toho 2852 v produktivním věku.
    V obci se nachází pošta.
    V obci se nachází škola, popř. školka.
    V obci se nachází zdravotní zařízení.
    V obci je rozvod kanalizace.
    V obci je rozvod městské vody.
    V obci je rozvod plynu.
Lokalita: Mlýnská , Volary, okres Prachatice, Česká republika Mlýnská, Volary, okr. Prachatice

Kontakt

Tomáš Pelda


Podobné nabídky v okolí


Volná pracovní místa ExpertPrace.cz
  • Objednání prohlídky a více informací
  •  
  • Poslat na e-mail
  •  

Zasílání odkazu na realitu emailem: