• Sledovat cenu
  •  

Zasílání upozornění emailem:

Rodinný dům, 385 m2 - Slepá I 191, Praha 4, Lhotka, Praha (již není v nabídce)

Cena: 45 000 000 Kč
Stav:archiv
385 m2, cihlová, parcela 507 m2
Popis: Exkluzivně prodej rodinného domu o 3 bytových jednotkách stojící na pozemku 507m2, zastavěná plocha 212m2.

Jedinečný developerský projekt je zárukou kvalitního bydlení s výbornou strategickou polohou ...u budoucího metra D. Stavba bude dokončena na podzim tohoto roku 2022.

Celková plocha domu 327m2 + 57m2 garáž a 80m2 teras a balkónů.

Zahrada téměř 300m2.

Rodinný dům má jedno podzemní podlaží, dvě nadzemní podlaží a
jedno podkrovní podlaží. Jednotlivá podlaží směrem nahoru ustupují pro venkovní terasy k jednotlivým
bytům.

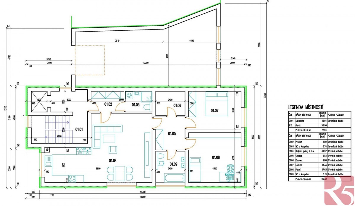
- v 1. pp schodiště, strojovna výtahu, sklep,
- v 1. np schodiště, garáž, technická místnost, 1. bj. - předsíň, sociální zařízení WC a koupelna, obývací pokoj +
k. k. , chodba, komora, ložnice, pokoj, sociální zařízení WC a koupelna,
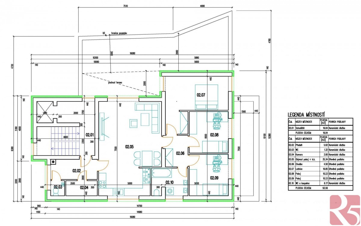
- v. 2. np schodiště, 2. b. j. - předsíň, sociální zařízení WC, komora, obývací pokoj + k. k. , chodba, ložnice, pokoj,
pokoj, sociální zařízení WC a koupelna, terasa,
- podkroví chodba, 3. b. j. - předsíň, sociální zařízení WC, obývací pokoj + k. k. , chodba, sociální zařízení WC a koupelna, ložnice,
pokoj, terasa, terasa.

Pro více informací volejte makléře.
  • Vložení inzerátu:
    5.1.2022
  • Kód:
    R518848
  • Typ nemovitosti:
    Rodinný dům
  • Typ budovy:
    Cihlová
  • Zastavěná plocha:
    212 m2
  • Podlahová plocha:
    385 m2
  • Plocha parcely:
    507 m2
  • Balkón:
    Ano
  • Terasa:
    80 m2
  • Sklep:
    10 m2
  • Stav objektu:
    Novostavba
  • Telekomunikace:
    Internet
  • Voda:
    dálkový vodovod
  • Elektřina:
    230 V, 380 V
  • Doprava:
    silnice, dálnice, MHD, autobus
  • Topeni:
    ústřední plynové
  • Odpad:
    kanalizace
  • Komunikace:
    asfaltová
  • Bezbariérový přístup:
    Ano
  • Energetická náročnost:
    B - Velmi úsporná
  • Nabídky v okolí:

Podobné nabídky v okolí

Lokalita: Slepá I 191, Praha 4, Lhotka, Praha, Česká republika Slepá I 191, Praha 4, Lhotka, Praha