• Sledovat cenu
  •  

Zasílání upozornění emailem:

Rodinný dům, 373 m2 - Praha (již není v nabídce)

Cena: 1 Kč
Stav:archiv
373 m2, cihlová, parcela 600 m2
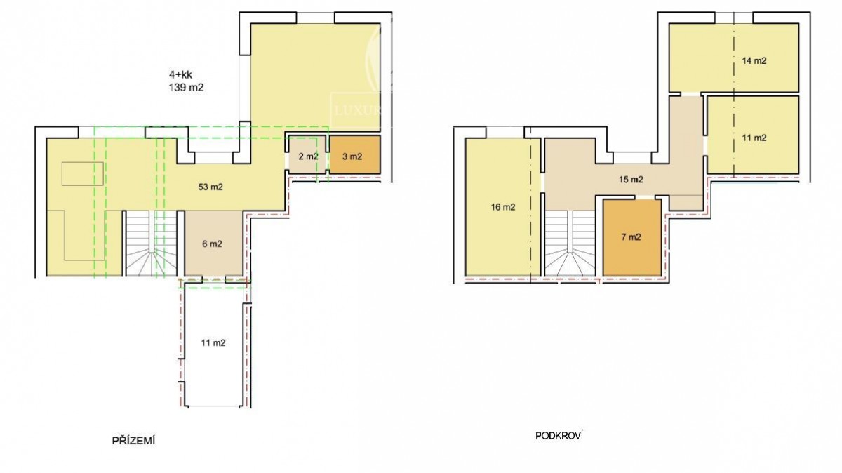
Popis: Ve spolupráci s developerem Vám nabízíme unikátní nemovitost, která propojuje výhody bydlení v rodinném domě a současně v údržbově nenáročné nemovitosti. Toužíte po vlastním domě v okrajové části Prahy, avšak nechcete do ú...držby investovat mnoho svého času a energie a rodinný dům je pro Vás jednoduše moc náročný? Přesně pro Vás je určena naše nabídka.

Nabízíme k prodeji 3 bytové jednotky ve vile LUXURY - nový developerský projekt na moc hezkém místě v Praze 9 - Běchovicích. Jedná se o dvoupodlažní stavbu, ve které bude mít každý byt v dispozici 4+KK vlastní zahradu přes 200m2 (přesná plocha zahrady bude doplněna po zaměření geodetem) Jedná se o skvělou variantu pro rodiny s dětmi, jelikož se nachází v bezpečné a klidné lokalitě s blízkostí škol, parků a dalších atrakcí pro děti. Každý z bytů bude mít prostornou terasu, soukromé parkování pro 2 vozy a zachováno bude naprosté soukromí díky oplocení vlastní zahrady. Právě lokalita a umístění tohoto projektu je obrovskou přidanou hodnotou této nabídky, neboť najdete jen málo podobně moc hezkých, útulných a bezpečných míst v této lokalitě a její staré zástavbě. K dispozici jsou:

Byt č. 1 - 4KK 114m2 s vlastní zahradou přes 200m2, 2 parkovací stání
Byt č. 2 - 4KK 119m2 s vlastní zahradou přes 200m2, 2 parkovací stání
Byt č. 3 - 4KK 140m2 s vlastní zahradou přes 200m2, 2 parkovací stání

Možnost klientských změn v rámci vnitřního vybavení bytu. Kuchyňská linka není součástí. Tento bytový dům bude zhotoven ve vysoké kvalitě a s použitím vysokého standardu. Vytápění bude zajištěno tepelným čerpadlem (vz - vo) a elektrická energie řešena pomocí fotovoltaiky. Jedná se tedy mimo jiné o energeticky soběstačnou stavbu, jejíchž nízké provozní náklady jistě v budoucnu oceníte. Voda z řádu, popřípadě vlastní studna na závlahu zahrad. Kanalizace v řádu.
Předpokládaná kolaudace a předání 4Q2023 - 1Q2024

Pozemek, na kterém tato stavba bude zhotovena, se nachází v klidné a málo frekventované ulici v Praze 9 - Běchovicích. tato lokalita je vyhledávána především pro její klid, mnoho zeleně a sportovišť, plnou občanskou vybavenost, velice rychlé spojení s centrem Prahy, ale také díky rychlému napojení na hlavní silniční tahy.

Více info získáte u makléře. Financování hypotéčním úvěrem Vám rádi zajistíme u Vámi preferované banky za nejlepších podmínek na trhu.
Těšíme se na Vás - LUXURY REAL ESTATE CZ
  • Vložení inzerátu:
    15.5.2023
  • Kód:
    0024
  • Typ nemovitosti:
    Rodinný dům
  • Typ budovy:
    Cihlová
  • Zastavěná plocha:
    245 m2
  • Podlahová plocha:
    373 m2
  • Plocha parcely:
    600 m2
  • Terasa:
    80 m2
  • Stav objektu:
    Novostavba
  • Umístění objektu:
    Klidná část
  • Plyn:
    plynovod
  • Odpad:
    kanalizace
  • Energetická náročnost:
    B - Velmi úsporná
  • Nabídky v okolí:
  • Informace o obci:
    Obec Praha má 1257158 obyvatel, z toho 889974 v produktivním věku.
    V obci se nachází pošta.
    V obci se nachází škola, popř. školka.
    V obci se nachází zdravotní zařízení.
    V obci je rozvod kanalizace.
    V obci je rozvod městské vody.
    V obci je rozvod plynu.

Podobné nabídky v okolí

Lokalita: Praha, Česká republika Praha