• Sledovat cenu
  •  

Zasílání upozornění emailem:

Rodinný dům, 370 m2 - Horní Loučky , okr. Brno-venkov

Cena: 10 990 000 Kč
Stav:Volný
370 m2, cihlová, parcela 981 m2
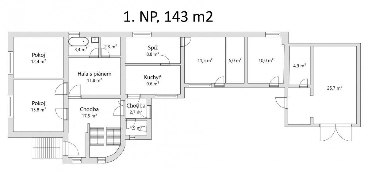
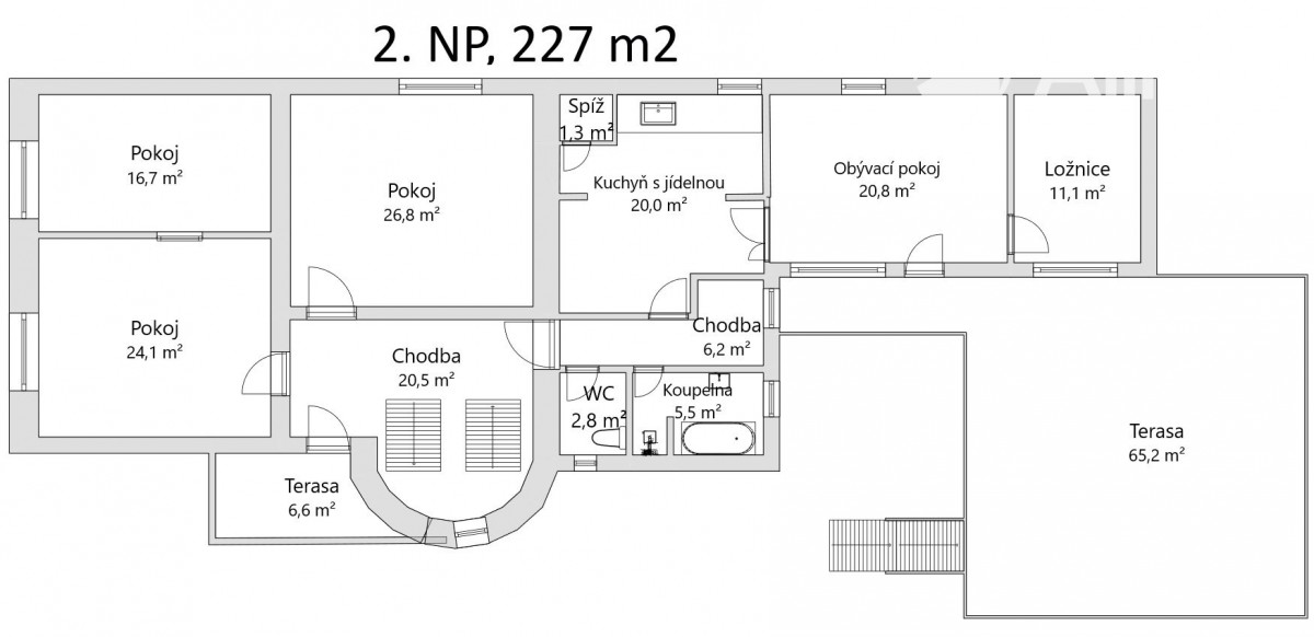
Popis: Hledáte klidné bydlení v přírodě s dostatkem prostoru a soukromí? Tento rodinný dům z roku 1991 se nachází na vyvýšeném místě v malebné obci Horní Loučky – na konci zástavby, směrem k lesu. Kousek od domu se nachází rybník,... který spolu s okolní zelení vytváří příjemné prostředí pro odpočinek i volnočasové aktivity.

Dům je dvougenerační s dvěma samostatnými bytovými jednotkami, každá s vlastním vchodem:
Horní byt (5+1) – po rekonstrukci, nabízí moderní a útulné bydlení, kachlová kamna a prostornou terasu s moc hezkým výhledem do okolní krajiny.
Spodní byt (3+1) – určený k modernizaci dle vašich představ.

Vytápění plynovým kotlem, ohřev vody elektrickým bojlerem. K dispozici tři garáže s dostatkem místa nejen pro auta, ale i pro uskladnění věcí. Rovinatý pozemek před domem je ideální pro relaxační zónu, zahradu nebo dětské hřiště.

Tato nemovitost je skvělou volbou pro rodiny, které hledají klidné bydlení v přírodě, ale také jako výhodná investice s možností pronájmu jedné z bytových jednotek.

Zavolejte si o prohlídku a přijďte se přesvědčit o jejím jedinečném kouzlu! Pokud jste si nevybrali z uveřejněné nabídky, zadejte nám prosím Vaši poptávku a my se pokusíme najít odpovídající nemovitost.
  • Vložení inzerátu:
    9.9.2025
  • Kód:
    HO210067
  • K dispozici od:
    0.0.0
  • Typ nemovitosti:
    Rodinný dům
  • Typ budovy:
    Cihlová
  • Podlahová plocha:
    370 m2
  • Plocha parcely:
    981 m2
  • Stav objektu:
    Velmi dobrý
  • Energetická náročnost:
    G - Mimořádne nehospodárná
  • Nabídky v okolí:
  • Informace o obci:
    Obec Horní Loučky má 300 obyvatel, z toho 206 v produktivním věku.
    V obci je rozvod kanalizace.
    V obci je rozvod městské vody.
    V obci je rozvod plynu.
Lokalita: Horní Loučky , okres Brno-venkov, Česká republika Horní Loučky , okr. Brno-venkov, Jihomoravský kraj


Podobné nabídky v okolí


Volná pracovní místa ExpertPrace.cz
  • Objednání prohlídky a více informací
  •  
  • Poslat na e-mail
  •  

Zasílání odkazu na realitu emailem: