• Sledovat cenu
  •  

Zasílání upozornění emailem:

Rodinný dům, 360 m2 - Útvina , okr. Karlovy Vary

Cena: 2 790 000 Kč
Stav:Volný
360 m2, parcela 662 m2
Popis: Nabízíme k prodeji rodinný dům situovaný v malebné obci Útvina, která se nachází v atraktivní lokalitě Karlovarského kraje. Tato nemovitost je ideální volbou pro ty, kteří hledají klidné bydlení v dosahu moc hezké přírody,... a zároveň mohou využít výhodné polohy nedaleko Karlových Varů či Mariánských Lázní.

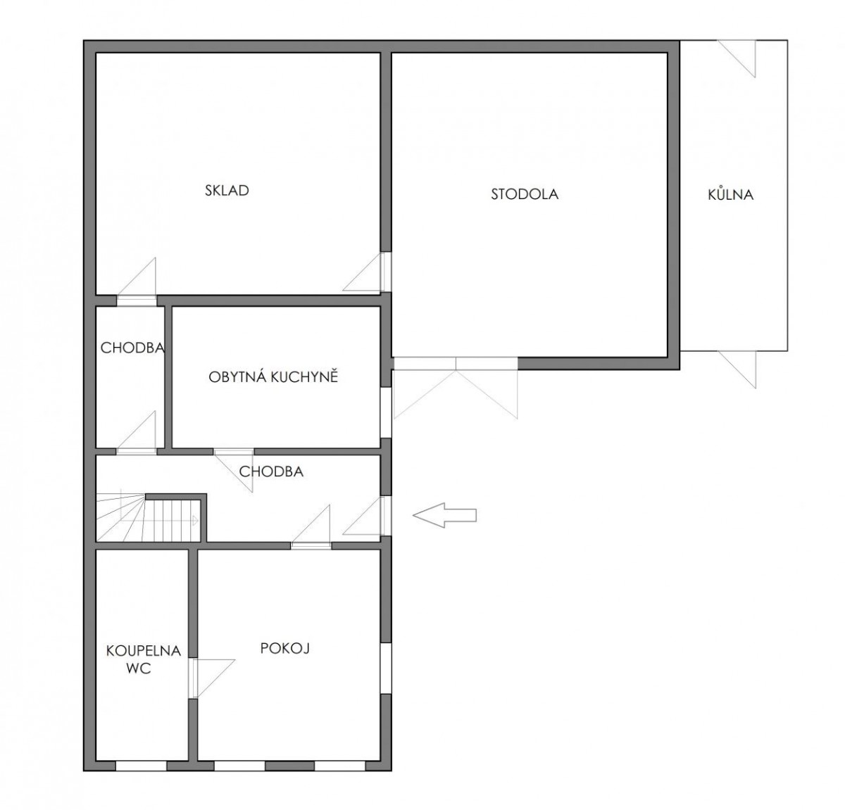
Celková plocha pozemku činí 662 m2, skutečná zastavěná plocha domu samotného, včetně zděné stodoly a kůlny, činí cca 220 m2, dvůr o velikosti cca 118 m2 je ideální pro venkovní posezení, či bezpečné hraní Vašich dětí a zahrada za domem o rozloze 324 m2, které vévodí více než stoletá lípa, poskytuje nádherný výhled, soukromí i dostatek prostoru pro odpočinek a zahradničení.

Současná dispozice obytné části domu je 3+kk a jednou z největších předností je možnost rozšíření obytné plochy o kompletní podkroví. Touto úpravou vznikne dost pokojů pro velkou rodinu. Místo, i samotný dům, jsou charakteristické neopakovatelnou atmosférou a nabízí mimořádný potenciál spojení původního kouzla venkovského bydlení s moderní přestavbou podle nejnovějších trendů. Tento dům má duši, kde si nový majitel může vytvořit útulný domov, který může propojit i s podnikáním, přesně podle vlastních představ. Dostatek místa například pro autodílnu, lehkou výrobu, kovárnu, truhlárnu atd. Nad obytnou částí objektu je od loňska nová střešní krytina.

Údaje dle katastru nemovitostí, zastavěná plocha a nádvoří činí 338 m2, zahrada 324 m2. Dům je napojen na elektřinu, plyn, obecní kanalizaci i vodovod, stejně tak je k dispozici vlastní studna.

Kontaktujte nás ještě dnes a rádi Vám poskytneme více informací či domluvíme prohlídku. Těšíme se na Vás a věříme, že si toto místo zamilujete.

PENB zatím nebyl vyhotoven, proto dle zákona uvádíme kategorii G.


  • Vložení inzerátu:
    6.8.2025
  • Kód:
    AR 132
  • Typ nemovitosti:
    Rodinný dům
  • Zastavěná plocha:
    338 m2
  • Podlahová plocha:
    360 m2
  • Plocha parcely:
    662 m2
  • Stav objektu:
    Dobrý
  • Voda:
    dálkový vodovod
  • Elektřina:
    230 V, 380 V
  • Doprava:
    silnice, autobus
  • Topeni:
    lokální plynové
  • Plyn:
    plynovod
  • Odpad:
    kanalizace
  • Komunikace:
    asfaltová
  • Bezbariérový přístup:
    Ano
  • Energetická náročnost:
    G - Mimořádne nehospodárná
  • Nabídky v okolí:
  • Informace o obci:
    Obec Útvina má 591 obyvatel, z toho 432 v produktivním věku.
    V obci se nachází pošta.
    V obci je rozvod kanalizace.
    V obci je rozvod městské vody.
    V obci je rozvod plynu.
Lokalita: Útvina , okres Karlovy Vary, Česká republika Útvina , okr. Karlovy Vary, Karlovarský kraj



Volná pracovní místa ExpertPrace.cz
  • Objednání prohlídky a více informací
  •  
  • Poslat na e-mail
  •  

Zasílání odkazu na realitu emailem: