• Sledovat cenu
  •  

Zasílání upozornění emailem:

Rodinný dům, 350 m2 - Za Humny, Kyjov, okr. Hodonín

Cena: 9 800 000 Kč
Stav:Volný
350 m2, cihlová, parcela 572 m2
Popis: Hledáte vícegenerační bydlení, nebo ideální kombinaci vlastního domova a investiční příležitosti?
Nabízíme vám ke koupi prostorný rodinný dům s velice praktickým dispozičním řešením, dvěma samostatnými bytovými jednotkami,... zahradou s vyhřívaným bazénem, samostatným výminkem 1+kk a garáží.
Dům je situován v klidné a příjemné lokalitě s dobrou občanskou dostupností služeb a nabízí dostatek prostoru pro pohodlné bydlení i relaxaci.

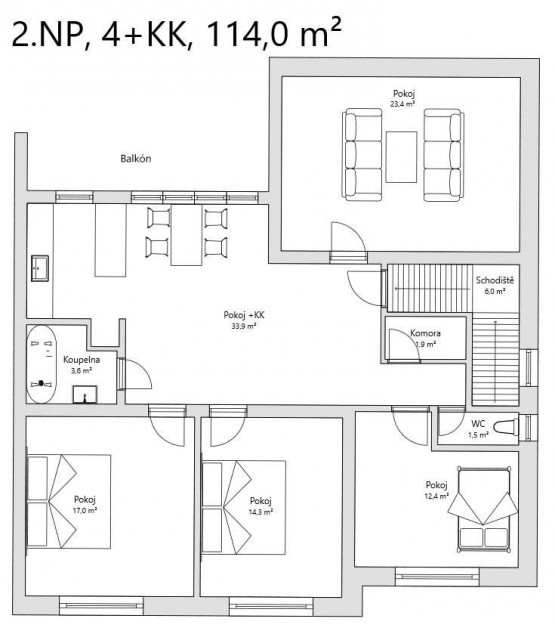
Horní patro tvoří prostorný byt o dispozici 5kk, který nabízí velkorysé obytné prostory, světlý obývací pokoj s kuchyňským koutem, ložnice a další pokoje vhodné jako dětské pokoje, či pracovna. Vrchní byt má další samostatný vstup přímo ze dvora.

Přízemí disponuje samostatnou bytovou jednotkou 3kk, která má velice praktické uspořádání , kde je kuchyně propojená s obývacím pokojem ze kterého vstoupíme na zastřešenou terasu a zahradu, dále zde najdeme ložnici, která disponuje vlastní šatnou, dětský pokoj, koupelnu a sociální zařízení WC. V zimních měsících jistě oceníte krb, který je umístěný v obývacím pokoji.

Na dvoře se nachází samostatně stojící výminek 1kk s vlastní koupelnou - vhodný pro hosty, případně pro krátkodobé i dlouhodobé pronájmy.

Celý dům je podsklepený - sklepní prostory nabízí dostatek místa pro uskladnění věcí, technické zázemí. Najdeme zde i přípravu na saunu.
Garáž přímo u domu poskytuje pohodlné parkování.
Zahrada je upravená, s okrasnou i užitkovou částí a dominuje jí vyhřívaný bazén, který vám zajistí pohodlí a zábavu pro celé léto.
  • Vložení inzerátu:
    6.10.2025
  • Kód:
    HO210088
  • K dispozici od:
    0.0.0
  • Typ nemovitosti:
    Rodinný dům
  • Typ budovy:
    Cihlová
  • Podlahová plocha:
    350 m2
  • Plocha parcely:
    572 m2
  • Stav objektu:
    Po rekonstrukci
  • Energetická náročnost:
    G - Mimořádne nehospodárná
  • Nabídky v okolí:
  • Informace o obci:
    Obec Kyjov má 140 obyvatel, z toho 94 v produktivním věku.
    V obci je rozvod plynu.
Lokalita: Za Humny , Kyjov, okres Hodonín, Česká republika Za Humny, Kyjov, okr. Hodonín



  • Objednání prohlídky a více informací
  •  
  • Poslat na e-mail
  •  

Zasílání odkazu na realitu emailem: