• Sledovat cenu
  •  

Zasílání upozornění emailem:

Rodinný dům, 330 m2 - Plzeňská 498, Žebrák, okr. Beroun

Cena: 16 900 000 Kč
Stav:Volný
330 m2, cihlová, parcela 1648 m2
Popis: Hledáte dům, který umí šetřit peníze, energii i nervy, a přitom nabízí komfort a prostor pro celou rodinu? Zbystřete tohle je Žebrák v nejlepší formě. Plná občanská vybavenost (škola, školka, lékař, lékárna, supermar...ket, kulturní klub, množství akci pro děti i dospělé), výborná dopravní dostupnost jak autobusem, tak autem a to do Prahy i Plzně.
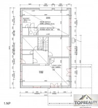
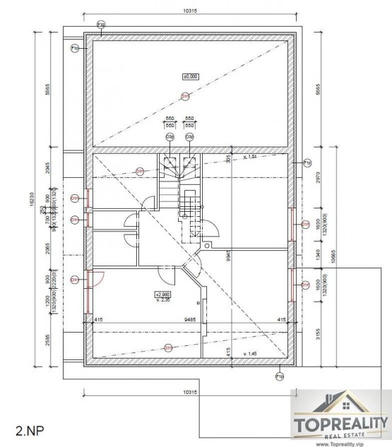
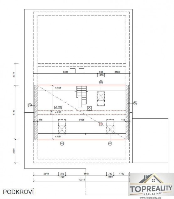
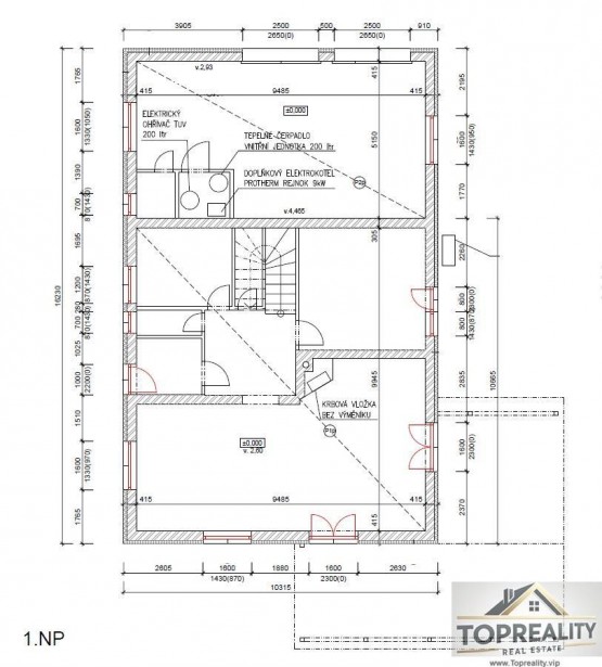
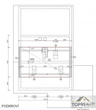
K prodeji je moderní nízkoenergetický rodinný dům o dispozici 5+1 s bonusem v podobě podkrovní herny. Tu lze snadno a levně rozdělit na dva další pokoje takže ať máte děti dvě, čtyři nebo chcete pracovnu a šicí ateliér, prostor tu je.
Dvě koupelny se samostatnými sociální zařízení WC vás zbaví každodenního ranního stresu, front v koupelně či na záchodě.
Součástí domu je dvojgaráž s dílnou a částečným patrem, přístřešek pro další dvě auta, zahradní traktůrek i zásobu dřeva, protože sekání trávníku z gauče zatím vědci nevyřešili.
Vytápění zajišťuje podlahovka napojená na tepelné čerpadlo, atmosféru pak krb na romantiku i nouzový ohřev buřtů. Voda teče z vlastní studny a je pitná, takže ani vodárny si na vás nepřijdou.
Na pozemku o rozloze 1 648 m se nachází slaný bazén, zastřešená terasa a okrasné jezírko. Ideální kombinace pro relax, děti, tchýni i kapry.
Díky fotovoltaické elektrárně jsou roční náklady na provoz domu pouhých 30 000 Kč a to včetně nabíjení elektromobilu. Ano, bydlet levně jde, když se ví jak.
Shrnutí bonusů:
nízkoenergetický dům 5+1
podkrovní herna s možností rozdělení na 2 pokoje
dvojgaráž + přístřešek pro 2 auta
vlastní studna s pitnou vodou
podlahové vytápění, tepelné čerpadlo, krb
slaný bazén, zastřešená terasa, okrasné jezírko
pozemek 1 648 m
fotovoltaika, roční provozní náklady jen 30 000 Kč
Pokud chcete komfortní a úsporné bydlení s kusem přírody, garážemi pro váš vozový park a prostorem na sny i koníčky, tenhle dům v Žebráku čeká právě na vás.

  • Vložení inzerátu:
    12.10.2025
  • Kód:
    24
  • Typ nemovitosti:
    Rodinný dům
  • Typ budovy:
    Cihlová
  • Zastavěná plocha:
    161 m2
  • Podlahová plocha:
    330 m2
  • Plocha parcely:
    1648 m2
  • Terasa:
    Ano
  • Bazén:
    Ano
  • Stav objektu:
    Novostavba
  • Elektřina:
    230 V, 380 V
  • Doprava:
    dálnice, silnice, autobus
  • Odpad:
    kanalizace
  • Komunikace:
    asfaltová
  • Bezbariérový přístup:
    Ano
  • Energetická náročnost:
    A - Mimoˇrádne úsporná
  • Nabídky v okolí:
  • Informace o obci:
    Obec Žebrák má 2117 obyvatel, z toho 1469 v produktivním věku.
    V obci se nachází pošta.
    V obci se nachází škola, popř. školka.
    V obci se nachází zdravotní zařízení.
    V obci je rozvod kanalizace.
    V obci je rozvod městské vody.
    V obci je rozvod plynu.
Lokalita: Plzeňská 498, Žebrák, okres Beroun, Česká republika Plzeňská 498, Žebrák, okr. Beroun

Kontakt

Objednání prohlídky a více informací



  • Objednání prohlídky a více informací
  •  
  • Poslat na e-mail
  •  

Zasílání odkazu na realitu emailem: