• Sledovat cenu
  •  

Zasílání upozornění emailem:

Rodinný dům, 322 m2 - Zelená 1, Rumburk, okr. Děčín (již není v nabídce)

Cena: 0 Kč
Stav:archiv
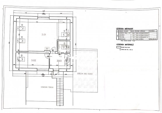
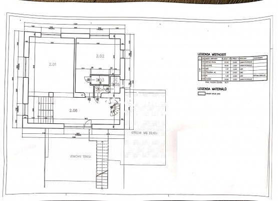
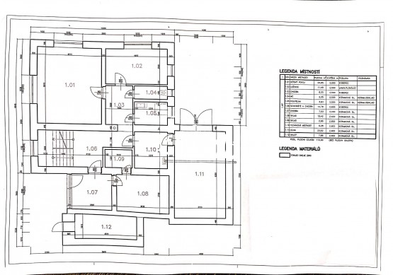
322 m2, cihlová, parcela 937 m2
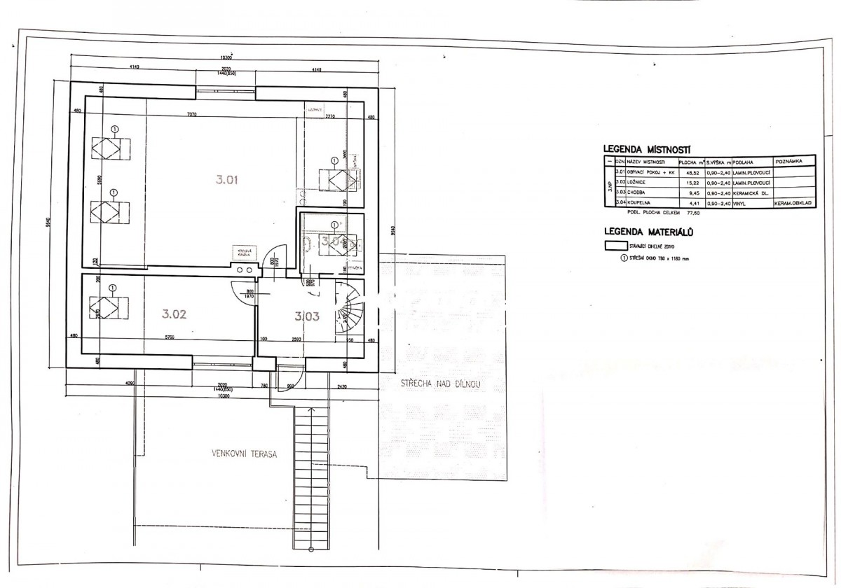
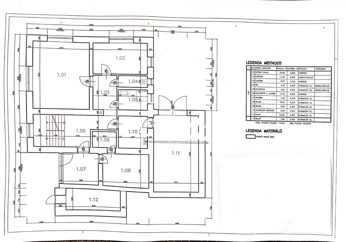
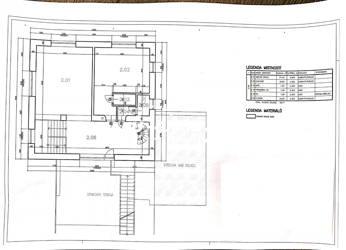
Popis: Nabízíme Vám k prodeji velice hezký dvougenerační RD (rodinný dům) v moc hezké, tiché a velice dostupné lokalitě v obci Rumburk, ulice Zelená. Nemovitost se nachází na pozemku o celkových rozměrech 937 m2, kdy ...zastavěná plocha domu činí 432 m2. V 1. NP (první nadzemní patro) se nachází 2 pokoje, chodba, sociální zařízení WC, sklad, technická místnost, dílna, sklep a garáž. Ve 2. NP (druhé nadzemní patro) je kuchyně, spíž, obývací pokoj, předsíňka s sociální zařízení WC a chodba. Ve 3. NP (třetí nadzemní patro) se nachází kuchyň s obývacím pokojem, ložnice, chodba a koupelna s sociální zařízení WC. Z 2. NP (druhé nadzemní patro) je vstup přímo na terasu pro příjemné posezení i za slunných dní pod pergolou. Stejně tak je vstup na terasu ze 3. NP (třetí nadzemní patro) po schodech. Vytápění a ohřev zajišťuje nový plynový kotel (+ krbová kamna jako bonus ve 3 NP). Voda je obecní, odpad jímka. Na pozemku je dále vlastní studna, která se využívá především k zalévání okrasných dřevin a rostlin na zahradě. Okolí domu je vydlážděno zámkovou dlažbou s parkováním pro auta. Nový majitelé po nastěhování nemusí již vynakládat do domu žádné investice, kromě drobných kosmetických úprav.
V lokalitě se nachází veškerá občanská vybavenost a je zde velice dobré spojení do centra. V dostupnosti naleznete také cyklostezky, les v těsné blízkosti, koupaliště, spousty zeleně a mnoho dalšího.
Nemovitost má velký potenciál. Velmi dobře jde spojit bydlení s podnikatelským záměrem. Nemovitost je možné financovat úvěrem na bydlení, který pro vás rádi a zdarma nabízíme.
Z důvodu, že před zadáním do inzerce nebyl k dispozici platný PENB, je tato nemovitost v souladu s platným zákonem dočasně do jeho předložení zařazena do energetické třídy G. Po jeho obdržení bude údaj změněn.
  • Vložení inzerátu:
    22.5.2022
  • Kód:
    04821
  • K dispozici od:
    0.0.0
  • Typ nemovitosti:
    Rodinný dům
  • Typ budovy:
    Cihlová
  • Zastavěná plocha:
    432 m2
  • Podlahová plocha:
    322 m2
  • Plocha parcely:
    937 m2
  • Terasa:
    Ano
  • Sklep:
    Ano
  • Stav objektu:
    Velmi dobrý
  • Umístění objektu:
    Klidná část
  • Telekomunikace:
    Internet, Satelit
  • Voda:
    dálkový vodovod
  • Elektřina:
    230 V, 380 V
  • Doprava:
    vlak, silnice, autobus
  • Topeni:
    ústřední plynové
  • Plyn:
    plynovod
  • Komunikace:
    asfaltová
  • Energetická náročnost:
    G - Mimořádne nehospodárná
  • Nabídky v okolí:
  • Informace o obci:
    Obec Rumburk má 11496 obyvatel, z toho 8246 v produktivním věku.
    V obci se nachází pošta.
    V obci se nachází škola, popř. školka.
    V obci se nachází zdravotní zařízení.
    V obci je rozvod kanalizace.
    V obci je rozvod městské vody.
    V obci je rozvod plynu.

Podobné nabídky v okolí

Lokalita: Zelená 1, Rumburk, okres Děčín, Česká republika Zelená 1, Rumburk, okr. Děčín