• Sledovat cenu
  •  

Zasílání upozornění emailem:

Rodinný dům, 300 m2 - Nesperská Lhota , Vlašim, okr. Benešov (již není v nabídce)

Cena: 6 250 000 Kč
Stav:archiv
300 m2, cihlová, parcela 1069 m2
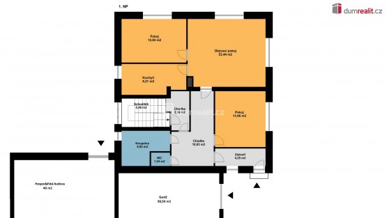
Popis: uvedená cena zahrnuje právní servis a odměnu RK. Dumrealit. cz Vám nabízí prodej rodinného domu v obci Nesperská Lhota u Vlašimi. Jedná se o patrový dům s podsklepením z r. 1984 nacházející se v okrajové části obce na rovi...natém pozemku, o celkové výměře 1. 069 m². Půdorys domu 10, 75 x 10, 20 m, situovaný jako dvougenerační bydlení se samostatnými vchody. Dispozice: v přízemí domu se nachází bytová jednotka 3+1 se samostatnou koupelnou a sociální zařízení WC. V patře domu naleznete bytovou jednotku 4+1 s balkonem, též s vlastním sociálním zázemím. V suterénu se nachází velké množství úložného prostoru – dílna, prádelna, 3 spíže a kotelna s novým kotlem na tuhá paliva zn. VARIANT SL 23D, s akumulačními nádržemi o objemu 500 litrů, který již splňuje platné normy. U domu je garáž 38, 5 m² s přípojkou elektřiny, vrata jsou plechová, výklopná. Za domem se nachází hospodářská budova 40 m², nad kterou je půda, tak jako nad garáží a obě budovy mají novou střešní krytinu. Nemovitost prošla od podzimu 2022 do současnosti výraznou rekonstrukcí – nová plastová okna, zateplení budovy (minerální vata 180mm) a fasáda, nová střecha včetně izolačních a okapových prvků. Odpady jsou svedeny do jímky, zdroje vody jsou dva, původní studna – slouží jako zdroj užitkové vody a nově vybudovaný vrt hluboký 30 m, který je hlavním zdrojem vody pro dům. V kuchyni v přízemí domu jsou kamna na tuhá paliva, která v mírných zimách či v chladnějším jaru a podzimu, vytopí celou jednu bytovou jednotku. Zahrada je rovinatá orientovaná na jižní stranu, majitelé zde vysázeli mnoho ovocných keřů – maliny, borůvky, muchovník, arónie, rakytník. Celý pozemek je oplocený pevným pletivovým plotem s betonovou podezdívkou. V těsné blízkosti domu se nachází autobusová zastávka, fotbalové hřiště. Do místních lesů dojdete za pár minut, příroda Podblanicka vybízí k cyklistice, turistice či houbaření. V obci funguje spolek dobrovolných hasičů a fotbalový klub. Plnou občanskou vybavenost naleznete v nedaleké Vlašimi. Pro více informací volejte na uvedené telefonní číslo. V případě zájmu pomůžeme se zajištěním financování. Ev. číslo: 650735. Energetický štítek: F (214 kWh/m2/rok).
  • Vložení inzerátu:
    8.5.2025
  • Kód:
    3983182
  • Typ nemovitosti:
    Rodinný dům
  • Typ budovy:
    Cihlová
  • Zastavěná plocha:
    110 m2
  • Podlahová plocha:
    300 m2
  • Plocha parcely:
    1069 m2
  • Balkón:
    Ano
  • Sklep:
    Ano
  • Stav objektu:
    Velmi dobrý
  • Umístění objektu:
    Klidná část
  • Energetická náročnost:
    F - Velmi nehospodárná
  • Ukazatel náročnosti:
    214 kWh/m2
  • Nabídky v okolí:

Podobné nabídky v okolí

Lokalita: Nesperská Lhota , Vlašim, okres Benešov, Česká republika Nesperská Lhota , Vlašim, okr. Benešov, Středočeský kraj