• Sledovat cenu
  •  

Zasílání upozornění emailem:

Rodinný dům, 297 m2 - Na Čeperce, Unhošť, okr. Kladno

Cena: 15 600 000 Kč
Stav:Volný
297 m2, cihlová, parcela 901 m2
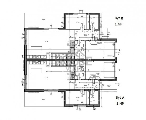
Popis: Nabízíme k prodeji dvoupodlažní RD (rodinný dům) 5+kk, 297 m2, Unhošť. Jedná se o 1/2 dvojdomu.
Pozemek - zahrada, který patří k této části dvojdomu má výměru 900... m2.

Dům má vlastní garáž, která je průchozí do domu. Před garáží je místo pro parkování automobilu zpevněné zámkovou dlažbou.

V přízemí domu je velký otevřený prostor, s velkými okny, umožňujícími vstup do zahrady. Prostor je zamýšlen k využití jako obývací pokoj s kuchyní. V prostoru kuchyně je připravena energetická přípojka pro případný kuchyňský ostrůvek. V místnosti je též připraven vývod pro instalaci krbové vložky. V přízemí je dále samostatný pokoj, koupelna se sprchovým koutem a toaletou, šatna a předsíň.

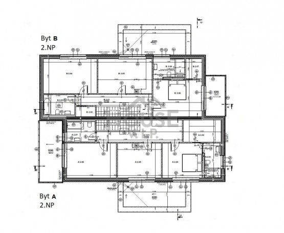
První patro je již členěné. Pokoje poskytují dostatek soukromí a mohou být využity jako ložnice, studovna, dětský pokoj dle libosti. Na patře je rovněž koupelna, sociální zařízení WC a v jednom z pokojů jsou připraveny přípojky vody a odpadu, což nabízí variabilní využití tohoto pokoje. V prvním patře jsou rovněž terasy.

Dům je zděný ze sendvičového zdiva výrobce BSG, typ LIVETHERM
Izolace obálky je integrovaná v sendvičovém zdivu LIVETHERM

Vytápění je podlahové - elektrické topné rohože (v garáži je stropní elektrická topná rohož), druhým zdrojem vytápění je krbová vložka. Krbová vložka má připraveno trubní vedení pro přisávání vzduchu a zároveň kouřovod.
Elektřina je řešena elektroměrem pro každou část domu zvlášť. Aktuálně je osazen staveništní odběr. Klient si zažádá o osazení svého odběrného místa dle jeho požadavků na jištění a potřebu parametrů připojení.
Střecha je plochá, krytina je hydroizolační fólie z PVC. Izolace je EPS100 tl. 220 mm + spádový klín tl. 20 - 200 mm.
Fotovoltaika je možná dodatečně doplnit do RD (rodinný dům). Plochá střecha a její konstrukce je připravena pro doplnění návrhu umístění fotovoltaických panelů.

Zdroj vody je obecní vodovod. Dům má jednu přípojku a ve vodoměrné šachtě dochází k rozdělení na obě části RD (rodinný dům) a měření skutečné spotřeby vody podružnými vodoměry.

Dům je napojen na obecní kanalizaci.
Okna jsou dřevěná, bez bezpečnostních prvků, bez fólií, 3 - skla.
Dvojdům se nachází v malebné krajině Křivoklátských lesů u města Unhoště.
  • Vložení inzerátu:
    27.1.2025
  • Kód:
    00642
  • K dispozici od:
    0.0.0
  • Typ nemovitosti:
    Rodinný dům
  • Typ budovy:
    Cihlová
  • Podlahová plocha:
    297 m2
  • Plocha parcely:
    901 m2
  • Lodžie:
    4 m2
  • Stav objektu:
    Velmi dobrý
  • Rok výstavby:
    2022
  • Rok kolaudace:
    2022
  • Umístění objektu:
    Klidná část
  • Voda:
    dálkový vodovod
  • Elektřina:
    230 V
  • Doprava:
    silnice, dálnice, MHD, vlak
  • Odpad:
    kanalizace
  • Energetická náročnost:
    B - Velmi úsporná
  • Podle vyhlášky:
    c. 78/2013 Sb.
  • Ukazatel náročnosti:
    50.74 kWh/m2
  • Nabídky v okolí:
  • Informace o obci:
    Obec Unhošť má 3922 obyvatel, z toho 2641 v produktivním věku.
    V obci se nachází pošta.
    V obci se nachází škola, popř. školka.
    V obci se nachází zdravotní zařízení.
    V obci je rozvod kanalizace.
    V obci je rozvod městské vody.
    V obci je rozvod plynu.
Lokalita: Na Čeperce , Unhošť, okres Kladno, Česká republika Na Čeperce, Unhošť, okr. Kladno

Kontakt

Radek Šlemar


Podobné nabídky v okolí


Volná pracovní místa ExpertPrace.cz
  • Objednání prohlídky a více informací
  •  
  • Poslat na e-mail
  •  

Zasílání odkazu na realitu emailem: