• Sledovat cenu
  •  

Zasílání upozornění emailem:

Rodinný dům, 293 m2 - V polích 1348, Praha

Cena: 27 690 000 Kč
Stav:Volný
293 m2, cihlová, parcela 680 m2
Popis: Ve výhradním zastoupení majitele nabízíme k prodeji prostorný rodinný dům v Praze 4 – Krči, v ulici V Polích.
Dům byl postaven v roce 1968 a po celou dobu o něj pečovali původní majitelé. Nabízí velkorysých 293 m² podlahov...é plochy a promyšlenou dispozici 6+1, která poskytne pohodlí celé rodině. To vše na pozemku o velikosti 680 m².

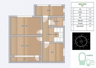
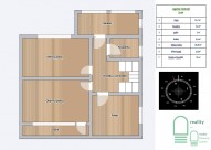
Dispozice domu

Suterén: dvojgaráž s elektrickými vraty, dílna, technická místnost, prádelna a sklep.
Přízemí: prostorná vstupní hala, pokoj, kuchyň a obývací pokoj s lodžií.
1. patro: koupelna, dva menší pokoje a jeden větší pokoj, který má vlastní lodžii.
Půda: možnost vytvoření dalších obytných místností nebo velkorysého úložného prostoru.

Stav a vybavení

Dům je v dobrém technickém stavu, proběhla zde částečná rekonstrukce – instalována nová okna a rozvody vody. Vytápění zajišťuje plynový kotel s pravidelnými revizemi. Vybavení lze ponechat po dohodě.

Lokalita

V docházkové vzdálenosti najdete školku, školu, obchody i Thomayerovu nemocnici. Skvělá je také dopravní dostupnost – metro, několik autobusových linek i rychlé napojení na městský okruh.

Další informace

Na koupi lze bez problémů využít hypoteční úvěr, který Vám zdarma a s výhodnou úrokovou sazbou nabízíme.
Cena je včetně právního servisu a provize realitní kanceláře.
Doporučujeme osobní prohlídku.
  • Vložení inzerátu:
    16.6.2025
  • Kód:
    00062
  • K dispozici od:
    0.0.0
  • Typ nemovitosti:
    Rodinný dům
  • Typ budovy:
    Cihlová
  • Zastavěná plocha:
    106 m2
  • Podlahová plocha:
    293 m2
  • Plocha parcely:
    680 m2
  • Balkón:
    6 m2
  • Lodžie:
    10 m2
  • Stav objektu:
    Po rekonstrukci
  • Rok rekonstrukce:
    2021
  • Umístění objektu:
    Klidná část
  • Telekomunikace:
    Internet
  • Voda:
    dálkový vodovod
  • Doprava:
    silnice, dálnice, MHD, autobus, vlak
  • Topeni:
    ústřední plynové
  • Odpad:
    kanalizace
  • Komunikace:
    asfaltová
  • Zařízený:
    Ano
  • Energetická náročnost:
    G - Mimořádne nehospodárná
  • Podle vyhlášky:
    c. 78/2013 Sb.
  • Ukazatel náročnosti:
    318 kWh/m2
  • Nabídky v okolí:
  • Informace o obci:
    Obec Praha má 1257158 obyvatel, z toho 889974 v produktivním věku.
    V obci se nachází pošta.
    V obci se nachází škola, popř. školka.
    V obci se nachází zdravotní zařízení.
    V obci je rozvod kanalizace.
    V obci je rozvod městské vody.
    V obci je rozvod plynu.
Lokalita: V polích 1348, Praha, Česká republika V polích 1348, Praha

Kontakt

Ing. Alena Lodlová


Podobné nabídky v okolí


  • Objednání prohlídky a více informací
  •  
  • Poslat na e-mail
  •  

Zasílání odkazu na realitu emailem: