• Sledovat cenu
  •  

Zasílání upozornění emailem:

Rodinný dům, 292 m2 - Vysoký Újezd, okr. Beroun

Cena: 15 590 000 Kč
Stav:Volný
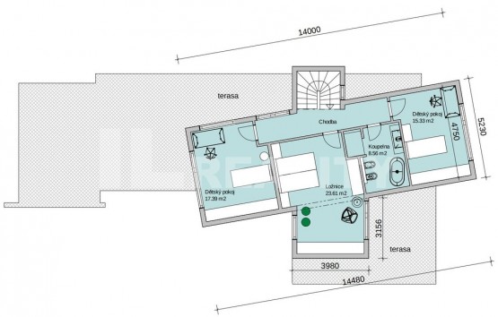
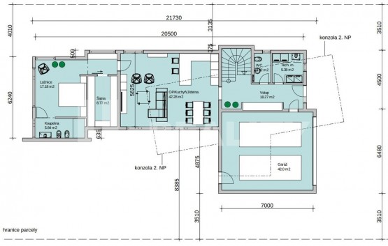
292 m2, cihlová, parcela 864 m2
Popis: Nabízíme Vám luxusní vily, kde se již dokončila výstavba 6 luxusních vilek, 3 jsou již v rezervaci. Jedná se o moderní a energeticky velice úsporné zděné vily s užitnou plochou až 292m2. Domy se nachází v lokal...itě Vysoký Újezd je pouhých 15 minut od Prahy, městská část Zličín, velmi dobrá dostupnost na pražský okruh a do dalších částí Prahy. V projektu je v nabídce 6 moderních domů - vil a můžete si vybrat pozemek od 864 - 1058m2. Vily jsou v přízemí rozděleny na dvě části a to hlavní, kde je obývací pokoj, kuchyň, zázemí, koupelny a druhou, kde může být Vaše ložnice, nebo pracovna. V druhém nadzemním podlaží jsou umístěny tři samostatné pokoje s koupelnou. Jedná se o projekt, který splňuje požadavky náročného klienta. Developerská společnost, která se zabývá výstavbou se již řadu let zabývá výstavbou kvalitních nadčasových rodinných domů, které vynikají moderním a bezkonkurenčním dispozičním řešením zajišťující nadstandardní velikost vnitřního prostoru. Projekt se nachází nedaleko nově rozšiřujícího se centra ve Vysokém Újezdu, kde vzniká nové náměstí s moderními byty a s občanskou vybaveností. Jedná se o velice žádanou lokalitu obce Vysoký Újezd u Berouna. Kromě standardní vybavenosti obce, kde je úřad, pošta, škola, školka a obchod nabízí tato lokalita i výborné sportovní vyžití. V obci se nachází vyhledávaný golfový resort ALBATROS. V blízkosti Vysokého Újezdu se nachází jeden z nejkrásnějších českých hradů Karlštejn, dále Žebrák, lom Amerika a další vyhledávaná místa. V případě zájmu nás neváhejte kontaktovat a rádi Vám předvedeme vzorový dům, který je k dispozici na prohlídky. Budete jednat přímo s majitelem projektu, který Vám sdělí podrobné informace. Dokončení je naplánováno na léto 2020. Ceny luxusních vil jsou vždy podle vybrané vily a pozemku. Ceny od 15 590 000, - Kč - 16 999 000, - Kč, dle velikosti pozemku. Financování tohoto domu je zajištěno smluvní bankou. Zveme Vás na prohlídku a to po dohodě denně i o víkendech. Poslední 3 vily v prodeji.
  • Vložení inzerátu:
    8.6.2020
  • Kód:
    06908
  • K dispozici od:
    0.0.0
  • Typ nemovitosti:
    Rodinný dům
  • Typ budovy:
    Cihlová
  • Zastavěná plocha:
    200 m2
  • Podlahová plocha:
    292 m2
  • Plocha parcely:
    864 m2
  • Terasa:
    Ano
  • Elektřina:
    230 V
  • Doprava:
    silnice, dálnice, MHD, autobus
  • Komunikace:
    asfaltová
  • Energetická náročnost:
    B - Velmi úsporná
  • Podle vyhlášky:
    c. 78/2013 Sb.
  • Ukazatel náročnosti:
    491 kWh/m2
  • Nabídky v okolí:
  • Informace o obci:
    Obec Vysoký Újezd má 198 obyvatel, z toho 119 v produktivním věku.
    V obci je rozvod městské vody.
Lokalita: Vysoký Újezd, okres Beroun, Česká republika Vysoký Újezd, okr. Beroun, Středočeský kraj

Kontakt

Iveta Vašková
Objednání prohlídky a více informací


Podobné nabídky v okolí


Volná pracovní místa ExpertPrace.cz
  • Objednání prohlídky a více informací
  •  
  • Poslat na e-mail
  •  

Zasílání odkazu na realitu emailem: