• Sledovat cenu
  •  

Zasílání upozornění emailem:

Rodinný dům, 272 m2 - Stepní 1229, Rumburk 1, Rumburk, okr. Děčín (již není v nabídce)

Cena: 0 Kč
Stav:archiv
272 m2, cihlová, parcela 1174 m2
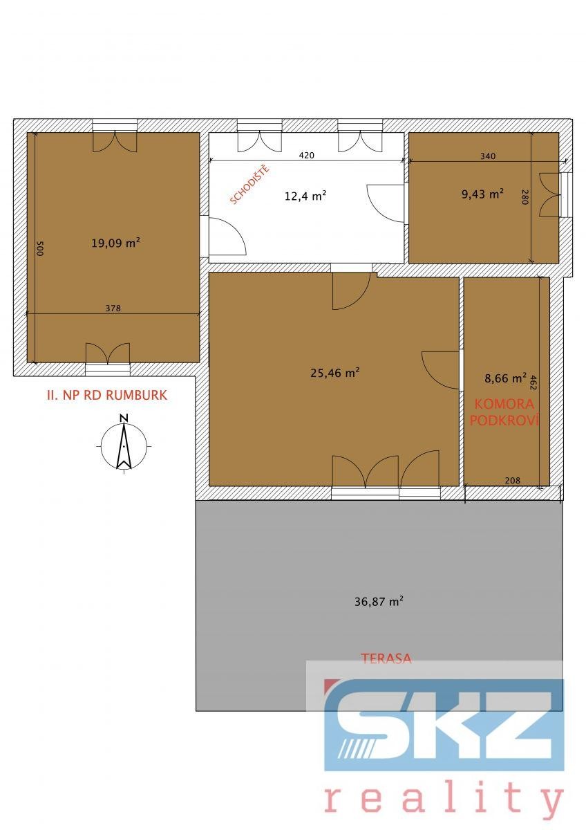
Popis: SKZ REALITY - Rumburk Vám představuje k prodeji rodinný dům 5+2 s garáží a zahradou v Rumburku. Dům se nachází v klidné části města nedaleko centra. Částečně podsklepená stavba domu se sedlovou střechou (se zánovní kvalit...ní střešní krytinou) sestává v přízemí ze 4 místností, dále kuchyně, zádveří, uhelny, chodby, koupelny, umývárny a prostorné garáže s el. ovládanými vraty. V II. NP se nachází, mezipatro, kuchyň, světlý a prostorný pokoj s výstupem na terasu a úložným prostorem. Vytápění je zajištěno ústředně s plynovým kotlem, teplá voda bojlerem a odpady jsou svedeny do septiku s přepadem již do kanalizace. Ve sklepě se nachází studna s domácí vodárnou s napojením do domu. Okna jsou dřevěná se zdvojenými skly a opatřena venkovními žaluziemi. Ze zahrady na jižní straně je možný vstup do dalšího podzemního prostoru užívaného jako sklad zahradního nářadí nebo menší garáž. Na pozemku se nachází 2 vedlejší stavby a 2 skleníky. Pozemek je rovinný, po celém obvodu oplocený s ovocnými stromy a okrasnými dřevinami. Dům je dispozičně uspořádaný i pro dvougenerační bydlení (studie na přestavbu lze dodat). K dispozici jsou u makléře půdorysy, pohledy a případně další fotografie. Prohlédněte si také zpracované video a pak se objednejte na prohlídku domu. Nepropásněte šanci na příjemné bydlení v moc hezké a klidné části Rumburka.
  • Vložení inzerátu:
    23.6.2022
  • Kód:
    134/3035
  • Typ nemovitosti:
    Rodinný dům
  • Typ budovy:
    Cihlová
  • Zastavěná plocha:
    180 m2
  • Podlahová plocha:
    272 m2
  • Plocha parcely:
    1174 m2
  • Terasa:
    36 m2
  • Sklep:
    49 m2
  • Stav objektu:
    Dobrý
  • Telekomunikace:
    Telefon, Internet
  • Elektřina:
    230 V, 380 V
  • Doprava:
    vlak, silnice, autobus
  • Topeni:
    ústřední plynové
  • Plyn:
    plynovod
  • Odpad:
    kanalizace
  • Komunikace:
    asfaltová
  • Bezbariérový přístup:
    Ano
  • Energetická náročnost:
    G - Mimořádne nehospodárná
  • Nabídky v okolí:

Podobné nabídky v okolí

Lokalita: Stepní 1229, Rumburk 1, Rumburk, okres Děčín, Česká republika Stepní 1229, Rumburk 1, Rumburk, okr. Děčín