• Sledovat cenu
  •  

Zasílání upozornění emailem:

Rodinný dům, 263 m2 - Tatenice , okr. Ústí nad Orlicí

Cena: 5 995 000 Kč
Stav:Volný
263 m2, cihlová, parcela 5457 m2
Popis: Nabízíme k prodeji rozměrný rodinný dům v klidné části obce Tatenice, situovaný na mimořádně velkorysém pozemku o výměře 5 457 m². Dům byl postaven v 80. letech a díky své dispozici, technickému zázemí i rozsahu pozemku p...ředstavuje zajímavou příležitost pro rodinné bydlení i budoucí rozvoj.

Dům má tři podlaží a celková podlahová plocha činí přibližně 313 m². Součástí je také terasa o výměře cca 19 m² a tři balkony o celkové ploše cca 5 m². Nemovitost je v původním, průměrném technickém stavu a je určena spíše k modernizaci, což novému majiteli umožní upravit si dům přesně podle vlastních představ.

Dispozice domu

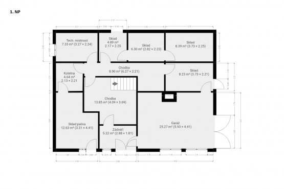
1. nadzemní podlaží tvoří především technické a hospodářské zázemí domu. Nachází se zde prostorná garáž, kotelna, technická místnost, několik skladů, prostor pro palivo, zádveří a chodby. Toto podlaží nabízí velké množství úložných a provozních ploch, které u rodinného domu ocení každý, kdo potřebuje místo pro dílnu, skladování, hobby nebo sezonní vybavení.

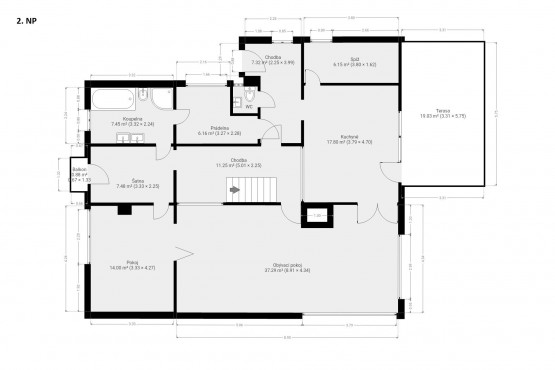
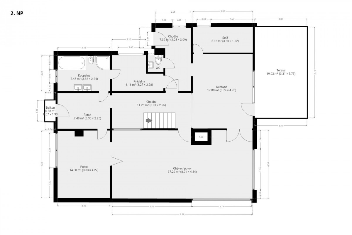
2. nadzemní podlaží slouží jako hlavní obytné patro. Dominantou je velkorysý obývací pokoj o ploše přes 37 m², který přirozeně tvoří centrum rodinného života. Na něj navazuje kuchyně se spíží a přímým vstupem na terasu, což vytváří velice praktické propojení interiéru s venkovním prostorem. Dále je zde samostatný pokoj, koupelna, šatna, prádelna, samostatné sociální zařízení WC a centrální chodba se schodištěm.

3. nadzemní podlaží představuje klidovou zónu domu. Nacházejí se zde tři samostatné pokoje, další koupelna, samostatné sociální zařízení WC, dva sklady a prostorná centrální chodba. Dva pokoje mají přístup na balkon. Toto patro nabízí dostatek soukromí pro ložnice, dětské pokoje i pracovnu a dobře odpovídá potřebám větší rodiny.

Technické informace

Dům je napojen na elektřinu, plyn, vodovod i kanalizaci. Vytápění je možné plynovým kotlem nebo kotlem na tuhá paliva. Ohřev vody zajišťuje bojler.

Pozemek a další potenciál

Jedním z hlavních benefitů této nabídky je rozsáhlý pozemek o výměře 5 457 m², který nabízí dostatek prostoru pro zahradu, odpočinek, hospodářské využití i další budoucí záměry. V horní části pozemku se nachází další stavba stodoly ve špatném technickém stavu. Po jejím odstranění a po prověření záměru na příslušných úřadech se zde nabízí zajímavý potenciál pro vznik další stavební parcely s přístupem z horní strany pozemku.

Pro koho je dům vhodný

Nemovitost je ideální pro rodinu, která hledá prostorné bydlení v klidné a příjemné lokalitě, ocení velké technické zázemí domu a zároveň vidí potenciál v postupné modernizaci. Dům zaujme i zájemce, kteří hledají kombinaci soukromí, velkého pozemku a možnosti dalšího využití do budoucna.
  • Vložení inzerátu:
    25.3.2026
  • Kód:
    2026003
  • K dispozici od:
    0.0.0
  • Typ nemovitosti:
    Rodinný dům
  • Typ budovy:
    Cihlová
  • Zastavěná plocha:
    182 m2
  • Podlahová plocha:
    263 m2
  • Plocha parcely:
    5457 m2
  • Balkón:
    5 m2
  • Terasa:
    19 m2
  • Stav objektu:
    Dobrý
  • Umístění objektu:
    Klidná část
  • Telekomunikace:
    , Satelit
  • Voda:
    dálkový vodovod
  • Elektřina:
    230 V, 380 V
  • Doprava:
    vlak, silnice, autobus
  • Topeni:
    ústřední plynové
  • Plyn:
    plynovod
  • Odpad:
    kanalizace
  • Komunikace:
    dlážděná
  • Energetická náročnost:
    G - Mimořádne nehospodárná
  • Podle vyhlášky:
    c. 78/2013 Sb.
  • Ukazatel náročnosti:
    417 kWh/m2
  • Nabídky v okolí:
  • Informace o obci:
    Obec Tatenice má 850 obyvatel, z toho 606 v produktivním věku.
    V obci se nachází pošta.
    V obci se nachází škola, popř. školka.
    V obci se nachází zdravotní zařízení.
    V obci je rozvod kanalizace.
    V obci je rozvod městské vody.
    V obci je rozvod plynu.
Lokalita: Tatenice , okres Ústí nad Orlicí, Česká republika Tatenice , okr. Ústí nad Orlicí, Pardubický kraj

Kontakt

Ing. Josef Fuchs, MBA
Objednání prohlídky a více informací



Volná pracovní místa ExpertPrace.cz
  • Objednání prohlídky a více informací
  •  
  • Poslat na e-mail
  •  

Zasílání odkazu na realitu emailem: