• Sledovat cenu
  •  

Zasílání upozornění emailem:

Rodinný dům, 261 m2 - Pasohlávky , okr. Brno-venkov

Cena: 11 950 000 Kč
Stav:Volný
261 m2, cihlová, parcela 382 m2
Popis: Hledáte moderní a prostorné bydlení v klidné a příjemné lokalitě u Novomlýnských nádrží? Tento řadový rodinný dům v Pasohlávkách nabízí dispozici 5+1 s garáží a potěší nejen svou velik...ostí, ale i důkladnou rekonstrukcí, kterou nedávno prošel.

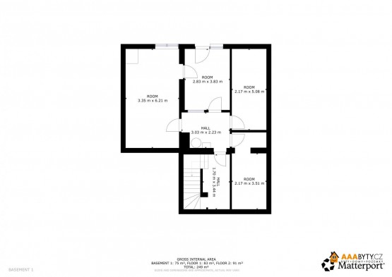
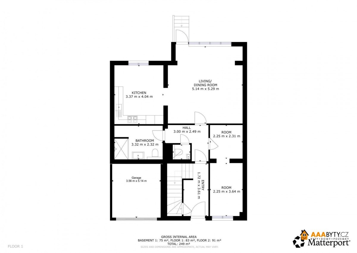
Dům má dvě nadzemní podlaží a plně využitelný suterén.

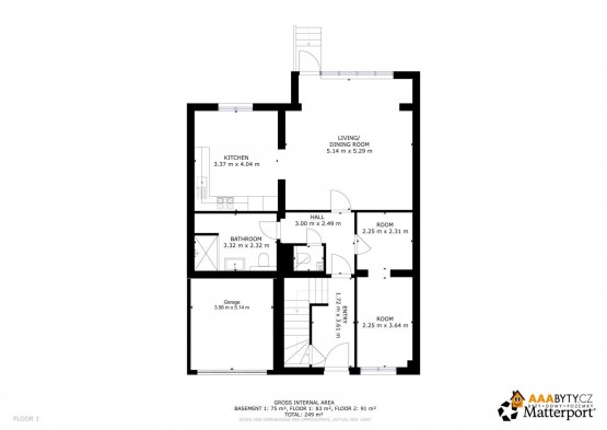
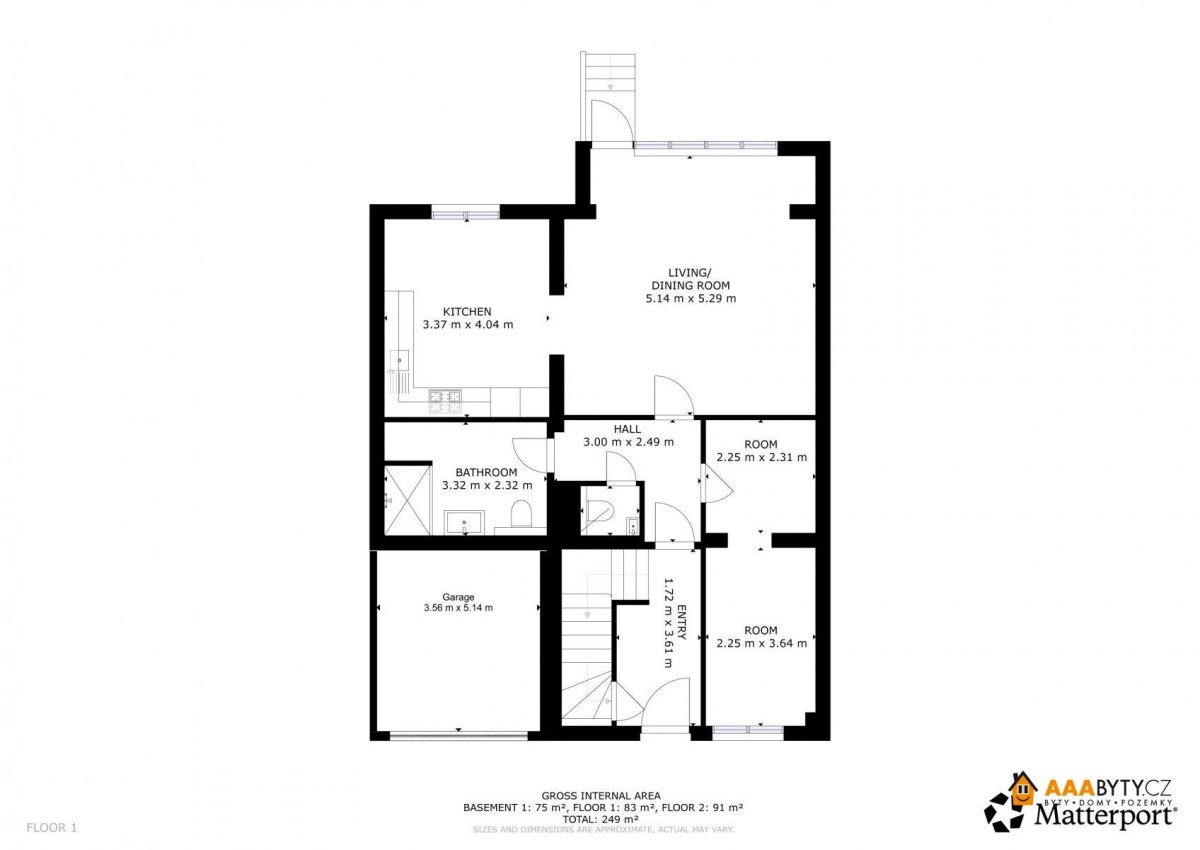
Přízemí: vstupní hala, pokoj vhodný jako pracovna či pokoj pro hosty, světlý obývací pokoj s přímým vstupem na zahradu, propojená kuchyně s jídelnou, koupelna s sociální zařízení WC a další samostatná toaleta.

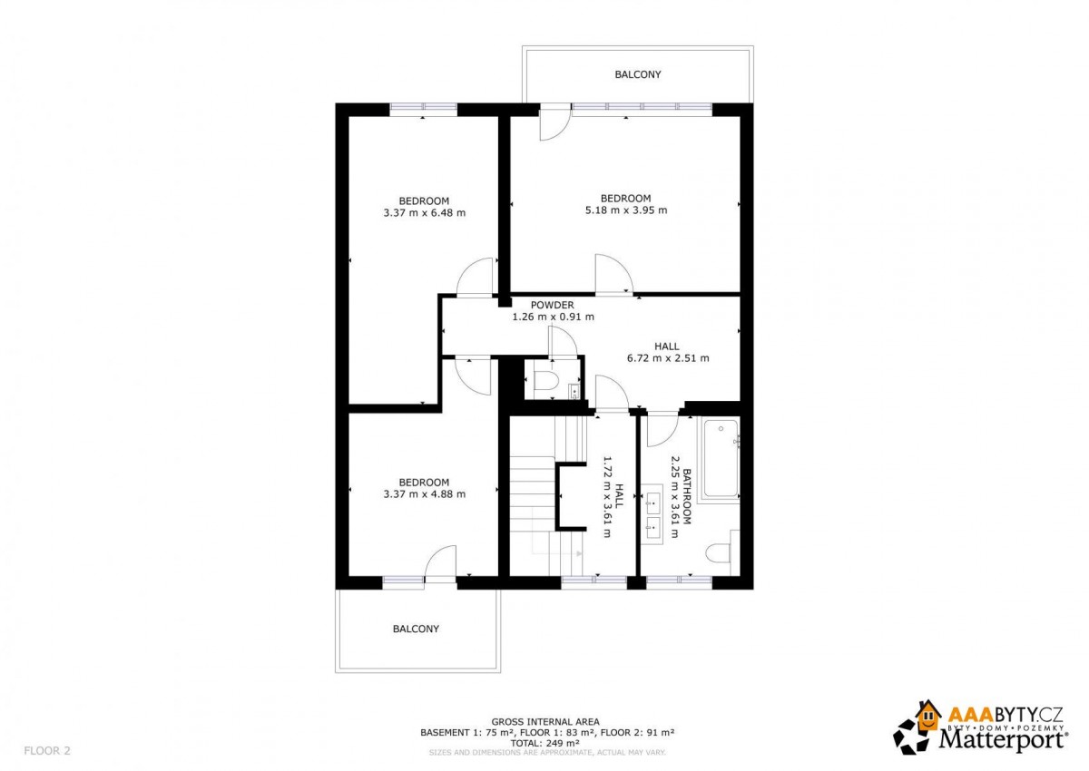
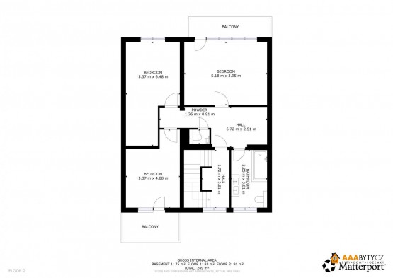
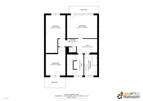
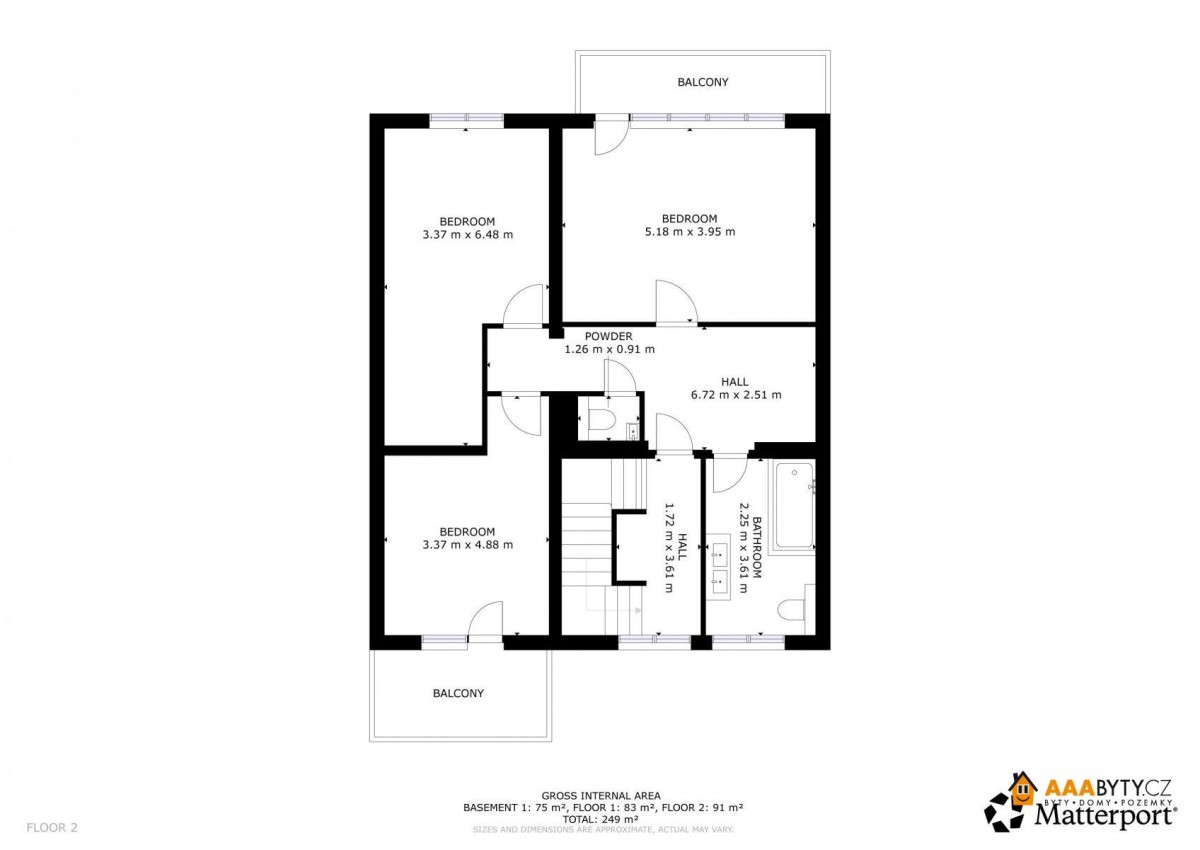
Patro: tři ložnice, z toho jedna s balkonem do ulice a druhá s prostornou lodžií do zahrady. Koupelna s vanou a sociální zařízení WC, navíc i další samostatné sociální zařízení WC.

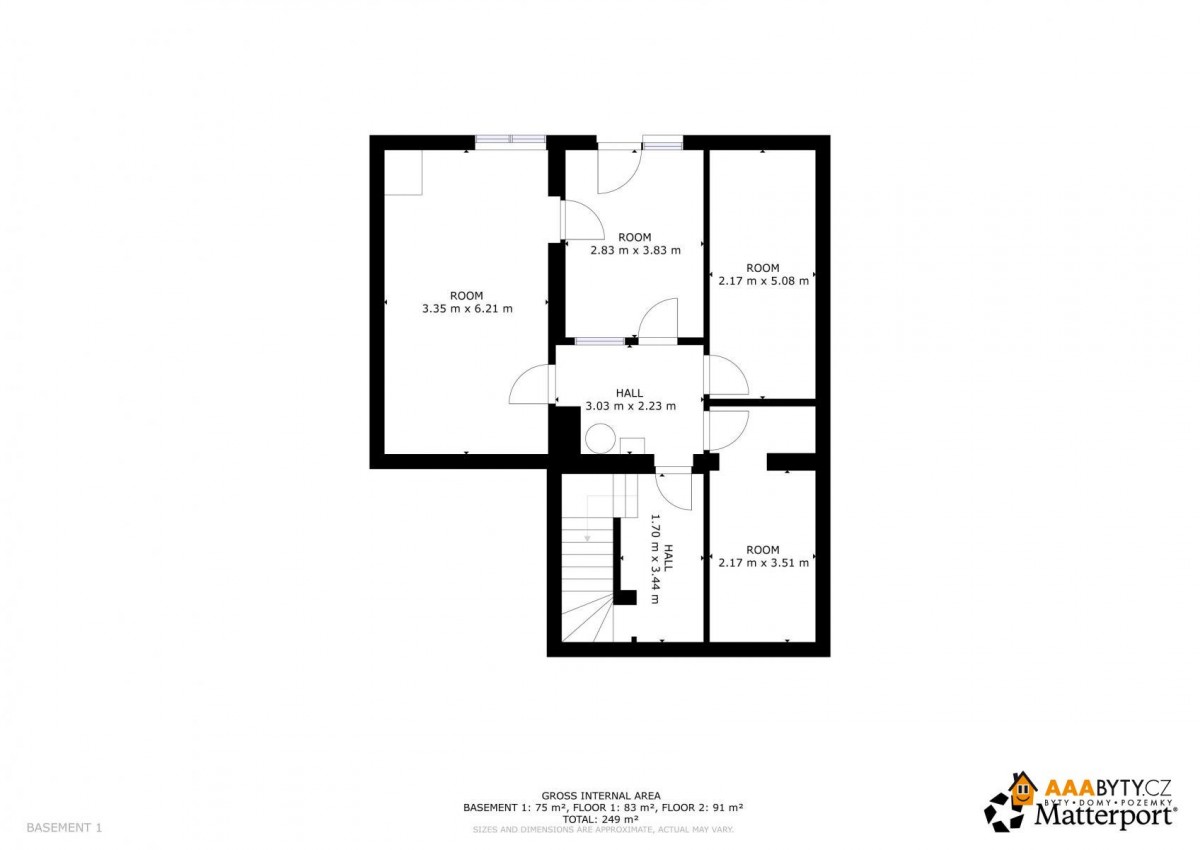
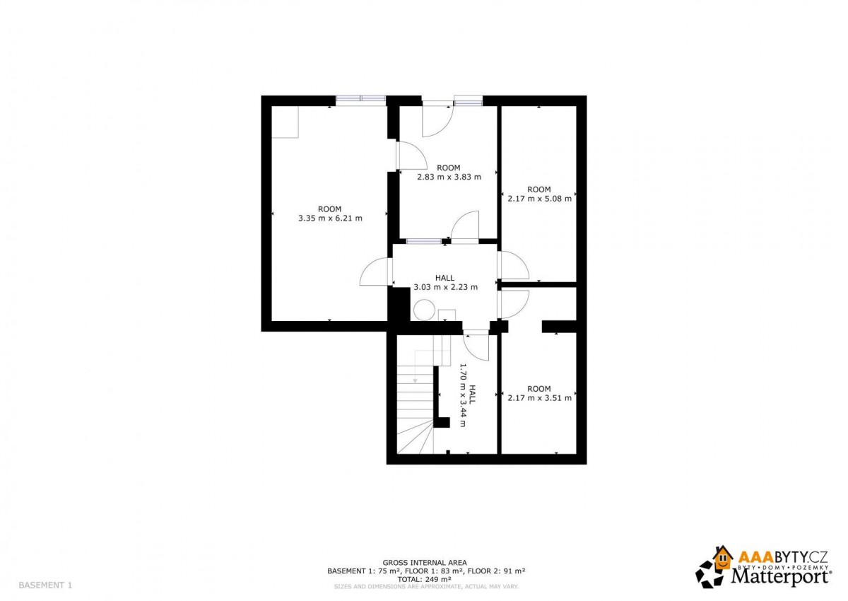
Suterén: pět místností s variabilním využitím kotelna, dílna, sklad, prádelna, případně i domácí fitness či wellness.

Na zahradě orientované do vnitrobloku se nachází zděný zahradní domek, studna a nádrž na dešťovou vodu. Parkování je možné v garáži nebo přímo na pozemku před domem.

Rekonstrukce: v domě jsou nové rozvody vody, elektřiny i kanalizace, kompletně nové podlahy, povrchy, podhledy, osvětlení i koupelny se zařizovacími předměty. Vytápění a ohřev vody zajišťuje elektrokotel, střecha je připravena na instalaci fotovoltaiky.

Obec Pasohlávky nabízí plnou občanskou vybavenost školu, školku, poštu, obchody, restaurace, hřiště i knihovnu. Cyklistická stezka kolem Novomlýnských nádrží je vzdálena pouhých 150 metrů. Díky výborné dostupnosti je to ideální místo pro život i rekreaci Brno i hranice s Rakouskem máte na dosah.
  • Vložení inzerátu:
    2.10.2025
  • Kód:
    17094
  • Typ nemovitosti:
    Rodinný dům
  • Typ budovy:
    Cihlová
  • Zastavěná plocha:
    122 m2
  • Podlahová plocha:
    261 m2
  • Plocha parcely:
    382 m2
  • Balkón:
    13 m2
  • Sklep:
    65 m2
  • Stav objektu:
    Po rekonstrukci
  • Telekomunikace:
    Internet
  • Voda:
    dálkový vodovod
  • Elektřina:
    230 V
  • Doprava:
    silnice, autobus
  • Topeni:
    ústřední elektrické
  • Odpad:
    kanalizace
  • Komunikace:
    asfaltová
  • Bezbariérový přístup:
    Ano
  • Energetická náročnost:
    C - Úsporná
  • Nabídky v okolí:
  • Informace o obci:
    Obec Pasohlávky má 732 obyvatel, z toho 543 v produktivním věku.
    V obci se nachází pošta.
    V obci se nachází zdravotní zařízení.
    V obci je rozvod kanalizace.
    V obci je rozvod městské vody.
Lokalita: Pasohlávky , okres Brno-venkov, Česká republika Pasohlávky , okr. Brno-venkov, Jihomoravský kraj



  • Objednání prohlídky a více informací
  •  
  • Poslat na e-mail
  •  

Zasílání odkazu na realitu emailem: