• Sledovat cenu
  •  

Zasílání upozornění emailem:

Rodinný dům, 260 m2 - Dolní nábřeží, Varnsdorf, okr. Děčín

Cena: 5 200 000 Kč
Stav:Volný
260 m2, cihlová, parcela 282 m2
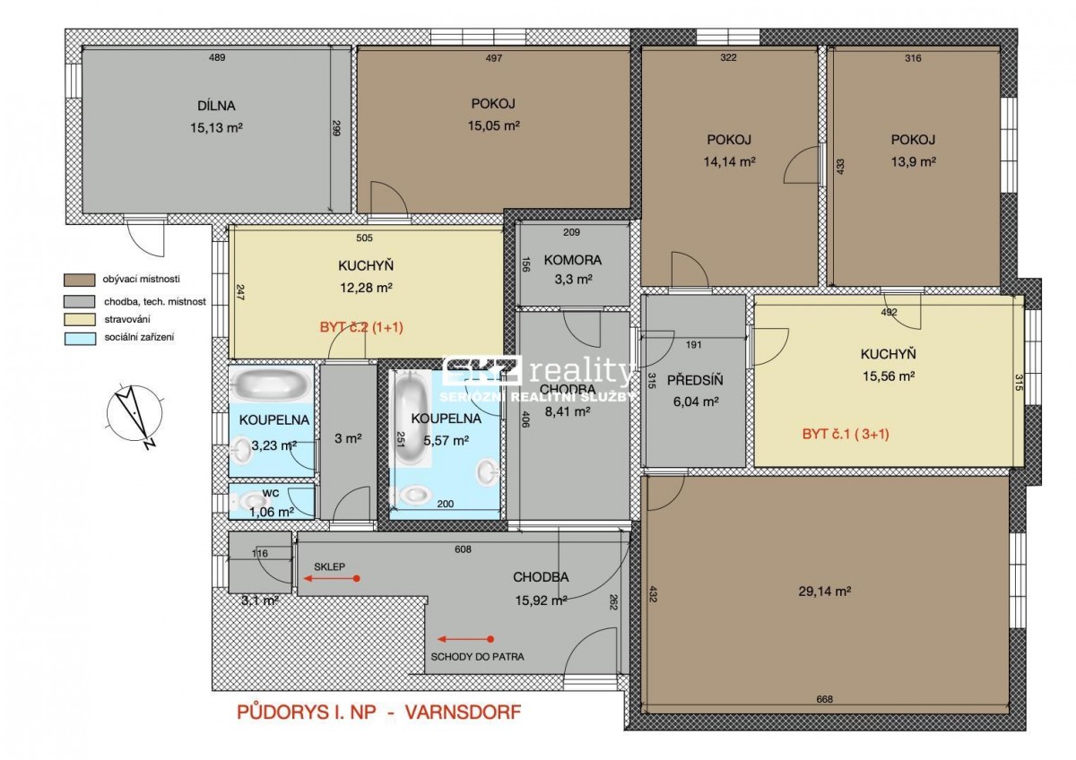
Popis: SKZ REALITY Rumburk nabízí k prodeji nemovitost se 3 byty ve Varnsdorfu. V přízemí domu se nachází vstupní chodba se schodištěm do II. NP, vstup do bytu 3+1, ... 1 kuchyň">1+1 a vchod do sklepa. Byt 3+1 v přízemí sestává z chodby, rekonstruované koupelny s vanou a sociální zařízení WC, komory, kuchyně a 3 místností. Byt 1+1 v přízemí má menší vstupní chodbu, koupelnu, samostatné sociální zařízení WC, prostornou kuchyň a obývací pokoj (možnost rozšířit o 1 místnost na východní straně). Tento byt vyžaduje celkovou rekonstrukci. Okna v tomto podlaží jsou dřevěná zdvojená. Vše je přehledně zobrazeno v našem půdorysu. Ve II. NP se nachází byt 3+1 o ploše 127 m2. Tento byt je po celkové rekonstrukci oken (plastová), podlah, stěn, koupelny, elektřiny, rozvodů vody a odpadů. Na domě byla provedena kompletní výměna původní střešní krytiny za novou s pálenou taškou. Krovy jsou ve velice dobrém stavu. S opravou střechy proběhla i rekonstrukce komínů. Každý byt má své měření vody a elektřiny. Průkaz ENB se zpracovává. Každý byt je vytápěn vždy samostatným plynovým kotlem. Byt 3+1 ve II. NP má navíc krb v obývací místnosti. Splaškové vody jsou odváděny do kanalizace. Neváhejte nás kontaktovat včas. Rádi Vám tuto nemovitost ukážeme a podáme podrobnější informace na prohlídce.
  • Vložení inzerátu:
    20.10.2025
  • Kód:
    207
  • Typ nemovitosti:
    Rodinný dům
  • Typ budovy:
    Cihlová
  • Zastavěná plocha:
    180 m2
  • Podlahová plocha:
    260 m2
  • Plocha parcely:
    282 m2
  • Stav objektu:
    Dobrý
  • Bezbariérový přístup:
    Ano
  • Energetická náročnost:
    G - Mimořádne nehospodárná
  • Nabídky v okolí:
  • Informace o obci:
    Obec Varnsdorf má 15867 obyvatel, z toho 11122 v produktivním věku.
    V obci se nachází pošta.
    V obci se nachází škola, popř. školka.
    V obci se nachází zdravotní zařízení.
    V obci je rozvod kanalizace.
    V obci je rozvod městské vody.
    V obci je rozvod plynu.
Lokalita: Dolní nábřeží , Varnsdorf, okres Děčín, Česká republika Dolní nábřeží, Varnsdorf, okr. Děčín

Kontakt

Mgr. Jaroslav Šmejc



Volná pracovní místa ExpertPrace.cz
  • Objednání prohlídky a více informací
  •  
  • Poslat na e-mail
  •  

Zasílání odkazu na realitu emailem: