• Sledovat cenu
  •  

Zasílání upozornění emailem:

Rodinný dům, 260 m2 - Klabava , okr. Rokycany (již není v nabídce)

Cena: 5 850 000 Kč
Stav:archiv
260 m2, cihlová, parcela 1483 m2
Popis: Aktualizace COV (osobní vlastnictví)ID 12/2020 - Prohlídky probíhají v rámci hygienických předpisů, prosíme o respektování nošení roušky a bezpečného odstupu 2m.
Kopta reality zajišťuje prodej vícegeneračního rodinného ...domu o celkové dispozici 8+2 včetně terasy, bazénu, parkování až pro 8 vozidel a to na přemoc hezkém místě v obci Klabava, nedaleko D5, 10km od Plzně a 5km od Rokycan. Dům je částečně kryt vzrostlými stromy z pohledu od silnice, což nahrává absolutnímu soukromí, ze zadní strany je výhled na pole a nedaleký les. Příjezd k domu je pohodlně po asfaltové silnici (pravidelně udržované), kolem domu a za dům vede sporadicky užívaná polní cesta. Sleva 100. 000 při rychlém jednání.
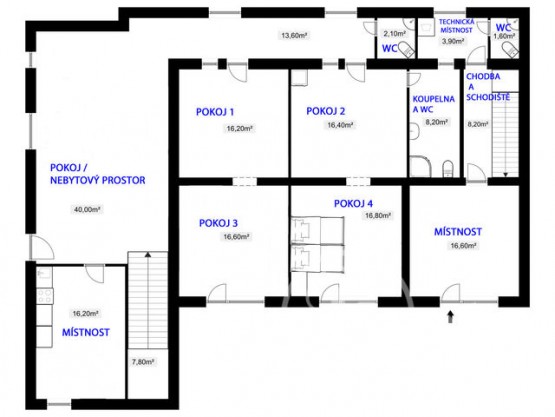
Dispozice:
Jedná se o patrový rodinný dům, kdy v 1. patře se nachází byt o velikosti 4+kk+koupelna a sociální zařízení WC (aktuálně obýván stávajícím majitelem) a v přízemí je v tuto chvíli připraveno 6 místností /pokojů/prostor s koupelnou s sociální zařízení WC , dále1 krát samostatné sociální zařízení WC na společné chodbě, technická místnost, 2 terasa - přední, jižní terasa, boční, západní terasa. Přízemní prostor lze využít jak jako standardní bytovou jednotku, tak jako případnou dílnu, ateliér, office, kadeřnictví, masáže či jinou obdobnou provozovnu a mít tak na jednom místě podnikání i bydlení. Původní , první vlastník objektu projektoval dům z větší části jako samostané ubytování s apartmány.
Technický stav:
Dům byl postaven v roce 2002 jako novostavba. Stávající vlastník dům koupil v roce 2009. Kolaudace proběhla v roce 2013. Na domě proběhla výměna střešní krytiny v r. 2017 – nová krytina plechová střecha zn. Satjam, dále pořízena nová el. pojezdová brána na dálkové ovládání a zhotoven nový plot při komunikaci. V r. 2019 byl díky terénním úpravám instalován bazén se slanou vodou zn. INTWX o objemu 24 m3. V r. 2010 pořízen kondenzační plynový kotel VICTRIX na ohřev TUV a topení.
Sítě: Dům je napojen na ČOV (osobní vlastnictví) - čistička odpadních vod, kanalizace v obci není , vodovodní řad v přilehlé komunikaci u domu - lze se napojit, nicméně voda pro dům je jímána cca z 20m vrtu. Dům je napojen na plynovod - plynový kotel, elektřina je přivedena jak 230V , tak i 380 V.
Místo:
Dům je z větší části orientován na J / JV stranu. Výhodou je jeho poloha na okraji obce. Za domem je pole a navazují les, z kuchyně a dalších místností je tak poměrně malebný výhled nerušený žádnou zástavbou. Dům má 2 terasy - jižní a západní. Ideální je také rychlá dostupnost jak do Plzně a Rokycan, tak na dálnici D5 směr Praha - Rozvadov. Vše do 10 min jízdy.
Obec:
Klabava je obec v okrese Rokycany, má cca 460 stálých obyvatel a nachází se na jižním svahu nad stejnojmennou řekou Klabavou. Řeka je před obcí přehrazena asi 400 metrů dlouhou hrází, která zde vytváří vodní plochu o rozloze 63 hektarů. Klabava leží v klidové zóně bez průmyslu, v okolí jsou lesy, cyklostezka a zajímavá turistická místa, golfové hřiště. Místo pro pohodové a klidné bydlení.
Virtuální prohlídka obce: https: //www. klabava. rokycansko. cz/images/virtualni_prohlidka
  • Vložení inzerátu:
    12.11.2020
  • Kód:
    0231
  • Typ nemovitosti:
    Rodinný dům
  • Typ budovy:
    Cihlová
  • Zastavěná plocha:
    228 m2
  • Podlahová plocha:
    260 m2
  • Plocha parcely:
    1483 m2
  • Terasa:
    73 m2
  • Bazén:
    20 m2
  • Stav objektu:
    Po rekonstrukci
  • Rok výstavby:
    2013
  • Rok kolaudace:
    2013
  • Rok rekonstrukce:
    2017
  • Umístění objektu:
    Okraj
  • Telekomunikace:
    Internet, Satelit
  • Voda:
    místní zdroj
  • Elektřina:
    230 V
  • Doprava:
    silnice, dálnice, autobus, vlak
  • Topeni:
    lokální plynové
  • Plyn:
    plynovod
  • Odpad:
    ČOV
  • Komunikace:
    asfaltová
  • Zařízený:
    Ano
  • Energetická náročnost:
    G - Mimořádne nehospodárná
  • Podle vyhlášky:
    c. 78/2013 Sb.
  • Nabídky v okolí:
  • Informace o obci:
    Obec Klabava má 441 obyvatel, z toho 324 v produktivním věku.
    V obci se nachází pošta.
    V obci je rozvod městské vody.
    V obci je rozvod plynu.

Podobné nabídky v okolí

Lokalita: Klabava , okres Rokycany, Česká republika Klabava , okr. Rokycany, Plzeňský kraj