• Sledovat cenu
  •  

Zasílání upozornění emailem:

Rodinný dům, 240 m2 - Lochovice, okr. Beroun (již není v nabídce)

Cena: 12 000 000 Kč
Stav:archiv
240 m2, parcela 562 m2
Popis: Nabízíme Vám ke koupi bytový dům v Lochovicích vhodný k rekonstrukci. Nachází se přímo naproti obecnímu úřadu, v minulosti zde sídlila Česká pošta. V tuto chvíli jsou v domě 3 bytové jednotky s vlastními vstupy a pro půdní... prostor se vyřizuje stavební povolení, aby zde bylo možné vybudovat další bytovou jednotku.

Za domem je zahrada, na které je možno vybudovat posezení. Je zde rovněž dostatek místa k parkování. Každá bytová jednotka má vlastní elektroměr a vodoměr, objekt je napojen na kanalizaci. Na pozemku je k dispozici vlastní studna. Vedení plynu je v ulici před domem.

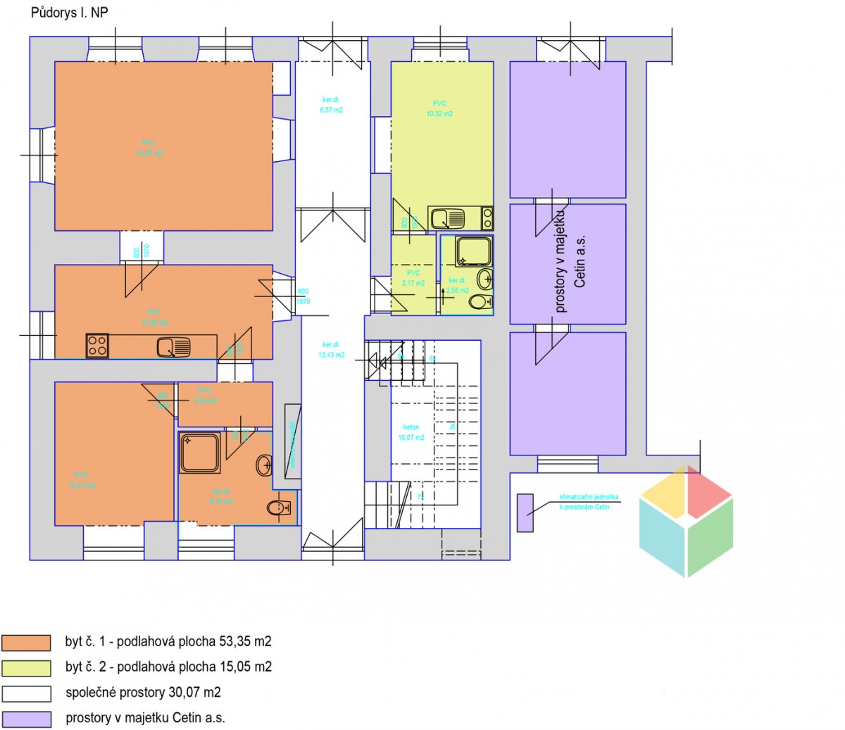
Byt v přízemí má plochu cca 80 m2, jsou zde 4 pokoje a sociální zařízení. Prostory jsou to velmi moc hezké díky klenutým stropům. V patře jsou byty dva, každý z nich má zhruba 60 m2. Dle připravovaného projektu jsou zamýšleny jako dvoupokojové, jeden z nich má ještě prosklenou verandu. Dále bude možné na ploše cca 130 m2, vestavět půdní byt. Mezi fotkami jsou půdorysy, podle kterých by mohl nový majitel prostory zrekonstruovat (přiloženy jsou půdorysy 6 - ti bytů, v tuto chvíli se zpracovává ještě varianta se čtyřmi byty).

Celková plocha domu včetně společných prostor, komor a sklepa je cca 240 m2, plus půda 130 m2.

V současné chvíli ¼ nemovitosti vlastní společnost CETIN, a. s. a majitel vyřizuje odkup tohoto podílu. Jedná se o prostory na boční straně budovy s vlastním vchodem. CETIN, a. s. zde má uloženu technologii pro obsluhu optických kabelů, která zde zůstane i do budoucna a užívání prostor bude ošetřeno věcným břemenem.

Obec Lochovice leží v údolí řeky Litavky, pod pohořím Brdy. Žije zde přibližně 1 300 obyvatel. Obec se nachází ve vzdálenosti 6 km od Hořovic, 7 km od nájezdu na dálnici D5, do Prahy se tak dostanete za 30 minut. Dopravní spojení s okolními městy (Hořovice, Beroun, Příbram) je rovněž zajištěno vlaky a autobusy. Funguje zde mateřská a základní škola, prodejna potravin, pošta, zdravotnická zařízení, je zde renesanční zámek Lochovice s parkem. Krásné okolí nabízí nepřeberné množství výletních tras.
  • Vložení inzerátu:
    28.7.2022
  • Kód:
    5301
  • Typ nemovitosti:
    Rodinný dům
  • Zastavěná plocha:
    198 m2
  • Podlahová plocha:
    240 m2
  • Plocha parcely:
    562 m2
  • Stav objektu:
    Před rekonstrukcí
  • Umístění objektu:
    Centrum
  • Voda:
    místní zdroj
  • Odpad:
    kanalizace
  • Energetická náročnost:
    G - Mimořádne nehospodárná
  • Podle vyhlášky:
    c. 148/2007 Sb
  • Nabídky v okolí:
  • Informace o obci:
    Obec Lochovice má 1144 obyvatel, z toho 783 v produktivním věku.
    V obci se nachází pošta.
    V obci se nachází škola, popř. školka.
    V obci se nachází zdravotní zařízení.
    V obci je rozvod kanalizace.
    V obci je rozvod městské vody.
    V obci je rozvod plynu.

Podobné nabídky v okolí

Lokalita: Lochovice, okres Beroun, Česká republika Lochovice, okr. Beroun, Středočeský kraj