• Sledovat cenu
  •  

Zasílání upozornění emailem:

Rodinný dům, 240 m2 - Kokašice , okr. Tachov (již není v nabídce)

Cena: 4 150 000 Kč
Stav:archiv
240 m2, parcela 1500 m2
Popis: Dumrealit. cz Vám nabízí koupi velmi dobře udržovaného rodinného domu 5+1 po částečné rekonstrukci v malebné obci Kokašice, která se nachází 2 km západně od Konstantinových Lázních.
...Obytná část tohoto prostorného stavení:
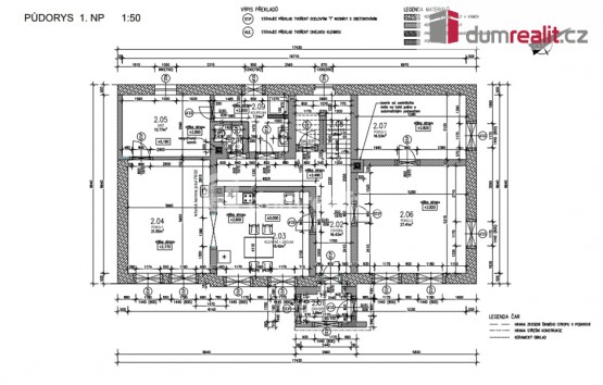
V přízemí: zádveří, vstupní chodba, kuchyně, obývací místnost, 2 krát ložnice, koupelna, samostatná toaleta, vstup do sklepa a skladovací místnost.
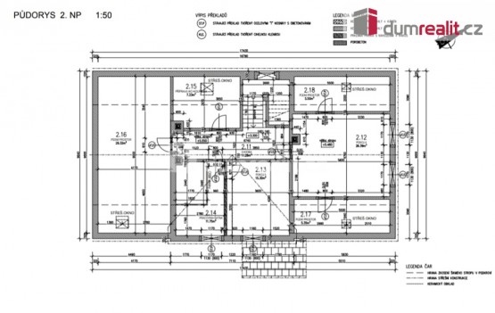
Patro: 2 krát ložnice, šatna, plus prostor pro koupelnu a obývací pokoj, s otevřeným schodištěm na půdu.
Obytná část je připojená na elektřinu, vodovod a kanalizaci. Na obytnou část navazuje zemědělské zázemí s kůlnou s dílnou.
Další stavbou, jež je součástí prodeje, je velká stodola.
Plyn v obci není. Okna jsou plastová. Vytápění radiátory - kotel kombinovaný pelety/uhlí.
Bojlery pro ohřev vody jsou zde dva, jeden ke kotli a jeden samostatně, oba nové.
Na domě byla v roce 2018 provedena částečná rekonstrukce (elektřina, dlažby, štuky, vyvložkování komínů, nový kotel)
Obec Kokašice se rozkládá na křižovatce důležitých komunikací mikroregionu, přičemž v blízkosti obce se nachází Přírodní park Hadovka a Ovčí vrch.
Dominantou obce, na vrchu Krasíkov, je zřícenina hradu z konce 13 století nazývaný Švamberk (Schwamberg) a v sousedství zříceniny stojí kulturní památka - Kostel sv. Máří Magdalény.

Veškeré další dotazy Vám velice rádi zodpovíme při osobní prohlídce. Ev. číslo: 643738. Energetický štítek: G
  • Vložení inzerátu:
    28.10.2023
  • Kód:
    3699236
  • Typ nemovitosti:
    Rodinný dům
  • Zastavěná plocha:
    300 m2
  • Podlahová plocha:
    240 m2
  • Plocha parcely:
    1500 m2
  • Sklep:
    Ano
  • Stav objektu:
    Velmi dobrý
  • Energetická náročnost:
    G - Mimořádne nehospodárná
  • Nabídky v okolí:
  • Informace o obci:
    Obec Kokašice má 256 obyvatel, z toho 190 v produktivním věku.
    V obci je rozvod kanalizace.
    V obci je rozvod městské vody.

Podobné nabídky v okolí

Lokalita: Kokašice , okres Tachov, Česká republika Kokašice , okr. Tachov, Plzeňský kraj