• Sledovat cenu
  •  

Zasílání upozornění emailem:

Rodinný dům, 239 m2 - Radějovice , okr. Praha-východ (již není v nabídce)

Cena: 16 500 000 Kč
Stav:archiv
239 m2, cihlová, parcela 1049 m2
Popis: V zastoupení majitele, Vám nabízím velice kvalitní, moderní stavbu RD (rodinný dům) 6+1 s prostornou garáží, zahradou s nádherným výhledem na Prahu a přírodu v okolí v obci Radějovi...ce, vzdálené jen 5 minut od Jesenice.
Dispozice domu navržena architektem. Dům je již oplocený.
V přízemí: zádveří (3, 75 m2) včetně šatny (3, 1 m2) s přímým vstupem do garáže (30, 1 m2) a do hlavní chodby (17, 5 m2). Obývací pokoj (25, 6 m2) se vstupem na terasu, kuchyň s jídelním koutem (20, 6 m2) také se vstupem na terasu, pokoj (15, 8 m2) se vstupem na zahradu, koupelna (4, 6 m2) s vanou, umyvadlem a sociální zařízení WC, komora (2, 9 m2) a technická místnost s pračkou (4, 8 m2).
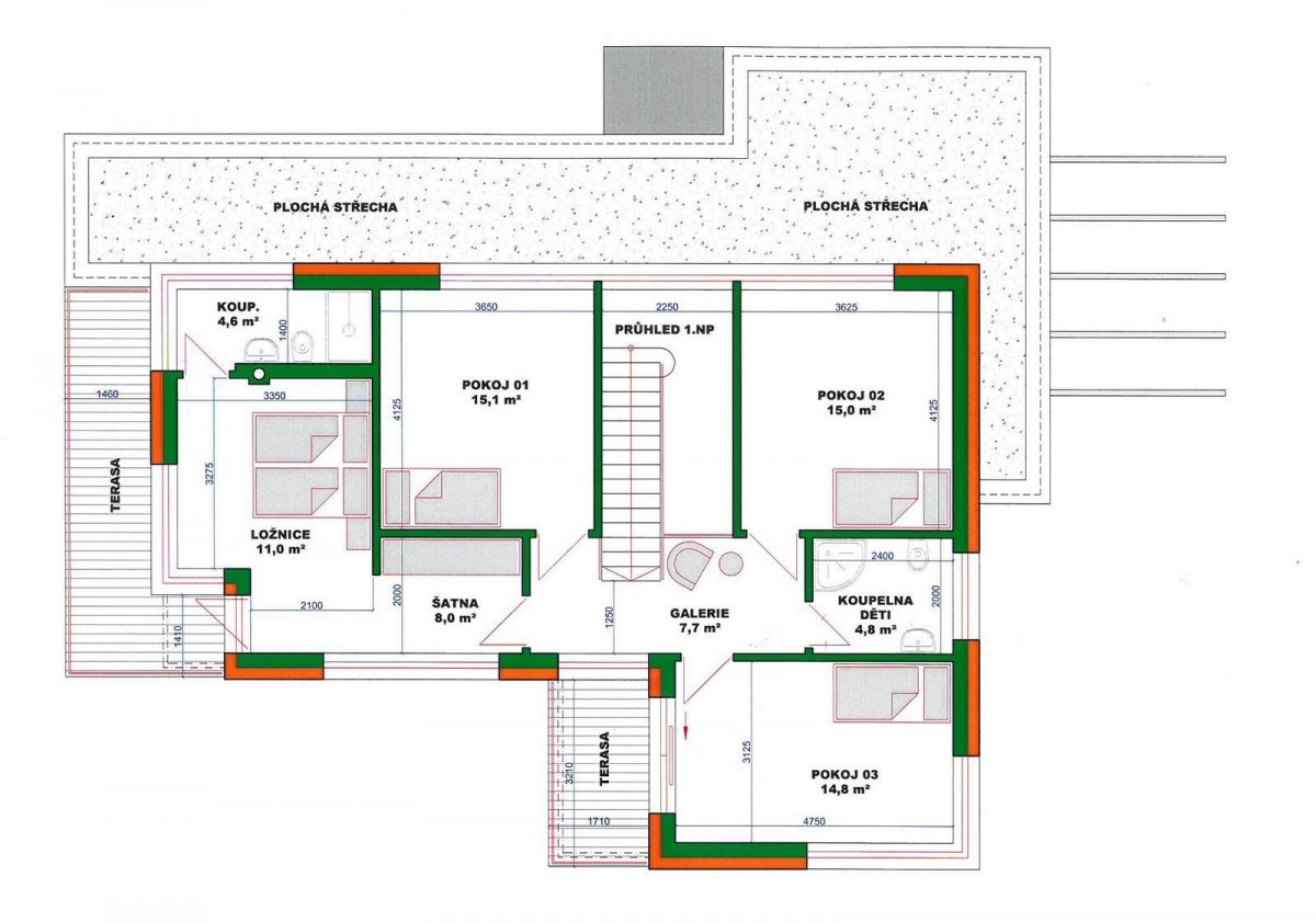
V patře: galerie nad schodištěm (7, 7 m2), 3 krát pokoj (15, 1 m2, 15 m2 a 14, 8 m2 se vstupem na terasu), koupelna (4, 8 m2) se sprchovým koutem, umyvadlem a sociální zařízení WC, ložnice (19 m2) se samostatným vstupem do koupelny (4, 65 m2) s velkorozměrným sprchovým koutem, umyvadlem a sociální zařízení WC a přímým vstupem na terasu.
Vytápění domu plynové (úsporný plynový kondenzační kotel WOLF), v přízemí všude podlahové topení, v patře ve 2 pokojích a ložnici radiátory zn. WOLF, v koupelnách, 1 pokoji a galerii podlahové topení.
Použita italská velko formátová dlažba, dřevěná okna s trojsky, monolitický strop, dveře zn. PRUM německé výroby. Centrální vysavač zn. HUSKY. Datové rozvody v každém pokoji.
Sanita v koupelnách zn. Laufen a Grohe.
Kvalitní kuchyně Sýkora v lesklém provedení, kombinovaná parní trouba, indukční varná deska, myčka na nádobí vše od zn. AEG.
Příprava na krb (Schiedl), příprava na zabezpečení domu. Dům, zkolaudovaný v dubnu 2015, je postaven ze zdiva POROTHERM 24 Profi, zateplen polystyrenem v tl. 140 a 160 cm, kolem domu je proveden okapový chodník z kačírku.
Celková výměra pozemku 1049 m2, zastavěná plocha 149 m2, zahrada 900 m2. Sítě: elektro 230/400V, plyn, vodovodní řad a jímka. Kanalizace v přípravě (již v komunikaci).
Klidné bydlení obklopené přírodou a lesem. Velmi nízké měsíční provozní náklady ve výši 5300, - Kč. Výborné spojení do Prahy. Přímý autobus MHD PID jezdí z Radějovic na metro Budějovická.
Srdečně Vás spolu s majiteli zveme na prohlídku.
  • Vložení inzerátu:
    2.4.2022
  • Kód:
    961
  • Typ nemovitosti:
    Rodinný dům
  • Typ budovy:
    Cihlová
  • Zastavěná plocha:
    149 m2
  • Podlahová plocha:
    239 m2
  • Plocha parcely:
    1049 m2
  • Terasa:
    Ano
  • Stav objektu:
    Novostavba
  • Telekomunikace:
    Internet
  • Voda:
    dálkový vodovod
  • Elektřina:
    230 V, 380 V
  • Doprava:
    silnice, autobus
  • Topeni:
    ústřední plynové
  • Plyn:
    plynovod
  • Odpad:
    kanalizace
  • Komunikace:
    asfaltová
  • Bezbariérový přístup:
    Ano
  • Energetická náročnost:
    B - Velmi úsporná
  • Podle vyhlášky:
    c. 78/2013 Sb.
  • Nabídky v okolí:
  • Informace o obci:
    Obec Radějovice má 296 obyvatel, z toho 209 v produktivním věku.
    V obci je rozvod městské vody.
    V obci je rozvod plynu.

Podobné nabídky v okolí

Lokalita: Radějovice , okres Praha-východ, Česká republika Radějovice , okr. Praha-východ, Středočeský kraj