• Sledovat cenu
  •  

Zasílání upozornění emailem:

Rodinný dům, 234 m2 - Frindova, Krásná Lípa, okr. Děčín (již není v nabídce)

Cena: 5 300 000 Kč
Stav:archiv
234 m2, cihlová, parcela 4767 m2
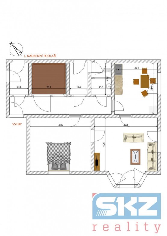
Popis: SKZ REALITY Rumburk vám nabízí ke koupi krásnou rodinnou vilu v centru města Krásná Lípa (centrum NP České Švýcarsko) se stavebními pozemky o výměře 4767m2 viz. foto. Vilu využijete pro trvalé bydlení, pronajímá...ní k bydlení či rekreaci nebo podnikání (dříve ordinace lékaře s bydlením). Tato rodinná vila je celá podsklepená (3 místnosti). V přízemí se nachází - chodba, 2 x komora, sociální zařízení WC s umyvadlem, kuchyň, obývací pokoj a ložnice. Ve II. NP je chodba, prosvětlená veranda, komora, koupelna se sprch. koutem a sociální zařízení WC, kuchyň, obývací pokoj a ložnice. V podkroví se nachází vestibul, 2 pokoje a půdní prostory ke skladování. Dům má nové ústřední topení v mědi s elektrickým nebo plynovým zdrojem vytápění. Nová plastová okna v pokojích (někde dřevěná - vakuovaná skla). Elektřina částečně v hliníku. Střecha a krovy v dobrém stavu. IS - vodovod, kanalizace, plyn, elektřina, telefon. Okolní pozemky ve vlastnictví prodejce jsou rozsáhlé a lze je využít jako stavební - viz územní plán obce. Prodávající si vyhrazuje právo prodat své nemovitosti nejvyšší nabídce v případě více zájemců. Těšíme se na prohlídky, kde se dozvíte podrobnější informace.
  • Vložení inzerátu:
    7.6.2021
  • Kód:
    106/3035
  • Typ nemovitosti:
    Rodinný dům
  • Typ budovy:
    Cihlová
  • Zastavěná plocha:
    145 m2
  • Podlahová plocha:
    234 m2
  • Plocha parcely:
    4767 m2
  • Lodžie:
    Ano
  • Stav objektu:
    Velmi dobrý
  • Doprava:
    vlak, autobus
  • Bezbariérový přístup:
    Ano
  • Energetická náročnost:
    G - Mimořádne nehospodárná
  • Nabídky v okolí:
  • Informace o obci:
    Obec Krásná Lípa má 3683 obyvatel, z toho 2488 v produktivním věku.
    V obci se nachází pošta.
    V obci se nachází škola, popř. školka.
    V obci se nachází zdravotní zařízení.
    V obci je rozvod kanalizace.
    V obci je rozvod městské vody.
    V obci je rozvod plynu.

Podobné nabídky v okolí

Lokalita: Frindova , Krásná Lípa, okres Děčín, Česká republika Frindova, Krásná Lípa, okr. Děčín