• Sledovat cenu
  •  

Zasílání upozornění emailem:

Rodinný dům, 226 m2 - Nad Mostem 1, Kněževes, okr. Praha-západ (již není v nabídce)

Cena: 19 750 000 Kč
Stav:archiv
226 m2, cihlová, parcela 655 m2
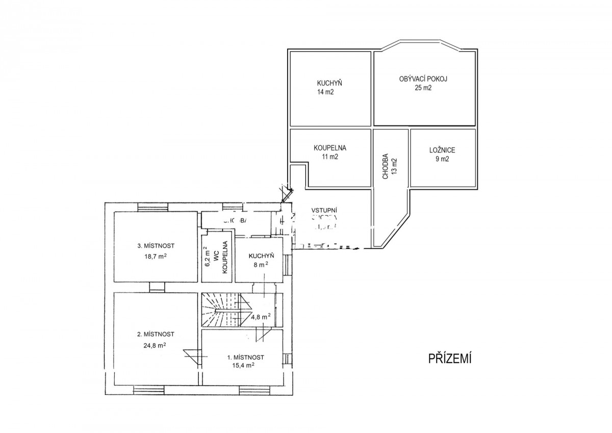
Popis: Multigenerační bytový dům se zahradou v Kněževsi u Prahy se sestává ze dvou samostatných domů téměř čtvercového půdorysu spojených v rohu spojovacím vstupním krčkem, který tvoří jediný vchod do obou domů.
Aktuálně možné roz...dělit až na 4 bytové jednotky. Vhodné jako investice a pro rozšíření o další bytové jednotky v podkroví.
Výborně udržovaná nemovitost po zásadních rekonstrukcích včetně nové fasády a zateplení v roce 2020. Stavba zděná (cihlová, skelet s masivní cihlovou vyzdívkou). Minimum chodbových metrů. Aktuální dispozice domu: 5+1 + příslušenství, 3+1 + příslušenství + letní pokoj
Přední dům
Přední dům s bílou fasádou, jehož původní část byla vystavěna v r. 1924 s přístavbami směrem do zahrady z let 1955 (1 místnost) a 1981 (koupelna, chodba a kuchyně). Jedná se o částečně podsklepený přízemní zděný dům se sedlovou různě sklonitou střechou s dřevěným krovem a krytinou z keramických tašek. Dům je postupně rekonstruován. V r. 2003 došlo k částečné vestavbě místnosti do podkroví a v r. 2005 došlo k výměně oken za dřevěná eurookna s protihlukovou úpravou. V roce 2020 došlo k rekonstrukci 2 místností (podlahy, výmalba) a k zateplení domu polystyrenem tl. 10 cm s fasádní omítkou. Střešní krytina původní. Dům má dispozici 3+1 s průchozími pokoji včetně kuchyně. Ve sklepě jsou tři místnosti se sníženým stropem (s. v. 2 - 2, 1 m). Místnost v podkroví je stavebně nedokončená. Přístup k této místnosti je po původním bet. schodišti přes nezateplený půdní prostor.
Zadní dům
Zadní dům se žlutou fasádou ustoupený od uliční čáry směrem do zahrady kolaudovaný v r. 2009 s dokončenou hrubou stavbou v r. 2005, s novou fasádní omítkou z r. 2020. Jedná se o zděný přízemní dům s obytným podkrovím pod sedlovou střechou s dvěma vikýři a balkónem směrem do zahrady. Dům má dispozici 5+1. V přízemí domu je umístěna koupelna vybavená rohovou vanou, umyvadlem, sociální zařízení WC, sprchovou vaničkou a topným žebříkem, průchozí obývací pokoj s krbovými kamny a výstupem na menší terasu na zahradě přes francouzské dveře. Z obývacího pokoje je přístupná kuchyně s výstupem do zahrady a pokoj orientovaný do dvora před domem.
Podkroví je přístupné po dřevěném schodišti a nabízí 3 pokoje částečně se šikmým stropem, komoru a koupelnu. Jsou zde připraveny přípojky na kuchyňský kout. Dva pokoje jsou orientovány do zahrady a jeden pokoj s obytnou chodbou směrem do dvora. Jeden z pokojů využívá balkón orientovaný do zahrady. Dům má nižší než obvyklou světlou výšku místností v přízemí 2, 3 - 2, 33 m. Světlá výška podkrovních místností je 2, 1 m. Dům je využíván k trvalému bydlení.
Vytápění domů a příprava TUV je řešena samostatně plynovými kotli zn. Protherm, v případě zadního domu kombinovaným kotlem s přípravou TUV, umístěným v koupelně v přízemí, v případně předního domu je kotel umístěný ve společném spoj. krčku a příprava TUV je řešena el. bojlerem. Záložní kotel na tuhá paliva a elektrokotel jsou umístěny ve sklepní části předního domu a jsou využitelné pouze pro tento dům.
  • Vložení inzerátu:
    30.3.2021
  • Kód:
    04518
  • K dispozici od:
    0.0.0
  • Typ nemovitosti:
    Rodinný dům
  • Typ budovy:
    Cihlová
  • Podlahová plocha:
    226 m2
  • Plocha parcely:
    655 m2
  • Stav objektu:
    Velmi dobrý
  • Energetická náročnost:
    G - Mimořádne nehospodárná
  • Nabídky v okolí:
  • Informace o obci:
    Obec Kněževes má 516 obyvatel, z toho 354 v produktivním věku.
    V obci se nachází zdravotní zařízení.
    V obci je rozvod kanalizace.
    V obci je rozvod městské vody.
    V obci je rozvod plynu.

Podobné nabídky v okolí

Lokalita: Nad Mostem 1, Kněževes, okres Praha-západ, Česká republika Nad Mostem 1, Kněževes, okr. Praha-západ