• Sledovat cenu
  •  

Zasílání upozornění emailem:

Rodinný dům, 220 m2 - Karlova 766, Starý Jiříkov, Jiříkov, okr. Děčín

Cena: 2 580 000 Kč
Stav:Volný
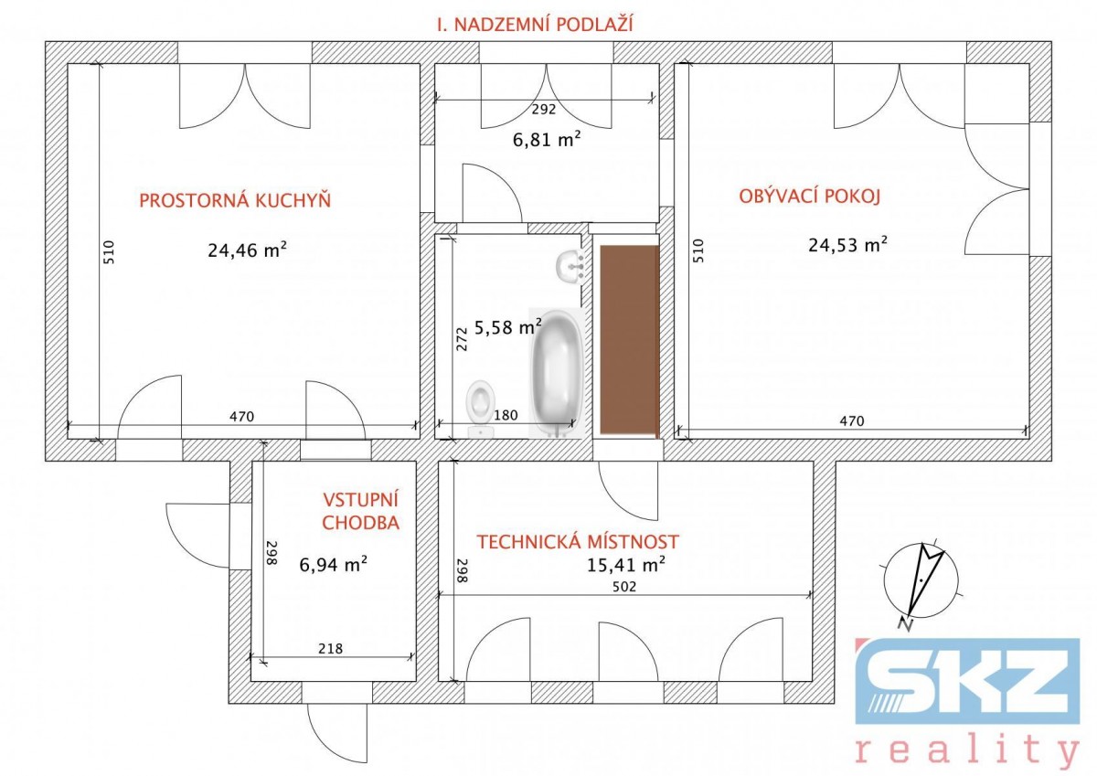
220 m2, cihlová, parcela 290 m2
Popis: Rekonstruovaný rodinný dům 6 + kk se zahradou a vlastní studnou v Jiříkově. V přízemí domu se nachází chodba, velká technická místnost se vstupem do sklepa, kuchyňský kout, jídelna, světlý a prostorný obývací pokoj. V ...podkroví jsou 3 místnosti, kde jednu lze pohodlně rozdělit na dva neprůchozí pokoje. V podkrovních pokojích jsou připraveny úložné prostory. Rekonstrukce spočívala: chemická injektáži proti zemní vlhkosti, nové štuky s lepidlem a perlinkou v celém domě, nové rozvody elektřiny s novým rozvaděčem, nové rozvody vody a odpadu, nová plastová okna, nové podlahy v podkroví (OSB desky), nové podhledy stropů v podkroví včetně zateplení, nové šikmé podkrovní stěny se zateplením a novými plastovými střešními okny, nová koupelna s vanou a sociální zařízení WC. Vytápění je lokální, k dispozici jsou dva 2 komíny. Na hranici pozemku je pilíř pro připojení plynu. Na pozemku se nachází vlastní studna a splaškové vody vedou do kanalizace, která se nehradí. Na pozemku se nachází konstrukce skleníku a kolna. Pozemek je oplocen. Dům je orientován na jižní stranu. Jedná se o klidné a tiché místo k bydlení. Doporučuji prohlídku nemovitosti.
Lokalita: Karlova 766, Starý Jiříkov, Jiříkov, okres Děčín, Česká republika Karlova 766, Starý Jiříkov, Jiříkov, okr. Děčín

Kontakt

Mgr. Jaroslav Šmejc



Volná pracovní místa ExpertPrace.cz
  • Objednání prohlídky a více informací
  •  
  • Poslat na e-mail
  •  

Zasílání odkazu na realitu emailem: