• Sledovat cenu
  •  

Zasílání upozornění emailem:

Rodinný dům, 220 m2 - Smrčenská 4122, Jihlava (již není v nabídce)

Cena: 7 490 000 Kč
Stav:archiv
220 m2, cihlová, parcela 311 m2
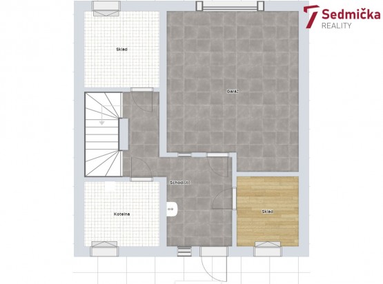
Popis: Vnitřní řadový dům na kraji krajského města Jihlava. Je postavený v okrajové ulici místní části Bedřichov, cca 4 km od centra města s hezkým výhledem do krajiny. Dvougenerační řadový rodinný dům je vnitřní řadový s dizpozi...1+1 a 6+1 s garáží v suterénu (obytná plocha cca 167 m2 + garáž), celopodsklepený, má tři nadzemní obytná podlaží. V suterénu je prostorná garáž, kotelna, sklad a pracovna, v 1. NP (první nadzemní patro) byt 1+1 s koupelnou a sociální zařízení WC, ve 2. a 3. NP (třetí nadzemní patro) pak byt 6+1 s koupelnou a sociální zařízení WC. V blízkosti je škola, školka, obchody, lékaři, zastávka MHD, 1 km vlakové nádraží. Dům je obyvatelný, ihned volný, vhodný i pro podnikání s bydlením kancelář, ordinace, aj. , dobré pakrování přímo před domem. Financování domu je možné i úvěrem ze stavebního spoření nebo hypotékou - zajistíme. Nezávazná konzultace s naším finančním specialistou - zdarma. Můžeme zprostředkovat i financování pro klienty, kteří nedostanou hypotéku v bance. Také je možné se dohodnout na zaplacení části kupní ceny odkoupením vašeho stávajícího bytu nebo domu.
  • Vložení inzerátu:
    5.10.2023
  • Kód:
    00411
  • K dispozici od:
    0.0.0
  • Typ nemovitosti:
    Rodinný dům
  • Typ budovy:
    Cihlová
  • Podlahová plocha:
    220 m2
  • Plocha parcely:
    311 m2
  • Balkón:
    9 m2
  • Lodžie:
    5 m2
  • Sklep:
    50 m2
  • Stav objektu:
    Velmi dobrý
  • Umístění objektu:
    Okraj
  • Voda:
    dálkový vodovod
  • Elektřina:
    230 V
  • Doprava:
    silnice, dálnice, MHD, autobus, vlak
  • Topeni:
    ústřední plynové
  • Plyn:
    plynovod
  • Odpad:
    kanalizace
  • Komunikace:
    asfaltová
  • Energetická náročnost:
    G - Mimořádne nehospodárná
  • Nabídky v okolí:
  • Informace o obci:
    Obec Jihlava má 51154 obyvatel, z toho 35998 v produktivním věku.
    V obci se nachází pošta.
    V obci se nachází škola, popř. školka.
    V obci se nachází zdravotní zařízení.
    V obci je rozvod kanalizace.
    V obci je rozvod městské vody.
    V obci je rozvod plynu.

Podobné nabídky v okolí

Lokalita: Smrčenská 4122, Jihlava, okres Jihlava, Česká republika Smrčenská 4122, Jihlava