• Sledovat cenu
  •  

Zasílání upozornění emailem:

Rodinný dům, 210 m2 - V Pastouškách, Kunovice, okr. Uherské Hradiště (již není v nabídce)

Cena: 3 999 000 Kč
Stav:archiv
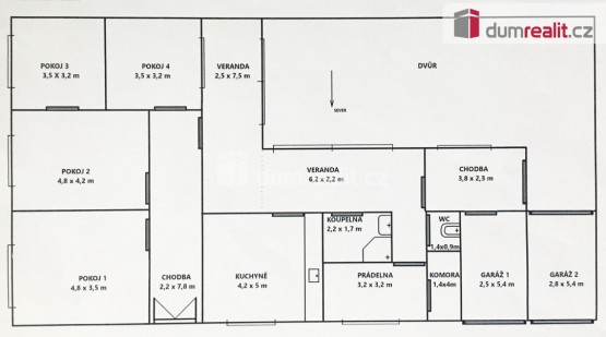
210 m2, parcela 333 m2
Popis: Včetně provize RK. . Dumrealit. cz Vám nabízí ve výhradním zastoupením majitele ke koupi rohový, rodinný dům o dispozici 4+1 v centru města Kunovice u Uherského Hradiště. Dům proše...l rekonstrukcí: kuchyňská linka, koupelna se sprchovým koutem, výměna oken za plastová, garážové vrata, rozvod topení v mědi a kombinovaný plynový kotel s dřevem TUV, stropy i fasáda domu jsou zatepleny. Dům je napojen na všechny inženýrské sítě. U domu se nachází menší dvorek cca 100 m² a dvě garáže (jedna na parkování automobilu a druhá na různé skladování (jízdních kol, motorek. . . ). Dům je nabízen včetně vybavení, není ale podmínkou. Doporučujeme Vám prohlídku. Ev. číslo: 641573. Energetický štítek: G

Podobné nabídky v okolí

Lokalita: V Pastouškách , Kunovice, okres Uherské Hradiště, Česká republika V Pastouškách, Kunovice, okr. Uherské Hradiště